关于我们
豪郡建筑装饰设计工程有限公司是一家专业从事家居装饰、写字楼、公寓、挑高空间、商业空间别墅设计与施工 的专业性工程公司,借助先进的施工技术,将人力资源有机的结合在一起,真正实现了资源合理调度,确保服务质量、时效性和低成本。

豪郡装饰
精英设计师领衔
多年设计工作经验积淀
设计方案全方位剖析
专业服务龙城千家业主
面对面解析户型设计要点
百分百全案设计效果
找最专业的设计师
就来豪郡装饰
现 代 风 格

设计总监
BOUTBEAUTY
唐杨樊

设计理念:持之以恒的学习是设计的来源,责任感是设计的原则,而灵感是设计的升华。艺术是生活的升华,设计是艺术的呈现。 合理划分空间,让设计融入生活,营造自然,品味,格调。
工作经验:10年以上
擅长风格:现代简约风格、美式风格、新中式风格、简约混搭、地中海风格
小区案例:香溢南桥、滨江明珠城、金地国际城、元一柏庄、九溪江南、金地格林郡、兰陵尚品、御城、九洲新世界、青建鼎都
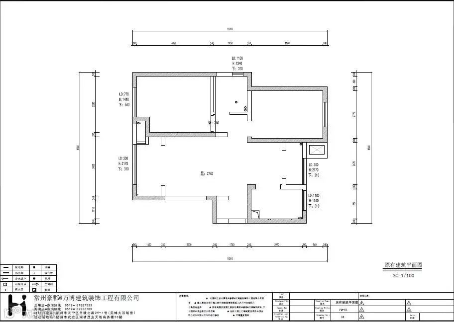
▼原始框架图

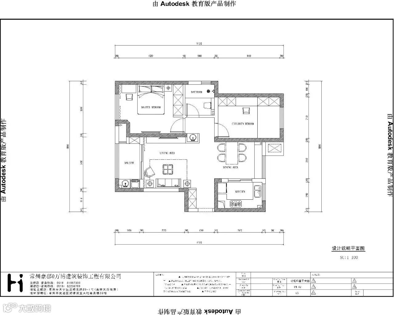
▼平面布置图







联系我们
兰陵店
▼
常州市天宁区兰陵北路337-1号(美林大浴场旁)
Tel:0519-81887333
湖塘店
▼
常州市湖塘广电路花园街茂业天地商务楼20层
Tel:0519-83605988
24小时服务电话
▼
Tel:181 5128 9188
豪郡装饰

创意美图|设计案例|装修知识|找设计师
豪郡装饰官方网站:www.cnhaojun.com

赠人玫瑰,手有余香;
欢迎分享,你的小伙伴也可能会需要哦!

