
关于我们
常州豪郡装饰工程有限公司是一家专业从事家居装饰、写字楼、公寓、挑高空间、商业空间别墅设计与施工 的专业性工程公司,借助先进的施工技术,将人力资源有机的结合在一起,真正实现了资源合理调度,确保服务质量、时效性和低成本。
→新中式风格在设计上延续了明清时期家居配饰理念,提炼了其中经典元素并加以简化和丰富,在家具形态上更加简洁清秀,同时又打破了传统中式空间布局中等级、尊卑等文化思想,空间配色上也更为轻松自然。
新 中 式

高级设计师
BOUTBEAUTY
刘文祥

设计理念:因地制宜,因人而异,设计是为每一个人创造一个属于自己的空间。
工作经验:4年以上
擅长风格:简美、现代简约、美式乡村风格、 地中海风格、新中式风格
小区案例:《百馨西苑》《悠活城》《世茂香槟湖》《青建鼎都》《德禾豪景》
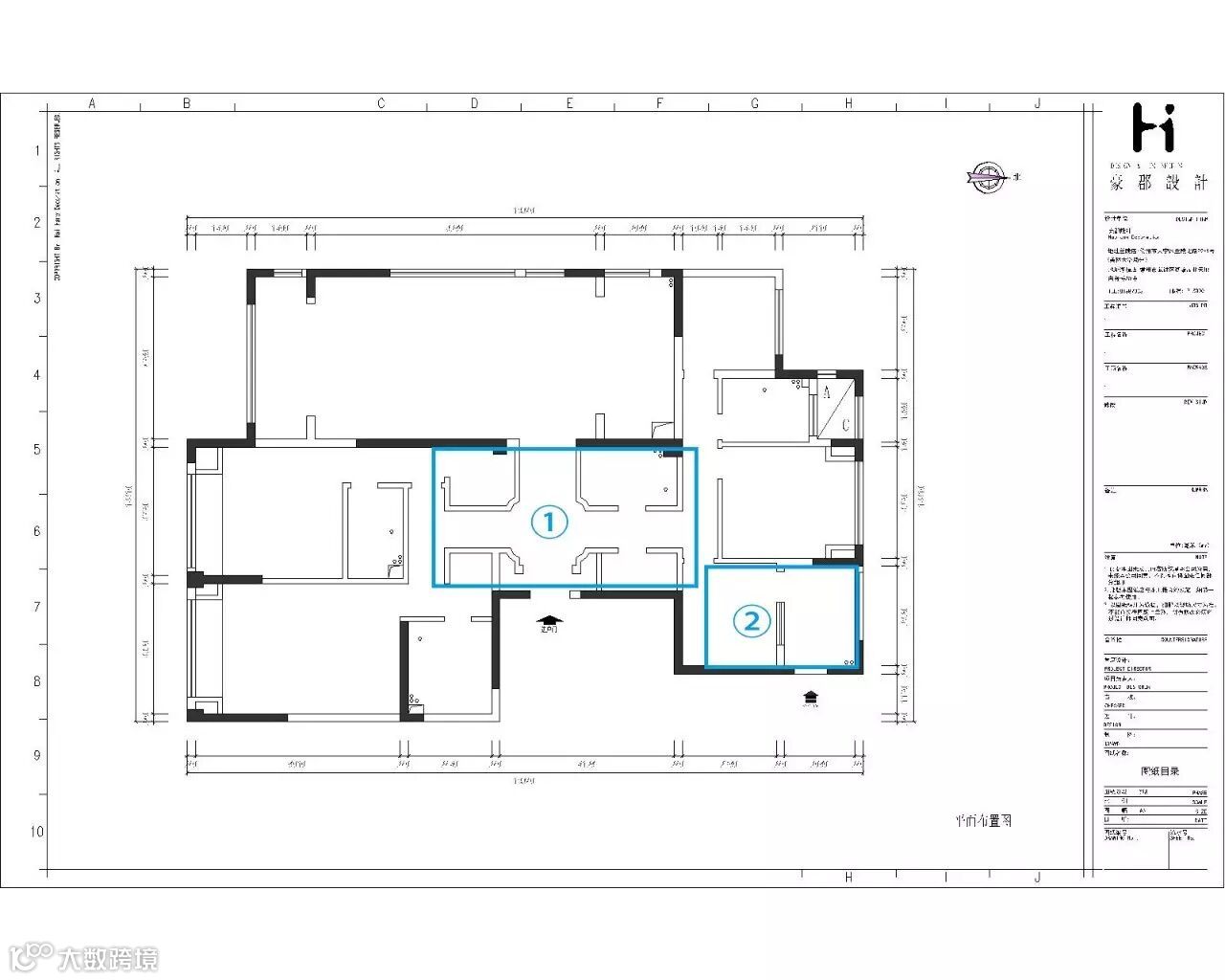
▼原始框架图

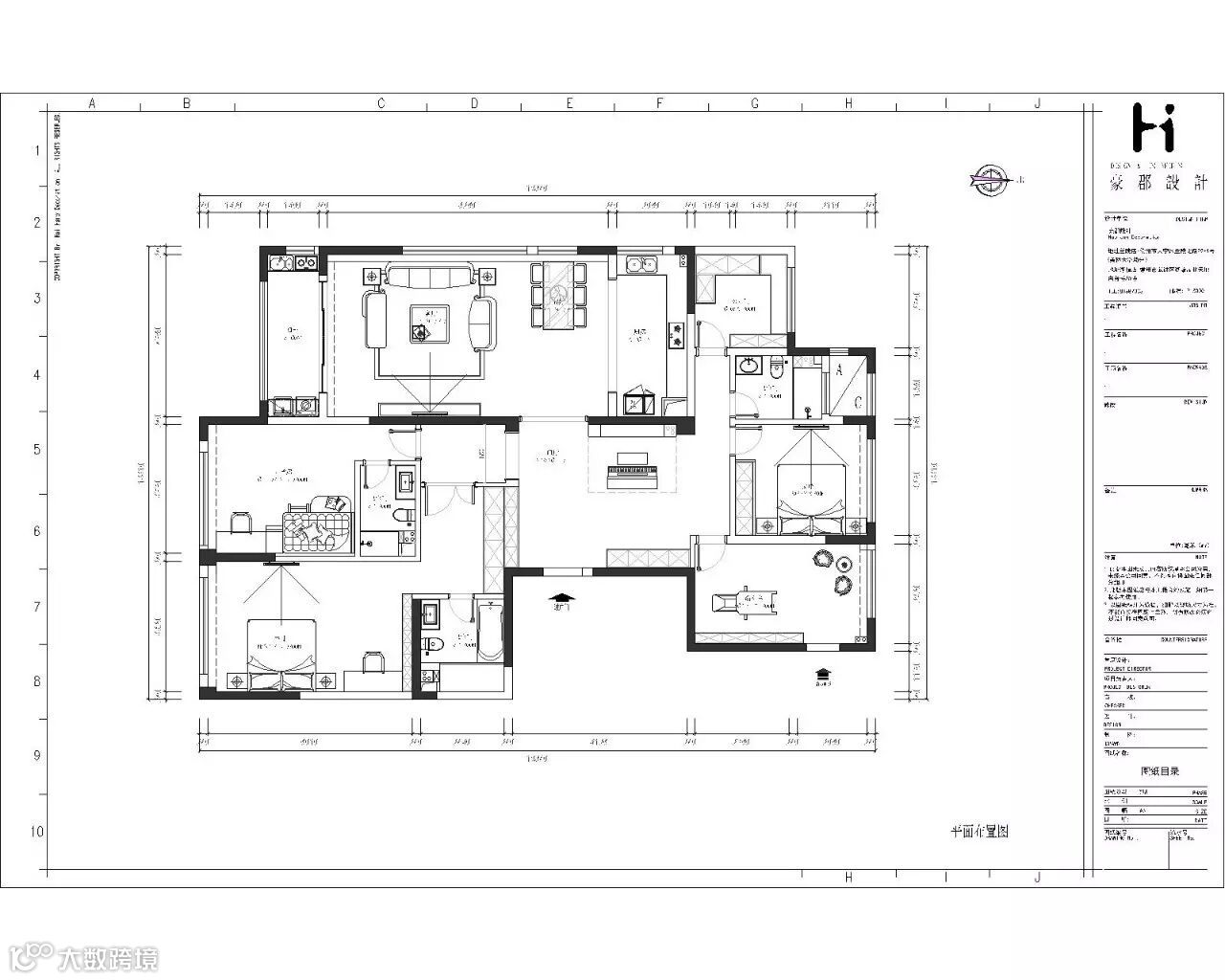
▼平面布置图
方案解析:
①门厅墙体敲除,增大门厅添加视觉效果
②活动室原墙体敲除,增大使用空间



新中式风格不是纯粹的元素堆砌,而是通过对传统文化的认识,将现代元素和传统元素结合在一起,以现代人的审美需求来打造富有传统韵味的事物,让传统艺术在当今社会得到合适的体现。
联系我们
兰陵店
▼
常州市天宁区兰陵北路337-1号(美林大浴场旁)
Tel:0519-81887333
新北店
▼
正在筹备中,敬请期待~

创意美图|设计案例|装修知识|找设计师
豪郡装饰官方网站:www.cnhaojun.com


