提示:点击上方"豪郡装饰"↑免费订阅本刊~

◀绿都·万和城
90㎡
现 代
现 代

自在、随意不羁的生活方式,
没有太多造作的修饰与约束,
不经意中也能成就一种休闲式的浪漫。
DESIGNER 设计主创
设计总监
DESIGN DIRECTOR
王 晶

设计理念:用心去感悟空间。
工作经验:7年以上
擅长风格:现代简约风格、欧式新古典风格、现代美式风格、新中式风格
小区案例:大名城顺御和苑、御城、雅居乐、天安河滨花园、世贸香槟湖、星河国际、莱蒙城......
DESIGNCASE 案例分析
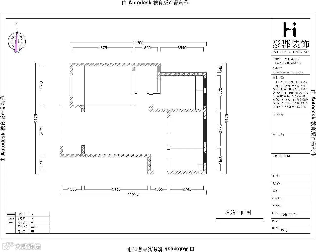
【原始框架图】
▼

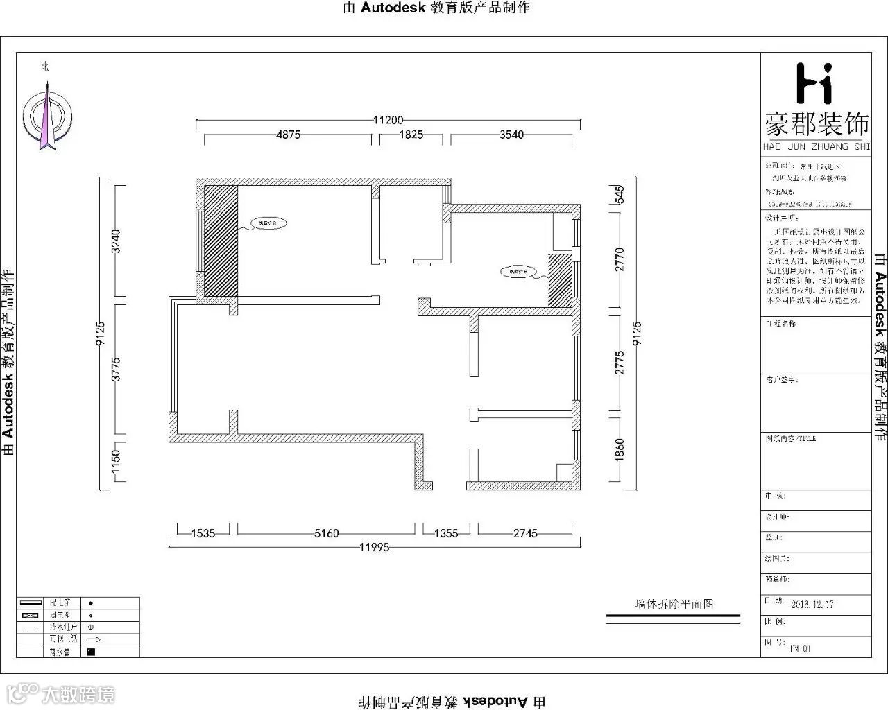
【拆墙示意图】
▼


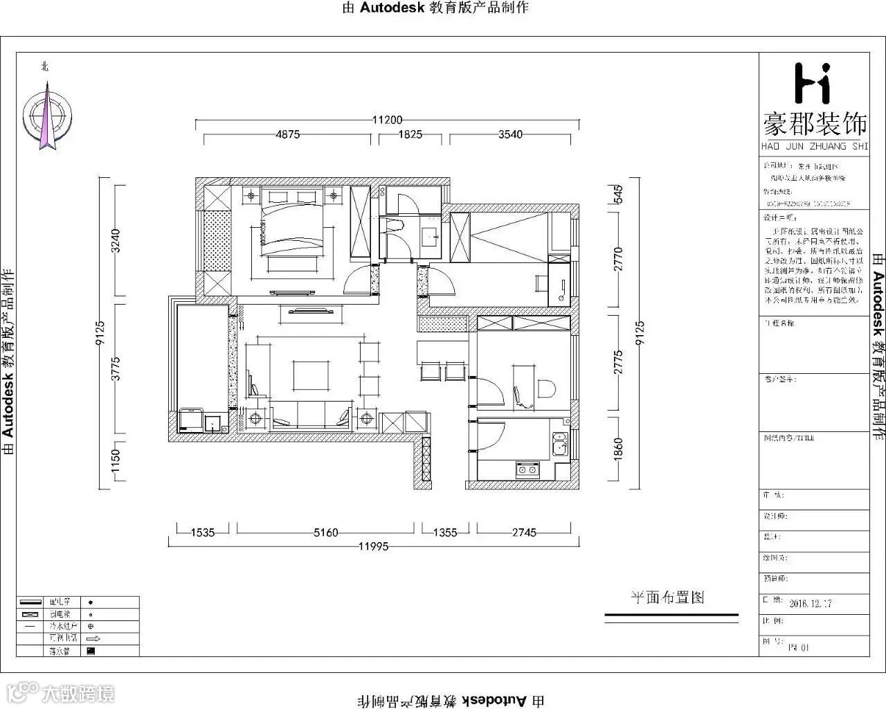
【平面布置图】
▼

DESIGN 效 果 图

客厅▼



主卧▼

次卧▼

做装饰,我们是认真的。
常州豪郡建筑装饰工程有限公司
一家专业从事家居装饰、写字楼、公寓、挑高空间、商业空间、别墅设计与施工的
专业性工程公司。
长
按
关
注
关注豪郡,有惊喜!
联系我们
兰陵店:常州市天宁区兰陵北路337-1号(美林大浴场旁)
分 店:正在筹备中,敬请期待~
TEL :0519-81887333
创意美图|设计案例|装修知识|找设计师
阅读原文,了解更多

