
楼盘:春江时代
面积:105方
设计师:季子
半包:8.5万
风格:美式风格
题记:每个人都有一个或者许多的家,而每个人在这个家里扮演着这样的角色,而同样的他会在另外的家里扮演另外的角色,因为,我始终相信人生就如一场戏。我的家里有许多许多的人,在某个时间,某个空间,他们都会聚集在家里,商量家的事情,畅谈家的情感。有人说,家只是一个房子和几个人的集合,他只是让人能驱寒保暖,他只是让人住在里面,我想那只是初浅的想法,家并不只是这些。
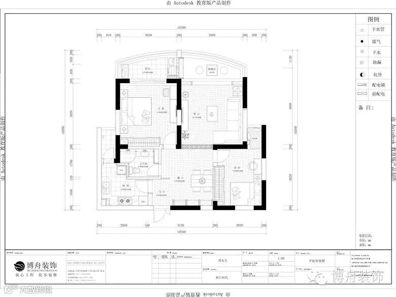
平面图

玄关

餐厅




客厅




休闲区




主卧




小孩房



厨房


卫生间




博舟官方微信传送门:
搜索公众账号: 博舟装饰
放心工程,快乐装修
集团热线:0571-56261255
官方网站:www.hzbzzs.com
公司总部:武林门北密渡桥路15号新世纪大厦22楼
城北分公司:通益路861号绿景国际1-601
33000方展厅:好运路2号本舟家居建材生活广场
衢州分公司: 新桥街115号方圆诚信商务大厦2楼
●点击右上角→查看官方账号,选择『查看历史消息』即可查看往期精彩内容。



