
BOUTHAOJUN
关于我们
常州豪郡装饰工程有限公司是一家专业从事家居装饰、写字楼、公寓、挑高空间、商业空间别墅设计与施工 的专业性工程公司,借助先进的施工技术,将人力资源有机的结合在一起,真正实现了资源合理调度,确保服务质量、时效性和低成本。

◀蔚蓝天地
132㎡
简 欧
简 欧

自在、随意不羁的生活方式,
没有太多造作的修饰与约束,
不经意中也能成就一种休闲式的浪漫。
DESIGNER 设计主创
首席设计师
DESIGNER
顾程炜

设计理念:将设计融于人性,将家居带入悠闲自在的情境。
工作经验:4年以上
擅长风格:现代简约风格、简欧风格、美式风格、 地中海风格、新中式风格
小区案例:中海龙城公馆、华润国际、世贸香槟湖、凤凰熙岸、御城、路劲城、玉兰广场、莱蒙城......
DESIGNCASE 案例分析
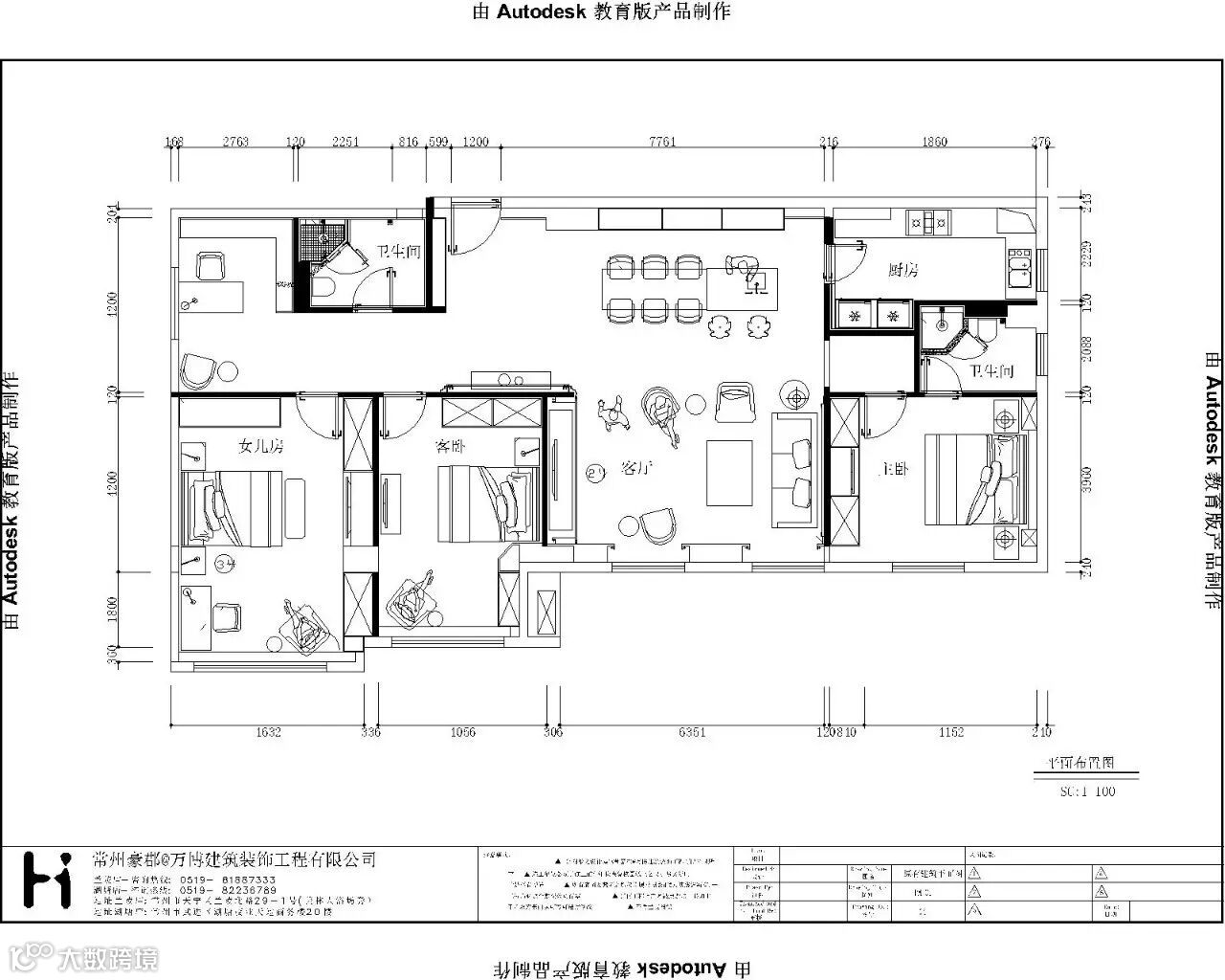
【平面布置图】
▼

DESIGN 效 果 图
▼

▼

简欧风格是欧式装修风格的一种,多以御品黄、象牙白等为主色调,以浅色为主深色为辅。相对于浓厚的欧洲风格,简欧风格为清新、符合中国用户内敛的审美观念。而且秉承了时尚、环保的理念。其实简欧风格是一个相对比较模糊的概念,和欧式风格的最大区别在于色调和罗马柱的区别,骈弃了一般花哨的修饰。整个房间的画面感,简约统一。

豪郡装饰——给业主细致的服务,一流的工艺,专业的品质。
一心一意为业主打造高质量高性价比的个性化新房,
让每一栋房子都有独特的设计,豪郡装饰您值得拥有!
我们的目标是——做家装界最好的设计师,设计界最好的施工队,装修界最好的微信小编!豪郡装饰,您值得拥有!

联系我们
兰陵店
▼
常州市天宁区兰陵北路337-1号(美林大浴场旁)
Tel:0519-81887333
分 店
▼
正在筹备中,敬请期待~

创意美图|设计案例|装修知识|找设计师
豪郡装饰官方网站:www.cnhaojun.com

关注豪郡,有惊喜!
点击下方“阅读原文”即可报名参加哦~

