面积:500㎡工装 恭喜卓慧教育机构开工大吉
2017年12月13日,卓慧教育机构装修开工,设计师杨言刚等代表豪郡装饰对这一项目的正式开工表示最热烈的祝贺!恭祝卓慧教育开工大吉,感谢您的选择和对我们的信任,以及对公司的认可,PINGO国际豪郡装饰代表集体人员祝您生意兴隆,越做越好!




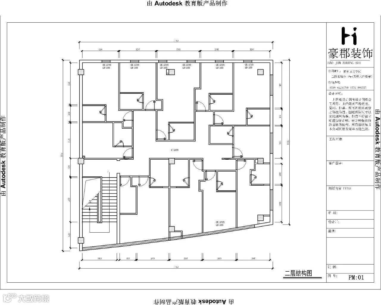
二楼原始结构图

二楼改造后方案布置图
出自设计师之手,力求完美

三楼原始结构图
三楼改造后方案布置图


PINGO国际·豪郡整装
一家专业从事家居装饰、写字楼、公寓、挑高空间
商业空间、别墅设计与施工的
专业化工程公司

免费验房 免费量房 免费平面设计
免费预算报价 免费接送 免费参观工地
长
按
关
注
关注PINGO国际•豪郡整装,有惊喜!
联系我们
PINGO国际•豪郡整装兰陵店:常州市天宁区兰陵北路337-1号(美林大浴场旁)
PINGO国际•豪郡整装勤业体验店:飘香路(平岗星苑)
TEL :0519-81887333 0519-89581518
48小时咨询热线:17761995555
创意美图|设计案例|装修知识|找设计师

