

因为责任,我们极尽完美的工艺
因为规范,我们遵守苛刻的标准
开工仪式的举行,
既是对项目一个良好的开端,
也是夯实合作的基础。

BEFORE
AFTER


BEFORE
AFTER

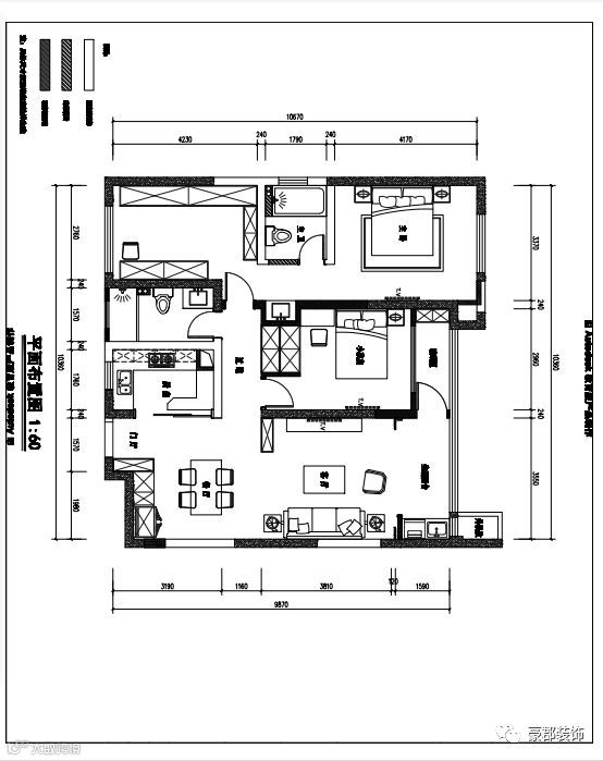
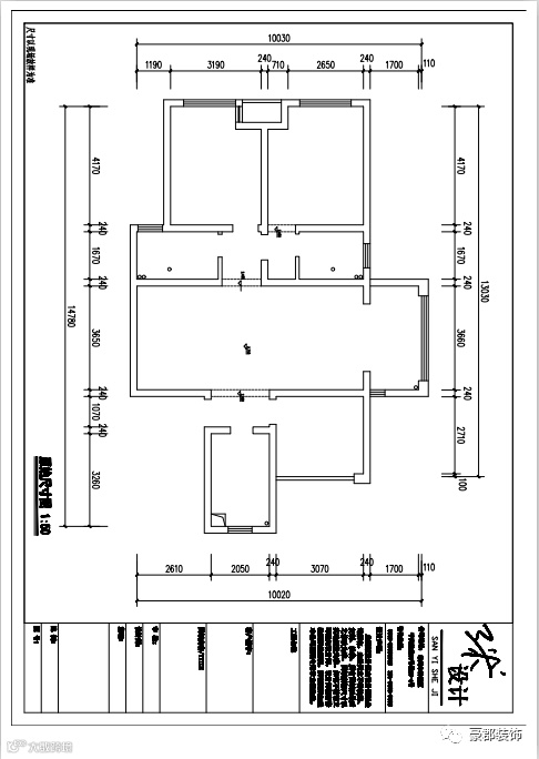
效果图



设计师

“一次装修,一生朋友”,把业主家当成自己的家来装修!感谢业主们对豪郡装饰的认可和信任。再次祝贺业主们豪宅开工大吉、装修顺顺利利!我们必将以精细的施工、极致的服务为您打造一个舒适、温馨的家!

为了你的理想家,
我们早已做好了准备!

感恩有你

豪郡装饰
一家专业从事家居装饰、写字楼、公寓、挑高空间
商业空间、别墅设计与施工的
专业化工程有限公司

免费验房 免费量房 免费平面设计
免费预算报价 免费接送 免费参观工地
联系我们
三米设计勤业体验店:钟楼区平岗星苑10-4号三楼
豪郡整装金坛店:金坛金桂路1027号(碧桂园南门)
TEL :0519-89581518/0519-82312998
48小时咨询热线:18151289188
创意美图|设计案例|装修知识|找设计师

