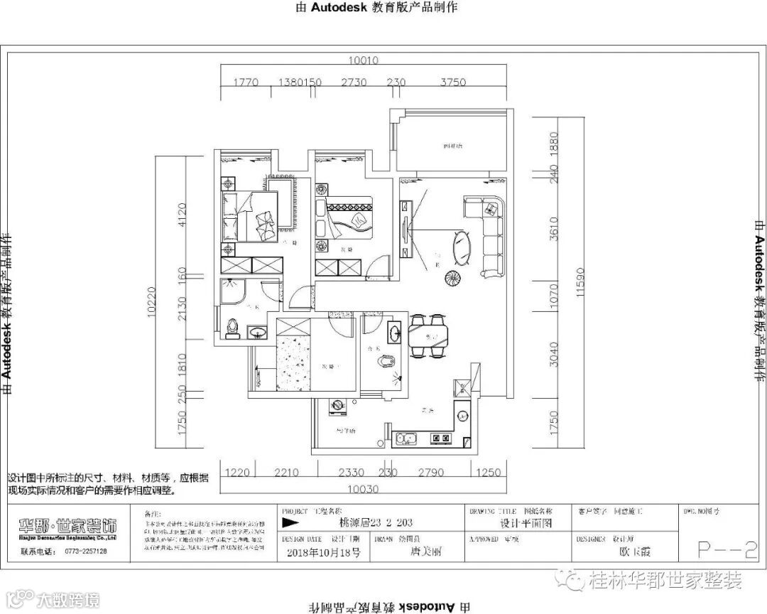
※平面方案布局※
※客厅※
※餐厅※
※主卧※
★往期人气案例精选
[案例看点] 漓江郡府11栋01户型丨123㎡丨古韵中式
[案例看点] 华润中央公园1栋02户型丨118㎡丨现代中式
[案例看点] 荣和林溪府10栋02户型丨95㎡丨素色简约(黑白灰)
[案例看点] 西城书院丨85㎡丨简约北欧
[案例看点] 雁山雁小区丨三房两厅丨温馨简约
[案例看点]滟澜山33栋05户型丨102㎡丨现代简约
[案例看点]滟澜山33栋05户型丨102㎡丨简约生活
[案例看点]滟澜山35栋03户型丨95㎡丨现代中式
[案例看点]滟澜山33栋02户型丨87㎡丨现代简约
[案例看点]滟澜山35栋03户型丨83㎡丨温馨简约
点击“阅读原文”查看华郡街景720°全景。