Upper Point Cook虽然隶属Werribe South行政区划,但距离西区最重要的购物中心Point Cook Town Centre仅有2公里,小区出发3公里范围内学校、医院、健身会所、商场一应俱全,地理位置得天独厚。Point Cook区占地大约37平方公里,在墨尔本CBD的西面,仅20公里的距离,它位于Wyndham市南面,紧贴飞利浦海湾的西海岸,M1免费高速公路贯穿整个Point Cook区,是通往墨尔本CBD的主要路线。20分钟可直达墨尔本CBD。
社区视频
与此同时,墨尔本西区作为政府大力扶持发展的区域,许多教育交通资源已经规划在建。而Upper Point Cook小区内部设计优美,是墨尔本投资居住的理想之地。周边环境优美,临近河流湿地等自然景观;point cook购物中心、高尔夫球场、博物馆等公共设施咫尺之遥,满足你日常休闲购物需求;维多利亚大学,Suzanne Cory High School重点高中等教育资源丰富;同时周边火车高速机场交通便利,到威廉姆斯兰町的巨大购物区仅一站火车站距离,开车到海边15分钟等等。
开阔空间,惬意生活:
Upper PC社区位于城市与海湾之间,宽阔的空间给您的家庭生活带来舒适之感。干净整洁的街道,风景如画的公园,以及有趣好玩的游乐场让您的生活更加惬意。Upper PC社区注重健康的居住生活环境,标志性的湿地入口,一块块工整有序的土地分布在无边无尽的绿地上以确保您的生活环境有足够的拓展空间,14公顷的开阔场地中,拥有两个带看台的大型体育场、步行和自行车车道以及公园和游乐场,居住在Upper PC社区,您和您的家人将享有更高品质的健康和谐生活。
未来规划
墨尔本西南区Werribee将新建一个超级城区East Werribee就业区(The East Werribee Employment Precinct),它被誉为自Docklands以来维州最大规模的商业和综合开发案。 新的East Werribee CBD将创造58000工作机会,并能容纳7000户家庭、近20000人将生活在这里。另外1.5万个岗位将诞生于两个大规模的商业区。零售核心地区East Werribee Town Centre将创造9000个工作岗位,包括餐厅、酒吧和咖啡厅。
投资潜力
UPC社区所在区域近五年的别墅中位价为50多万澳元,年平均增值率为17%,项目所在地又属于政府大力发展地区,升值潜力巨大,是投资墨尔本绝对不容错过的好项目!
优质学府
University of Melbourne 墨尔本大学分校区(澳洲排名第一)
Victoria University 维多利亚大学分校区(著名的四星大学)
Suzanne Cory High 精英公立高中(墨尔本排名前15)
Westbourne Grammar School私校(墨尔本精英私校)
Carranballac 公立学校
Lumen Christi Catholic 中学
Hoppers Crossing 公立中学
Wyndham Central 学院
Stella Maris 教会小学
Altona Green 小学
Seabrook 小学
Point Cook 中学
墨尔本排名前15的公立高中Suzanne Cory High School,是整个墨尔本西南区最好的一所高中,该校同时也有一定的名额可以接纳海外的留学生。
购物中心
BIG W 百货商场
Sanctuary Lakes 购物中心
Wyndham Village 购物中心
Point Cook 购物中心
Werribee 购物中心
Central Squareg 购物中心
Boardwalk Central 购物中心
Williams Landing 购物中心
交通便利
UPC别墅社区 距离两个已经通车的城铁车站,Hoppers Crossing 站和Williams Landing 站,均为2.5 公里。城铁火车直达墨尔本CBD。小区建成后会开通公交车路线,途经购物中心,学校及火车站。小区距离重要的交通主干道,Princess Freeway 高速现有入口仅200 米距离,25 分钟即可驶入墨尔本市区。
公园及休闲
Werribee 公园
Point Cook Coastal 公园
Werribee Open Range 动物园
Hargrave 公园
Kingsford Common 公园
Featherbrook 绿地
Werribee 动物园
Werribee 赛马场
Westside 酒店
Sanctuary Lakes 酒店
Quality Suites d'Olive 宾馆
Sanctuary Lakes 高尔夫俱乐部
Werribee Park 高尔夫球场
Wyndham 休闲娱乐中心
Hobsons Bay 图书馆
Point Cook湿地公园
医疗
Werribee 仁爱医院
Point Cook 医疗中心
大学城规划




规划视频
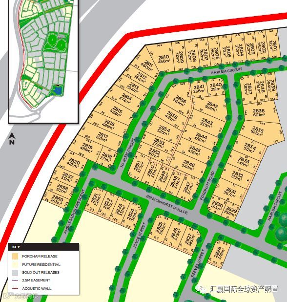
新推出地块:



户型欣赏








澳洲买地建房流程
“澳大利亚买地建房”整个付款流程如下:
1. 首先买家签土地合同时需要支付土地价格的10%,签建筑合同时需要支付建筑价格的5%作为首付款。
2. 到土地交割时,买家需要支付剩下土地价格的90%(含贷款部分)。
3. 土地交割后,建筑商收到政府的建筑许可(Building Permit)后开始动工建房,整个建筑过程分为五个阶段来完成,即:地基,框架,封顶,装修和完工阶段。
土地交割后付款方式如下:
1.买家首先支付5%的定金。
2.房屋地基做好后,买家需要支付建筑价格的20%给建筑商 。
3.框架做好后,买家需要支付建筑价格的25% 。
4.封顶做好后,买家需要支付建筑价格的20% 。
5.装修完工后,买家需要支付建筑价格的20% 。
6.实际完工交房时,买家需要支付建筑价格的10%。
需要注意的是:买家只需支付20%—30%的首付
剩余70%—80%可向澳洲商业银行贷款,每笔费用都
由银行直接拨给建筑商。
咨询电话: 1300 920 886 OR 0451 878 880
匯贏國際VIP客户酒会花絮






获取详细资料请扫二维码

直播电话 0451 878 880 咨询


