
面积:100
设计师更多案例:http://www.hualongxiang.com/haojun/11404685#125685804
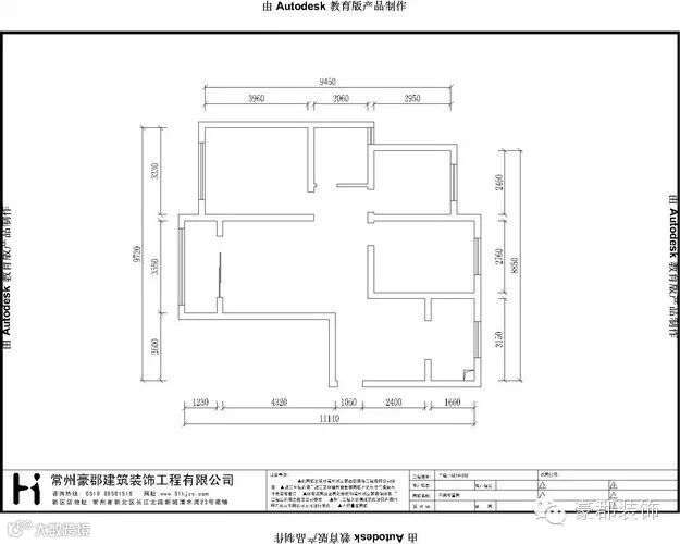
设计单位:常州豪郡建筑装饰

案例说明:现代简约风格,简洁和实用是其基本特点,也是其基本理念。人们装修时在经济、实用的同时,体现了一定的文化品味。而简约风格不仅注重居室的实用性,而且还体现出了工业化社会生活的精致与个性,符合现代人的生活品位。
现代简约效果图1

人生最令自己向往和渴望的生活就是,黄灯一盏,热饭一桌,家人一群,笑声一遍,一家人其乐融融的温暖幸福场景。于是,一家人围桌而坐,有说有笑,热闹非凡,其乐融融的感觉蔓延着整个家的每一个角落!
现代简约效果图2

本案主要以简约为主——极简的空间。在有限的空间中,运用“简朴即美”的原则,为的就是得到一种很好的装潢效果。
现代简约效果图3

小饰品的运用,时尚、淡雅!
现代简约效果图4

地面是这套房屋的理念,花状将整个个空间有序的填充,这种做法真是整套建筑的设计理念
现代简约效果图5

厨房也要美美哒!
现代简约效果图6

每一个气息都透漏一份温馨!
现代简约效果图7

忙碌的工作和紧张的生活,开始渴望拥有自由的感觉,现代简约带着一种释然后的豁达,引起了现代都市人更多的关注和喜爱。


