


▲ 进门之后就可以看到餐厅和客厅全景

▲ 看到两个隐形门了吗,完美的融入了墙面

▲ 懒人沙发边上的这个「鹿」是个装饰,同时可做书架用

▲ 沙发背景上部采用蓝色的乳胶漆,下部采用图案特别的壁纸

▲ 一组装饰画和地图的组合也显得文艺范

▲ 餐厅用了圆桌,水晶灯造型也很有特色

▲ 这个角度可以看到入户门以及鞋柜

▲ 从餐厅看向客厅角度

▲ 主卧的床头背景壁纸图案是一面墙的抽屉

▲ 透明的内卫

▲ 从内卫看向卧室

▲ 电视柜及梳妆台

▲ 次卧儿童房的壁纸

▲ 房间小,就只能放一张床和一个小写字台

▲ 第三个房间做了榻榻米,为多种功能备用

▲ 利用户型的角落做的书桌

▲ 卫生间干区

▲ 白色模压橱柜

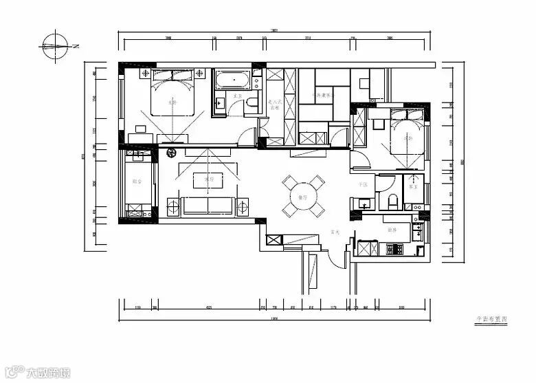
▲ 平面布置图



