

关于我们
常州豪郡装饰设计工程有限公司是一家专业从事家居装饰、写字楼、公寓、挑高空间、商业空间别墅设计与施工 的专业性工程公司,借助先进的施工技术,将人力资源有机的结合在一起,真正实现了资源合理调度,确保服务质量、时效性和低成本。

豪郡装饰
精英设计师领衔
多年设计工作经验积淀
设计方案全方位剖析
专业服务龙城千家业主
面对面解析户型设计要点
百分百全案设计效果
找最专业的设计师
就来豪郡装饰


BOUTBEAUTY
/刘文祥
设计理念:因地制宜,因人而异,设计是为每一个人创造一个属于自己的空间。
工作经验:3年以上
擅长风格:现代简约风格、欧式新古典风格、美式乡村风格、 地中海风格
小区案例:《香溢紫郡》、《御城》、《保利公园》、《阳光金域》、《星河国际》、《年华里》、《路径城》、《德禾豪景》、《海空苑》、《金星鼎邦》、《九州花园》
.


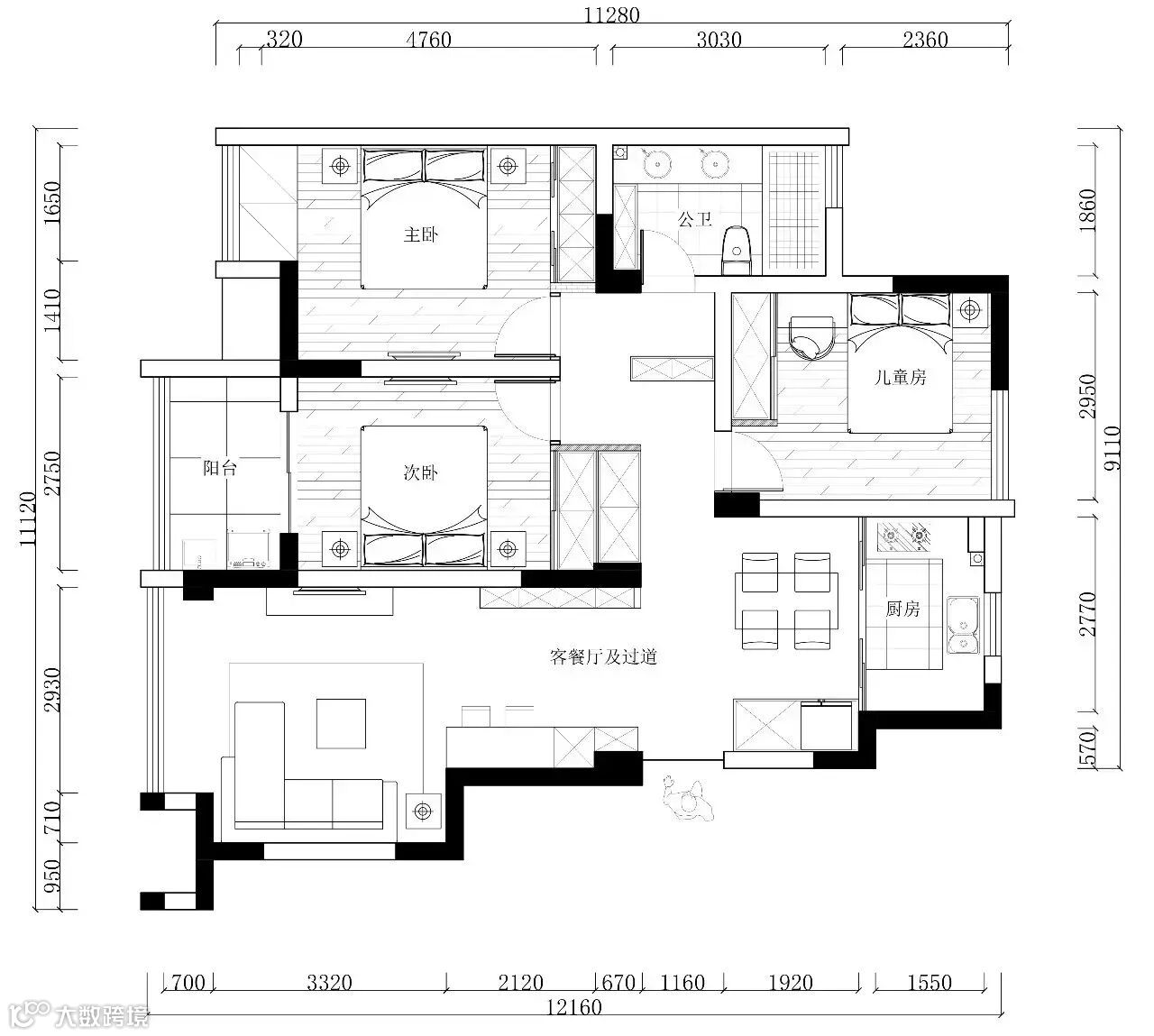
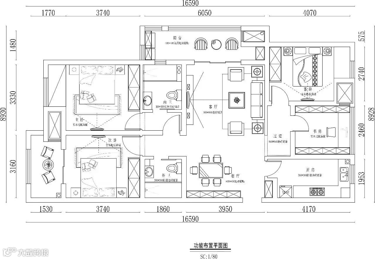
案例一:《德禾豪景》
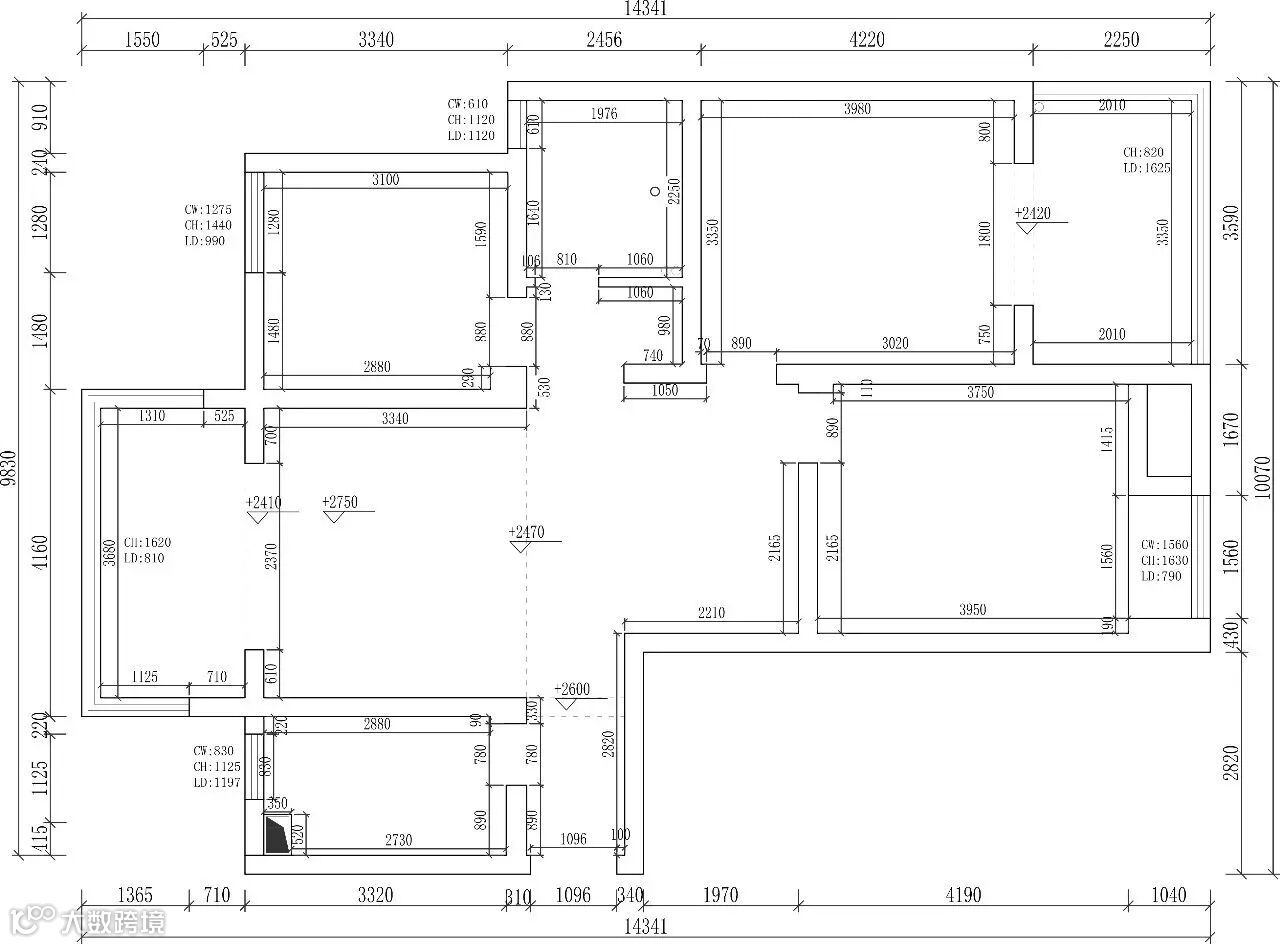
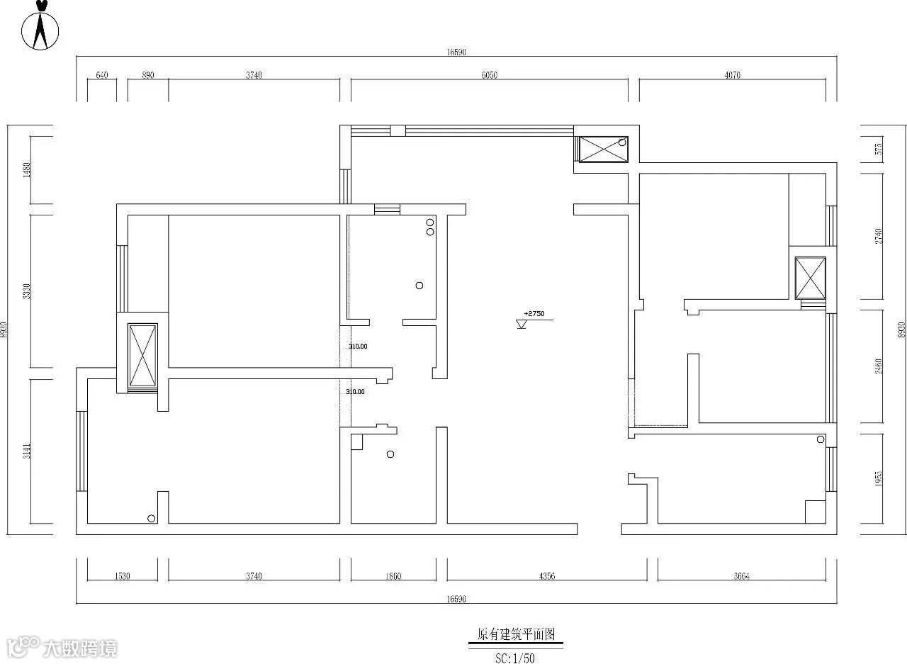
▼原始框架图

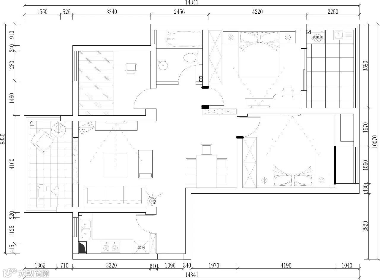
▼平面布置图

▼效果图

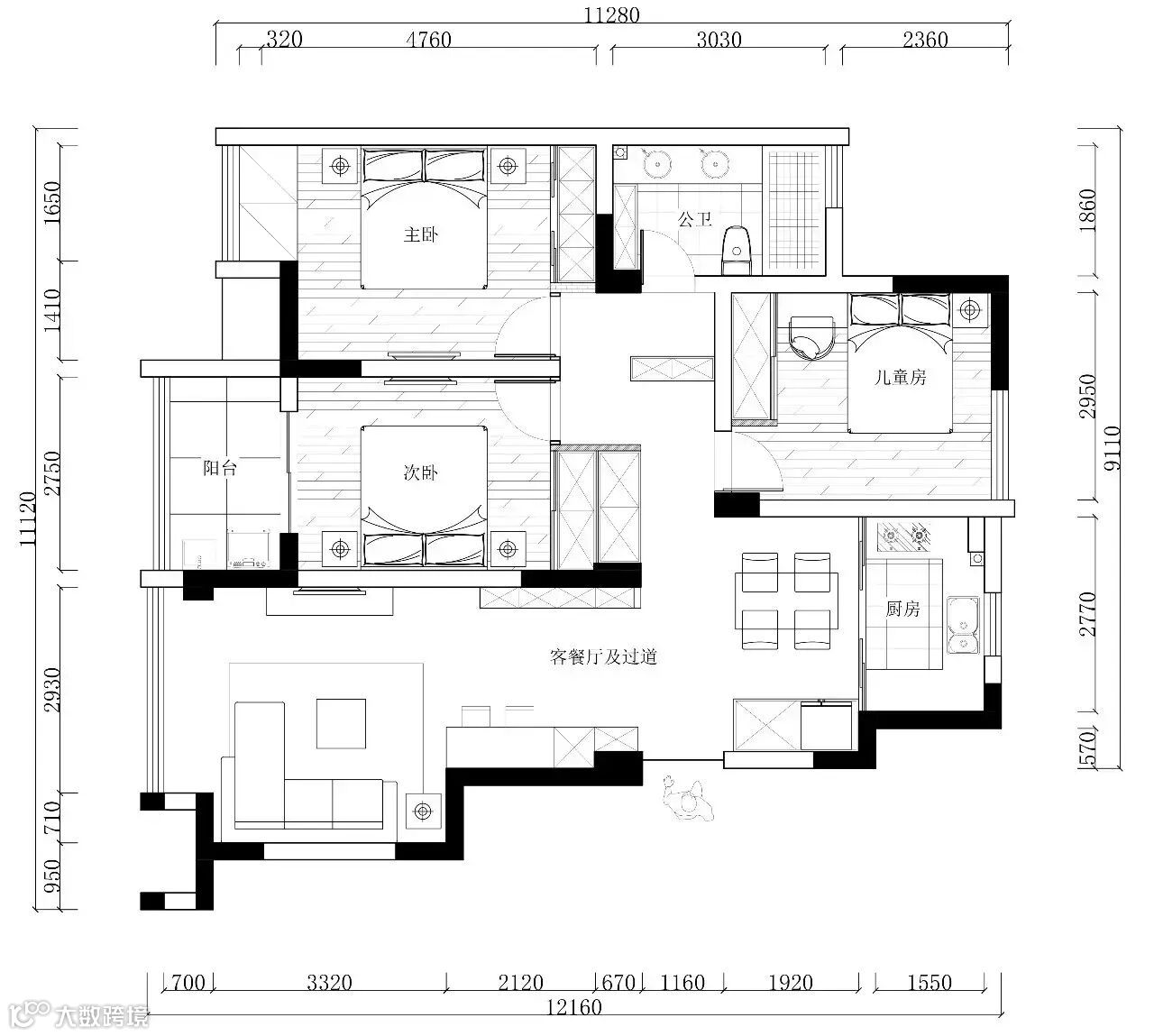
案例二:《海空苑》
▼原始框架图

▼平面布置图

▼效果图

案例三:《金星鼎邦》
▼原始框架图

▼平面布置图

▼效果图


案例四:《九洲花园》
▼原始框架图

▼平面布置图 
▼效果图


喜欢他的设计,就赶紧约他吧~
把控主材,精准预算!
空间规划,布局合理!
配置软装,风格协调!
节省时间,创造金钱!
豪郡装饰
给业主细致的服务,
一流的工艺,专业的品质。
一心一意为业主打造高质量高性价比的个性化新房,
让每一栋房子都有独特的设计,
豪郡装饰您值得拥有!
我们的目标是
做家装界最好的设计师,
设计界最好的施工队,
装修界最好的微信小编!
豪郡装饰,您值得拥有!

【豪郡装饰】丰富的活动、专业的行家、经验独到的装修人,豪郡装饰助您2016装修无烦恼,更多活动详情,请来两大门店(兰陵店/湖塘店)咨询,或关注【豪郡装饰】官方微信!【豪郡装饰】会为您持续推送活动相关详情!
小伙伴们赶紧约起来!
公司地址:
兰陵店:天宁区兰陵北路337-1号(美林大浴场旁)
湖塘店:湖塘广电路花园街茂业天地商务楼20层
咨询热线:
TEL:0519-83605988
Q Q: 2923507895
活动最终解释权归豪郡装饰所有。
豪郡装饰

创意美图|设计案例|装修知识|找设计师

赠人玫瑰,手有余香;
欢迎分享,你的小伙伴也可能会需要哦!


