


项目地址 | 路劲城
风格定位 | 简美
设计主创 | 刘小丽
施工单位 | 豪郡装饰
设计说明 | 在家具和配饰上基本延续了现代美式风格的特点,单纯,自然,充满个性化。 大胆的用色玩转小清新美式,淡淡的蓝绿色与白色搭配,调节情绪带给人宁静安适,减轻繁忙生活的压力。简约不失优雅的美式家具和灯具在满足功能需求的同时也令人再三回味。

BOUTBEAUTY
/刘小丽
设计理念:人可以改变环境,环境可以影响人,而设计可以改变人和环境。
工作经验:10年以上
擅长风格:现代简约风格、欧式新古典风格、美式乡村风格、 地中海风格、新中式风格
小区案例:公园一号、香溢澜桥别墅、华润国际、雅居乐、龙德花园、凯尔锋度等、保利公园九里、领绣汇怡盛花园、御城、大名城顺御和苑、御城、新城南都、路劲城、中央花园

▼原始结构图


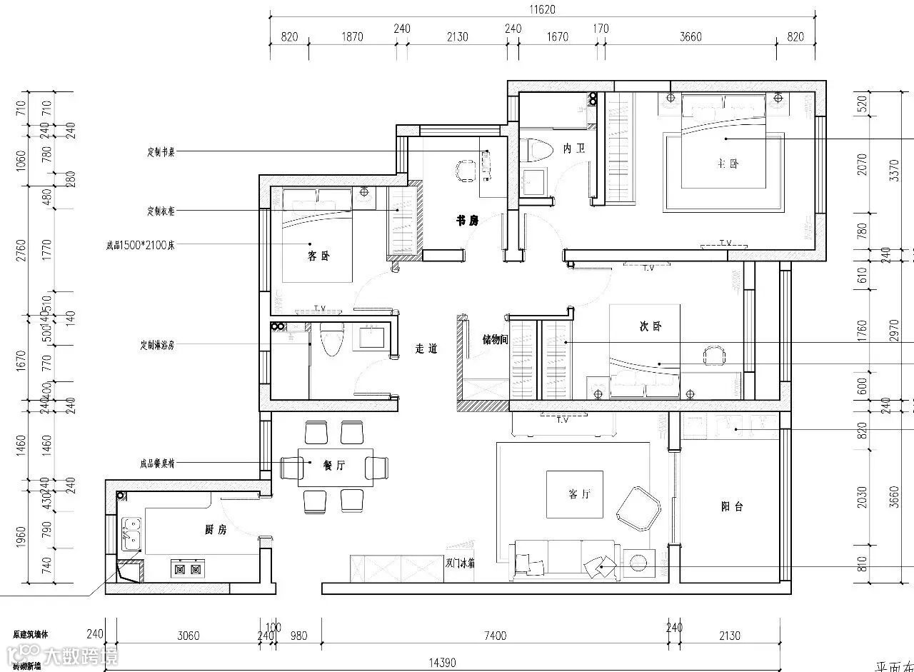
▼平面布置图


▼效果图

客 厅
宅如人,格调见修养
业主热爱生活、偏好温情温暖的家庭氛围......

窗帘运用美式古典线条与客厅 现代的家具相融合,恰到好处的交织出与众不同的韵味,营造出自然、怀旧的简美风格。

客厅作为待客区域,色彩简洁明快,三幅简单的叶子挂画美化了客厅的环境。与沙发的整体色调想呼应,达到和谐统一的艺术效果。
餐 厅

开放式餐厅,宽敞明亮,原木色桌椅舒适美观,符合美式的一大特色。背景墙以浅色彩为主调,两幅白兰花装饰画十分美观,给人身心的一种放松。

桌布花艺色彩丰富优雅,餐具精致美观。给整个餐区增添了一份浪漫的美式气息~
厨 房

美式风格的厨房装修,呈现古朴自然的设计,白色橱柜与深褐色墙砖想搭配,没有夸张的装饰,更多的是现代感十足的简约。

木质橱门让整间厨房都显出经典的美式风格,,水槽前的窗户正好使室外光线照射进厨房内,给这间厨房带来了不错的采光效果。
卫生间

卫生间是家用使用功能最强大的一个地方,布局规划合理,干湿分离。干净整洁,明亮舒适。

墙面采用马赛克瓷砖贴图,让卫生间设计变得更加个性化,更具特色。
主 卧


主卧强调睡眠的舒适性。窗帘的线条简约流畅,花艺的点缀使得整个空间温馨浪漫。充分的采光,使整个室内空间宽敞明亮。给主人提供了一个舒适的睡眠环境。

以白色为主的整体衣橱,环保、美观、收纳空间强。独具魅力,主人十分喜爱。
墙上的灯具不仅起到了照明的作用,同时使整个墙面不失单调,十分地美观。
儿童房

选用淡淡的蓝色作为儿童房的主色调,使整个空间都散发着清新舒爽之气。糖果色的窗帘和床上用品,颜色丰富多彩,使得儿童房生动活泼起来。为孩子营造一个绚丽多彩的成长环境。

这是小朋友独有的小天地。空间宽阔明亮,采光充足,有足够的空间可以邀约小伙伴来一起分享快乐。淡橘色的墙砖可以激发孩子的想象力,促进孩子茁壮成长。
特色休闲区

休闲区宽敞明亮,阳光充足。茶余饭后主人可以在这里沐浴阳光、看看书、喝喝茶、浏览浏览网页,很是惬意。而且主人是一位热爱运动的达人,跑步机满足了主人的需求。

它似花,似玉,
清新淡雅,温暖四方。
何时何地,依然如故。
幸福,便是心灵的家。
豪郡装饰给爱一个家,
与您一同创造,更舒适的家!

豪郡装饰
给业主细致的服务,
一流的工艺,专业的品质。
一心一意为业主打造高质量高性价比的个性化新房,
让每一栋房子都有独特的设计,
豪郡装饰您值得拥有!
我们的目标是
做家装界最好的设计师,
设计界最好的施工队,
装修界最好的微信小编!
豪郡装饰,您值得拥有!

【豪郡装饰】丰富的活动、专业的行家、经验独到的装修人,豪郡装饰助您2016装修无烦恼,更多活动详情,请来两大门店(兰陵店/湖塘店)咨询,或关注【豪郡装饰】官方微信!【豪郡装饰】会为您持续推送活动相关详情!
小伙伴们赶紧约起来!
拨打热线:
TEL:0519-83605988
Q Q: 2923507895
活动最终解释权归豪郡装饰所有。
豪郡装饰

创意美图|设计案例|装修知识|找设计师

赠人玫瑰,手有余香;
欢迎分享,你的小伙伴也可能会需要哦!


