
关于我们
豪郡建筑装饰设计工程有限公司是一家专业从事家居装饰、写字楼、公寓、挑高空间、商业空间别墅设计与施工 的专业性工程公司,借助先进的施工技术,将人力资源有机的结合在一起,真正实现了资源合理调度,确保服务质量、时效性和低成本。

豪郡装饰
精英设计师领衔
多年设计工作经验积淀
设计方案全方位剖析
专业服务龙城千家业主
面对面解析户型设计要点
百分百全案设计效果
找最专业的设计师
就来豪郡装饰

美式风格
自在、随意不羁的生活方式,
没有太多造作的修饰与约束,
不经意中也能成就一种休闲式的浪漫。

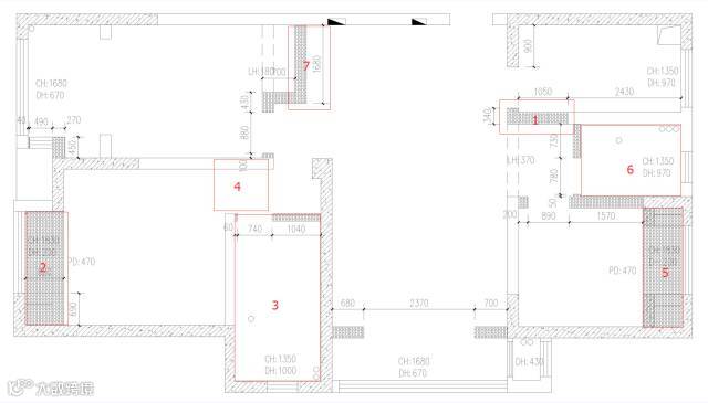
▼原始框架图

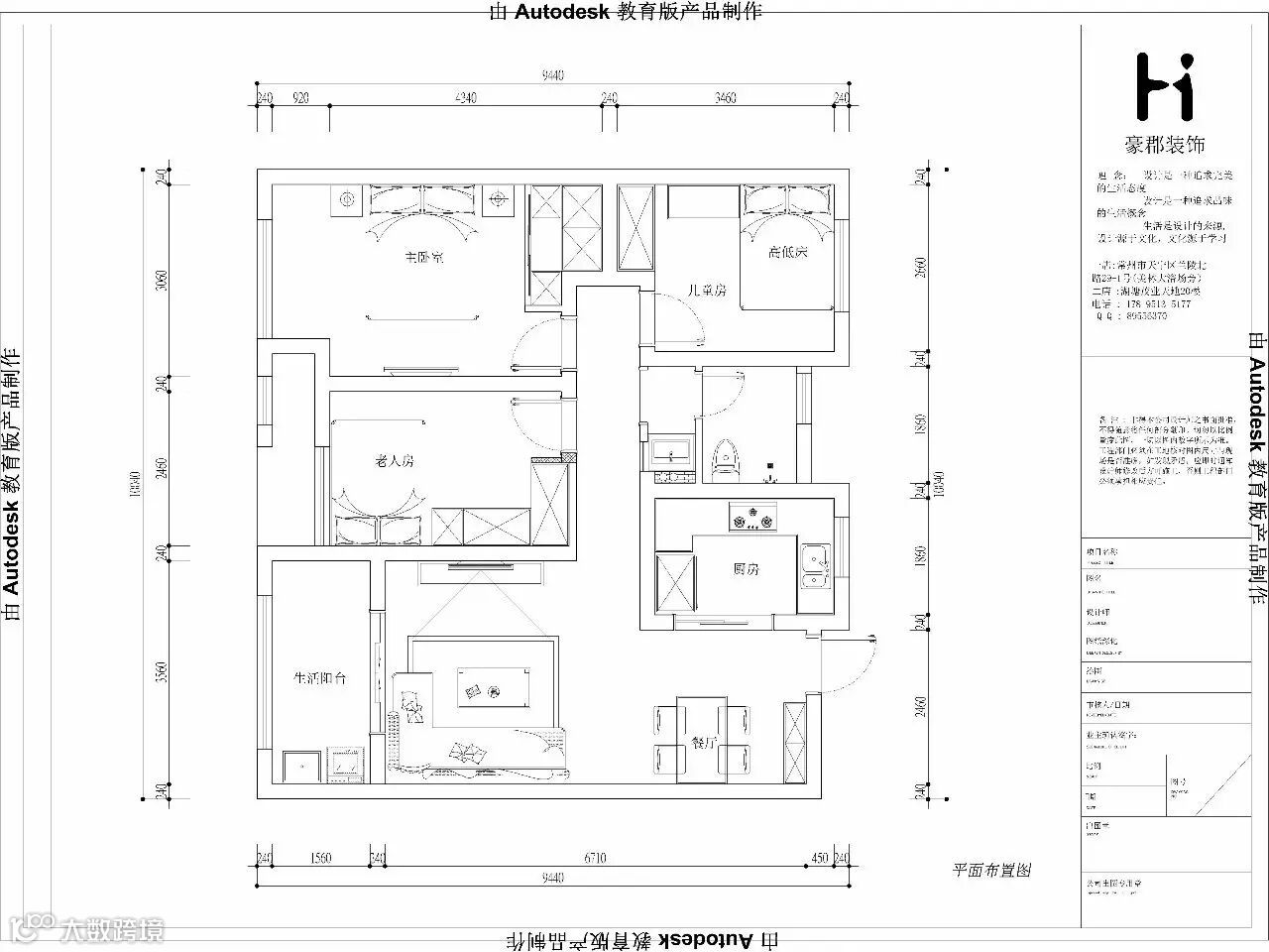
▼平面布置图

户型解析:
1、扩大厨房间的门洞,做移门,
2、主卧的飘窗敲掉,做飘窗柜,增大储物空间
3、内卫改成外卫,做双台盆
4、改变主卧门洞的方向
5、敲掉儿童房的飘窗,做书桌
6、外卫改成衣帽间,增大房屋的储物空间
7、次卧靠门处的墙敲掉,砌单墙,做双面柜,增大储物空间



现代简约风格
线条有的柔美雅致,
有的遒劲而富于节奏感,
整个立体形式都与有条不紊的、
有节奏的曲线融为一体

▼原始框架图

▼平面布置图



新中式风格
讲究空间的层次感,
格调高雅,造型简朴优美,
色彩浓重而成熟。

▼原始框架图

▼平面布置图

户型解析:
1、为增加放冰箱的位置,把门口边上的一扇门敲掉,拓展空间


新中式风格
讲究空间的层次感,
格调高雅,造型简朴优美,
色彩浓重而成熟

▼原始框架图

▼平面布置图

户型解析:
1、卫生间做成干湿分离;
2、为扩大空间,把过道的拐角敲掉




豪郡装饰——给业主细致的服务,一流的工艺,专业的品质。
一心一意为业主打造高质量高性价比的个性化新房,
让每一栋房子都有独特的设计,豪郡装饰您值得拥有!
我们的目标是——做家装界最好的设计师,设计界最好的施工队,装修界最好的微信小编!豪郡装饰,您值得拥有!
联系我们
兰陵店
▼
常州市天宁区兰陵北路337-1号(美林大浴场旁)
Tel:0519-81887333
湖塘店
▼
常州市湖塘广电路花园街茂业天地商务楼20层
Tel:0519-83605988
豪郡装饰

创意美图|设计案例|装修知识|找设计师

