
小编说:
周一的早晨,蔚蓝的天空像被雨水冲洗过一尘不染;空气是那么清新,一派生机勃勃,崭新的一天又开始了。路上形形色色的上班族都赶着早,开始投入到忙忙碌碌的工作中去了。伴随着美好的一天,豪郡装饰深业华府的业主今日开工啦!豪郡装饰的鲁总、设计师刘工和项目经理一同在此祝贺业主开工大吉。下面就和小编一起来看看现场发来的照片吧~
项目地址 |深业华府
风格定位 | 现代
项目面积 |160
设计主创 | 刘小丽
施工单位 | 豪郡装饰

本案设计师

BOUTBEAUTY
/刘小丽
设计理念:人可以改变环境,环境可以影响人,而设计可以改变人和环境。
工作经验:10年以上
擅长风格:现代简约风格、欧式新古典风格、美式乡村风格、 地中海风格、新中式风格
小区案例:公园一号、香溢澜桥别墅、华润国际、雅居乐、龙德花园、凯尔锋度等、保利公园九里、领绣汇怡盛花园、御城、大名城顺御和苑、御城、新城南都、路劲城、中央花园

▼原始框架图

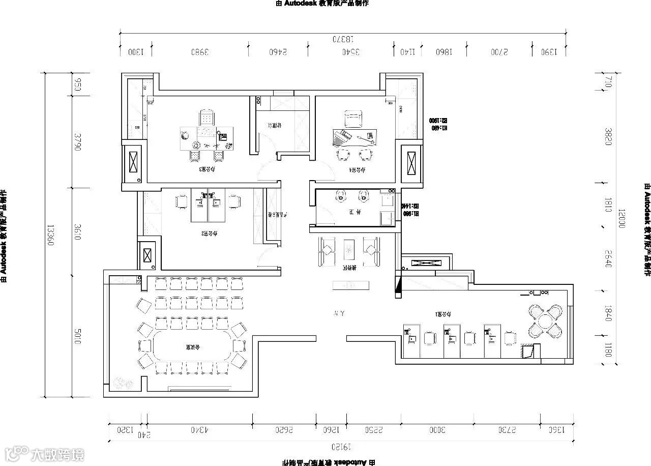
▼8-102室平面布置图

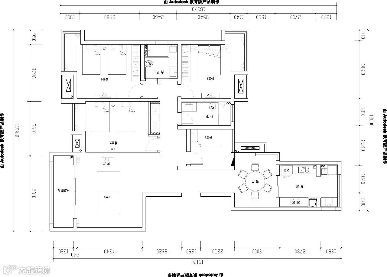
▼8-202室平面布置图

小区景色宜人
走进小区,你会看见一条宽阔的道路,中间的池塘静静的徜徉。两旁的绿植青葱茂盛。小区环境优美,空气十分清新,住在这里的人们都十分地安逸快乐。

早早地,我们的工作人员就来到了现场开始准备着:贴横幅、设计师简介牌、施工制度表、门保地保、摆八字鞭炮、检查周边环境。在鲁总的安排下,一切都井然有序地进行着,大家都静静地等待开工时刻的到来。

七点三十八分,开工仪式开始

7:38放鞭炮。噼里啪啦 , 如星的红点一颗颗炸裂开来,像是油锅里的红豆子,舞动着欢快的步点。预示美好生活的开始,豪郡装饰祝贺业主开工大吉。



随后豪郡装饰的鲁总勘察房屋结构情况,与业主交流各方面装修细节。指出房屋装修中将存在的问题,并给出相应的宝贵意见。同时交代项目经理在施工过程中应该注意的相关事宜。

他指出:要严格监督施工质量“细节决定成败,所以最基本的东西一定要做到位,不容马虎!”鲁大大总是这么的亲力亲为,认真负责,所以业主的家交给豪郡准没有错!

接下来,设计师刘工又开始带领着大家讲解房屋今后的改造设计。每一处,每一个细节她都讲的非常仔细认真。得到了主家一致的认可。

分析图纸。作为一个设计师、作为一个妻子、作为一个6岁儿子的妈妈,她每天中变幻着多种角色,却能游刃有余,把握住度,将每一个角色都演绎到极致。

思索考量。她说:“作为一名设计师我不觉得辛苦,能为每一位业主打造一款属于他们的家是我最大的荣耀,谢谢有他们的支持与信任”。生活中,刘工是一位好妻子,好妈妈。对待工作,更是能尽心尽责,同事们都很喜欢她。

做好标记。她要求自己做一个实力派设计师,不断的学习及不断的体验、感触来丰富自己的阅历是必不可少的。只要勤奋就会有很多收获,我们都应该向她学习。
豪郡装饰
给业主细致的服务,
一流的工艺,专业的品质。
一心一意为业主打造高质量高性价比的个性化新房,
让每一栋房子都有独特的设计,
豪郡装饰您值得拥有!
我们的目标是
做家装界最好的设计师,
豪郡装饰您值得拥有!
我们的目标是
做家装界最好的设计师,
设计界最好的施工队,
装修界最好的微信小编!
豪郡装饰,您值得拥有!


BOUTBEAUTY
关于活动
即日起豪郡装饰“惠装风暴”感恩回馈活动,优惠强势来袭!多重豪礼大放送!给广大业主朋友们送福利啦~活动时间:6月18日~8月28日。优惠力度空前。同时,来店内咨询就有精美礼品相送,更有机会赢取豪华大礼!小伙伴们还不抓紧时间约起来~
九年装修历程,九重豪礼回馈





幸运抽奖礼
签订合同即可参加幸运大抽奖活动
(100%中奖率,以实物为准)
电饭煲
豆浆机
挂烫机
扫地机器人
32寸飞利浦液晶电视

设计团队
(五大总监领衔,设计方案全方位剖析,倾情演绎九年磨砺积淀,服务龙城千家业主)

施工团队
(15位资深金牌项目经理,现场任意挑选,从源头把控施工质量)
豪郡装饰
给业主细致的服务,
一流的工艺,专业的品质。
一心一意为业主打造高质量高性价比的个性化新房,
让每一栋房子都有独特的设计,
豪郡装饰您值得拥有!
我们的目标是
做家装界最好的设计师,
豪郡装饰您值得拥有!
我们的目标是
做家装界最好的设计师,
设计界最好的施工队,
装修界最好的微信小编!
豪郡装饰,您值得拥有!

【豪郡装饰】丰富的活动、专业的行家、经验独到的装修人,豪郡装饰助您2016装修无
烦恼,更多活动详情,请来两大门店(兰陵店/湖塘店)咨询,或关注【豪郡装饰】官方微信!【豪郡装饰】会为您持续推送活动相关详情!
小伙伴们赶紧约起来!
兰陵店:天宁区兰陵北路337-1号(美林大浴场旁)
湖塘店:湖塘广电路花园街茂业天地商务楼20层
拨打热线:
TEL:13806127830
Q Q: 2923507895
活动最终解释权归豪郡装饰所有。
豪郡装饰

创意美图|设计案例|装修知识|找设计师

赠人玫瑰,手有余香;
欢迎分享,你的小伙伴也可能会需要哦!


