

项目地址 | 御城
风格定位 | 美式
设计主创 | 刘小丽
施工单位 | 豪郡装饰


人可以改变环境,环境可以影响人,而设计可以改变人和环境。
▼
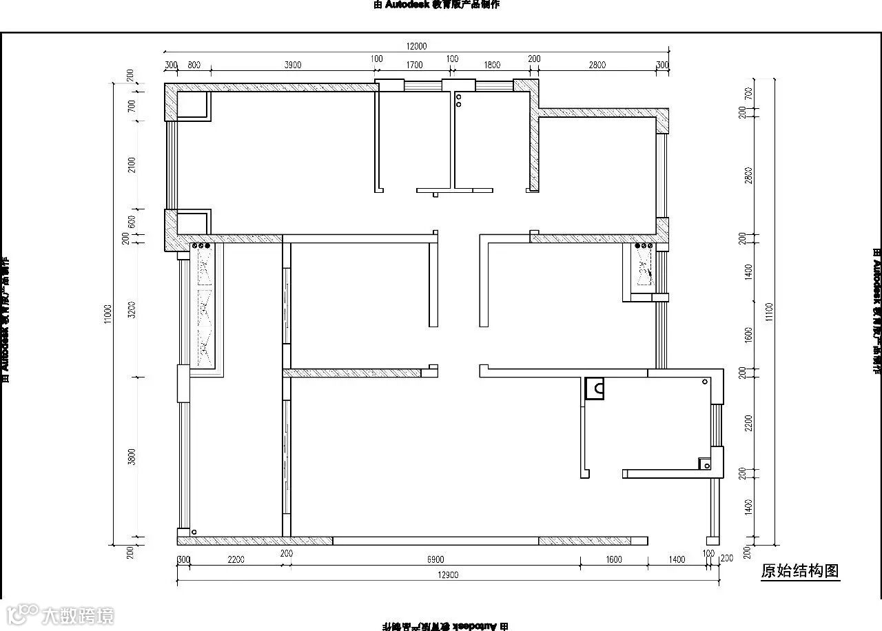
【原始框架图】

▼
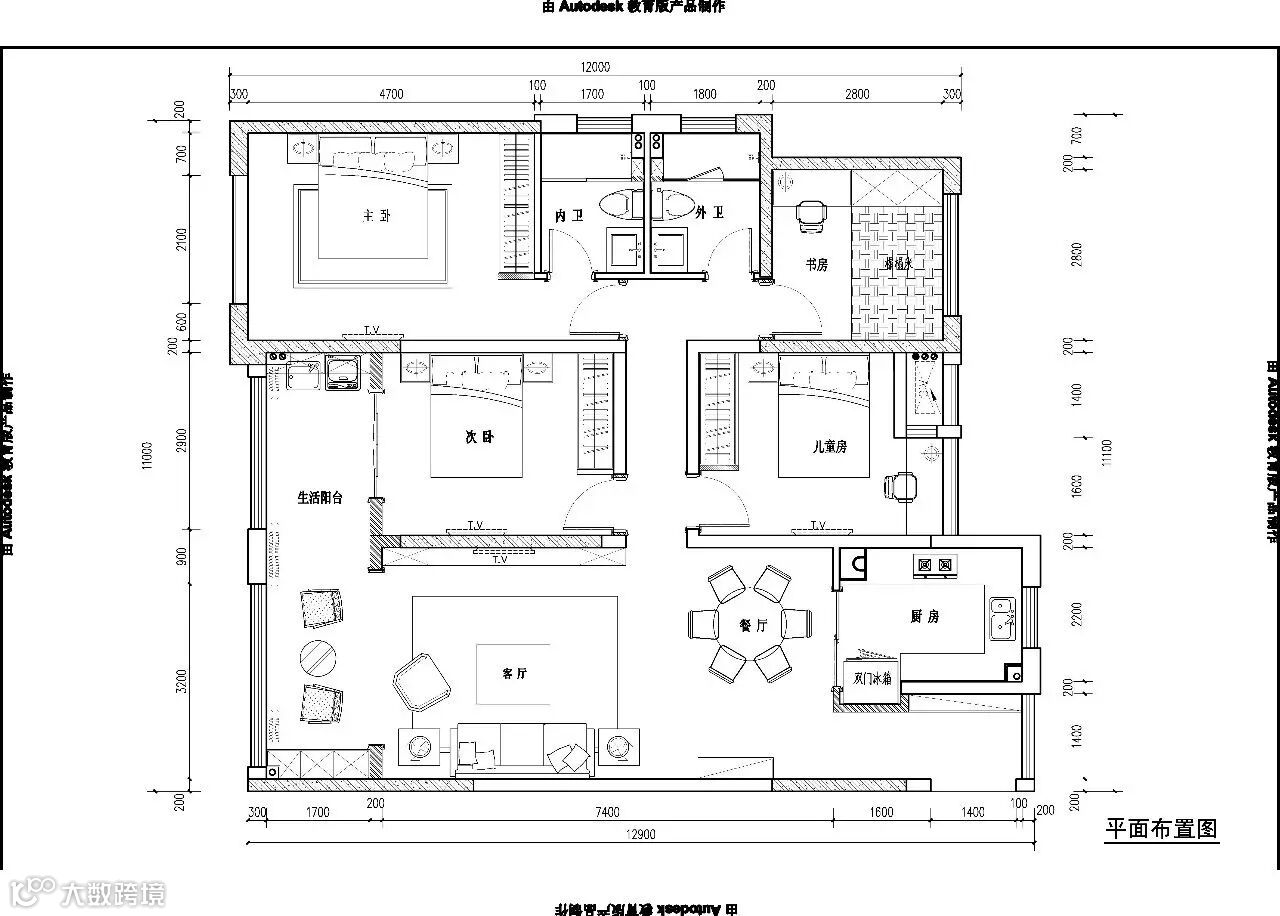
【平面布置图】

▼
【客餐厅】








▼
【厨房】




▼
【走廊】

▼
【次卧】



▼
【儿童房】




▼
【主卧】





▼
【书房】



▼
【卫生间】




▼
【阳台】



联系我们
兰陵店
▼
常州市天宁区兰陵北路337-1号(美林大浴场旁)
Tel:0519-81887333
湖塘店
▼
常州市湖塘广电路花园街茂业天地商务楼20层
Tel:0519-83605988

创意美图|设计案例|装修知识|找设计师
豪郡装饰官方网站:www.cnhaojun.com


