关于我们
豪郡建筑装饰设计工程有限公司是一家专业从事家居装饰、写字楼、公寓、挑高空间、商业空间别墅设计与施工 的专业性工程公司,借助先进的施工技术,将人力资源有机的结合在一起,真正实现了资源合理调度,确保服务质量、时效性和低成本。

豪郡装饰
精英设计师领衔
多年设计工作经验积淀
设计方案全方位剖析
专业服务龙城千家业主
面对面解析户型设计要点
百分百全案设计效果
找最专业的设计师
就来豪郡装饰
北 欧
自在、随意不羁的生活方式,
没有太多造作的修饰与约束,
不经意中也能成就一种休闲式的浪漫。

BOUTBEAUTY
/壮泽宇

设计理念:设计就是优化与组合,将业主个人理念融合进设计中加以优化。
工作经验:5年以上
擅长风格:简欧 现代 美式
小区案例:兰陵锦轩、弘阳广场、天润园、御城、路劲城、中央花园
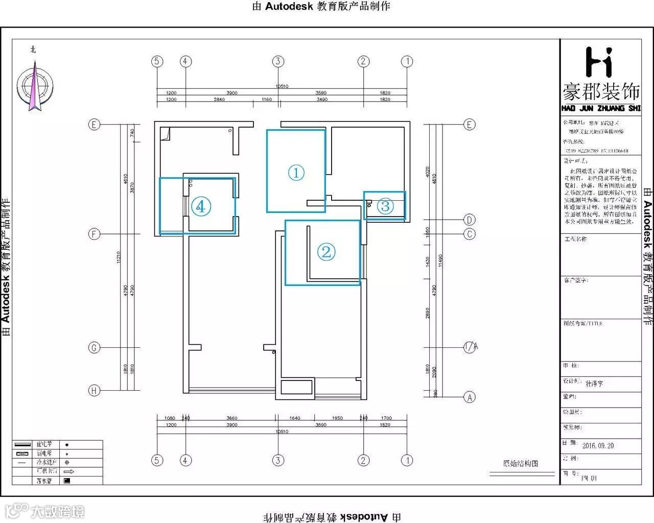
▼原始框架图

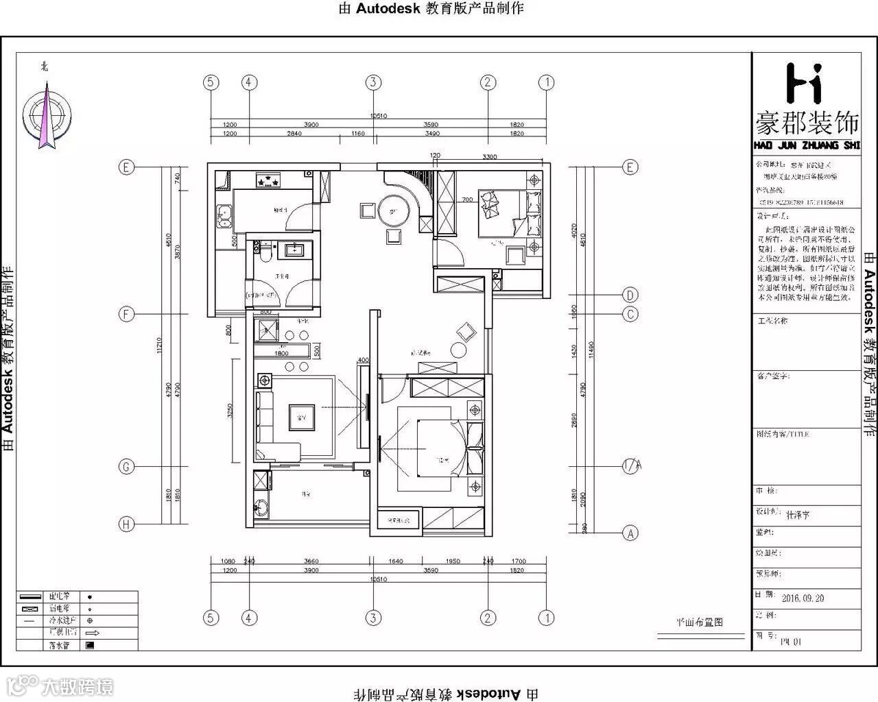
▼平面布置图

案例解析:
1、进门做弧形卡座,多余墙体敲除找平
2、原来墙体敲除,做开放式书房
3、次卧飘窗敲除,改做书桌
4、设备平台从新砌墙将厨房与淋浴房隔开

北欧人创造了举世闻名的童话,也创造了举世无双的家具。他们“古朴+时尚,简洁+精湛”的人本主义设计思想,充分体现了北欧人对生活的理解。他们有一颗童真浪漫的心,所以,我们在北欧家具里能看到森林、小屋、海浪,以其童话里的精灵,不管是“纯北欧”还是“新北欧”…… 何为“纯北欧”?意即在材质、设计与工艺上都拥有纯正的“北欧血统”,在风格上也沿袭北欧家具一贯的特征:精炼简洁、线条明快、造型紧凑,实用和接近自然是北欧现代家具的两个主要特点。
豪郡装饰——给业主细致的服务,一流的工艺,专业的品质。
一心一意为业主打造高质量高性价比的个性化新房,
让每一栋房子都有独特的设计,豪郡装饰您值得拥有!
我们的目标是——做家装界最好的设计师,设计界最好的施工队,装修界最好的微信小编!豪郡装饰,您值得拥有!

双11,我们豪郡装饰又有新一轮的优惠活动了!

基础装修9.5折仅限60名
前11名交9000抵10000
来店送现金
单笔订单满
35000元送1000元主材现金支票
50000元送3000元主材现金支票
65000元送5000元主材现金支票

加11元,即可获得幸运大抽奖一次
100%中奖哟~




活动时间
2016年10月9日~2016年11月11日

联系我们
兰陵店
▼
常州市天宁区兰陵北路337-1号(美林大浴场旁)
Tel:0519-81887333
湖塘店
▼
常州市湖塘广电路花园街茂业天地商务楼20层
Tel:0519-83605988
24小时服务电话
▼
Tel:181 5128 9188
豪郡装饰

创意美图|设计案例|装修知识|找设计师
豪郡装饰官方网站:www.cnhaojun.com


