关于我们
豪郡建筑装饰设计工程有限公司是一家专业从事家居装饰、写字楼、公寓、挑高空间、商业空间别墅设计与施工 的专业性工程公司,借助先进的施工技术,将人力资源有机的结合在一起,真正实现了资源合理调度,确保服务质量、时效性和低成本。

豪郡装饰
精英设计师领衔
多年设计工作经验积淀
设计方案全方位剖析
专业服务龙城千家业主
面对面解析户型设计要点
百分百全案设计效果
找最专业的设计师
就来豪郡装饰
简 欧 风 格

高级设计师
BOUTBEAUTY
刘文祥

设计理念:因地制宜,因人而异,设计是为每一个人创造一个属于自己的空间。
工作经验:4年以上
擅长风格:简美、现代简约、美式乡村风格、 地中海风格、新中式风格
小区案例:《百馨西苑》《悠活城》《世茂香槟湖》《青建鼎都》《德禾豪景》
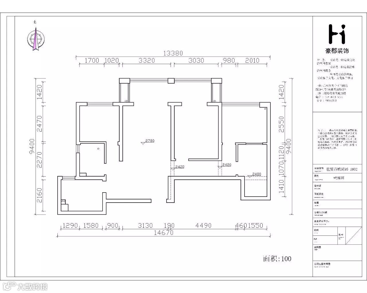
▼原始框架图

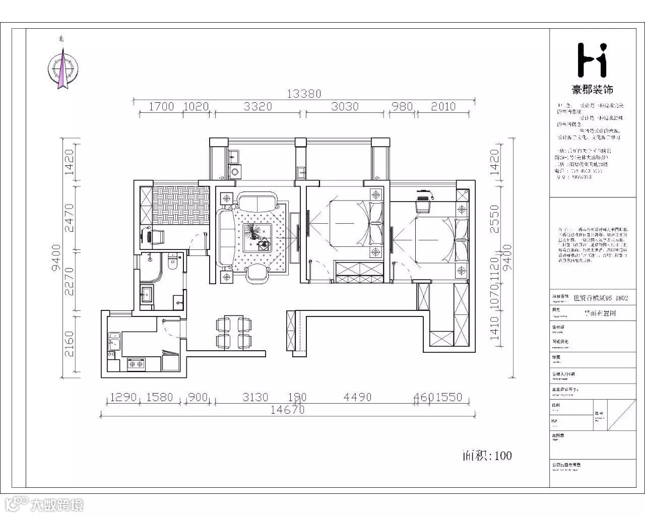
▼平面布置图


简欧风格是欧式装修风格的一种,多以御品黄、象牙白等为主色调,以浅色为主深色为辅。相对于浓厚的欧洲风格,简欧风格为清新、符合中国用户内敛的审美观念。而且秉承了时尚、环保的理念。其实简欧风格是一个相对比较模糊的概念,和欧式风格的最大区别在于色调和罗马柱的区别,骈弃了一般花哨的修饰。整个房间的画面感,简约统一。

联系我们
兰陵店
▼
常州市天宁区兰陵北路337-1号(美林大浴场旁)
Tel:0519-81887333
湖塘店
▼
常州市湖塘广电路花园街茂业天地商务楼20层
Tel:0519-83605988
豪郡装饰

创意美图|设计案例|装修知识|找设计师
豪郡装饰官方网站:www.cnhaojun.com

赠人玫瑰,手有余香;
欢迎分享,你的小伙伴也可能会需要哦!
↓↓↓

