
BOUTHAOJUN
关于我们
常州豪郡装饰工程有限公司是一家专业从事家居装饰、写字楼、公寓、挑高空间、商业空间别墅设计与施工 的专业性工程公司,借助先进的施工技术,将人力资源有机的结合在一起,真正实现了资源合理调度,确保服务质量、时效性和低成本。
新中式
16 0 ㎡
深业华府
豪郡装饰
精英设计师领衔
多年设计工作经验积淀
设计方案全方位剖析
专业服务龙城千家业主
面对面解析户型设计要点
百分百全案设计效果
找最专业的设计师
就来豪郡装饰
新中式

自在、随意不羁的生活方式,
努力探索中国传统住宅,
古典与现代完美结合,
传统与时尚并存。
首席设计师
BOUTBEAUTY
钱舒云

设计理念:设计是一种追求品味的生活概念。
工作经验:5年以上
擅长风格:现代简约风格、欧式新古典风格、美式乡村风格、 地中海风格、新中式风格
小区案例:大名城顺御和苑、御城、路劲城、中央花园、保利公园九里、龙湖原山、蔚蓝天地、玉兰广场、莱蒙城、中澳珑郡......
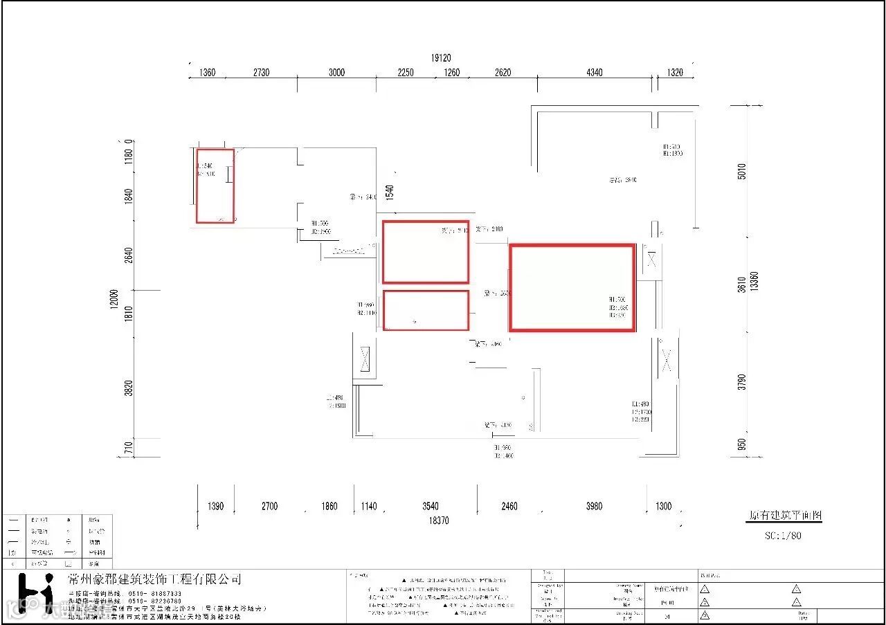
▼原始框架图

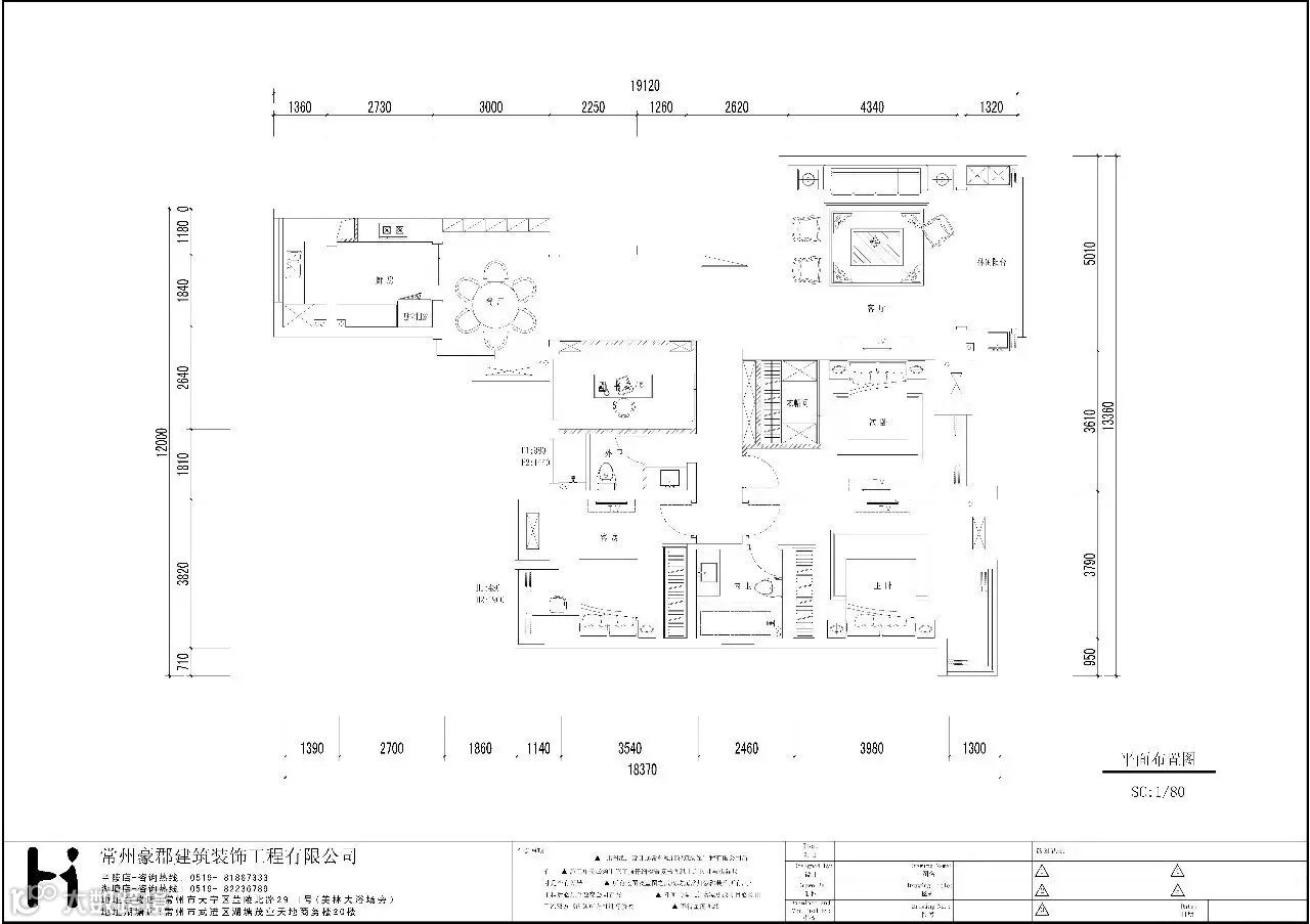
▼平面布置图

方案解析:
1、将厨房原窗敲除,增大厨房空间
2、将书房与餐厅间墙体敲除新砌,增大餐厅空间
3、将次卧原墙体敲除新砌,隔出衣帽间
4、外卫做干湿分离
▼客厅

▼主卧

新中式风格不是纯粹的元素堆砌,而是通过对传统文化的认识,将现代元素和传统元素结合在一起,以现代人的审美需求来打造富有传统韵味的事物,让传统艺术在当今社会得到合适的体现。
豪郡装饰——给业主细致的服务,一流的工艺,专业的品质。
一心一意为业主打造高质量高性价比的个性化新房,
让每一栋房子都有独特的设计,豪郡装饰您值得拥有!
我们的目标是——做家装界最好的设计师,设计界最好的施工队,装修界最好的微信小编!豪郡装饰,您值得拥有!
联系我们
兰陵店
▼
常州市天宁区兰陵北路337-1号(美林大浴场旁)
Tel:0519-81887333
新北店
▼
正在筹备中,敬请期待~

创意美图|设计案例|装修知识|找设计师
豪郡装饰官方网站:www.cnhaojun.com



