提示:点击上方"豪郡装饰"↑免费订阅本刊~
BOUTHAOJUN
关于我们
常州豪郡装饰工程有限公司是一家专业从事家居装饰、写字楼、公寓、挑高空间、商业空间别墅设计与施工的专业性工程公司,借助先进的施工技术,将人力资源有机的结合在一起,真正实现了资源合理调度,确保服务质量、时效性和低成本。
5月14日下午一点三十分,化龙巷装修看房团的香油们抵达了我们豪郡装饰一<管>到底工艺的样板间——华润国际三期71-甲-801,以下是样板间平面布置方案:
华润国际71-甲-801
133㎡ 北欧风
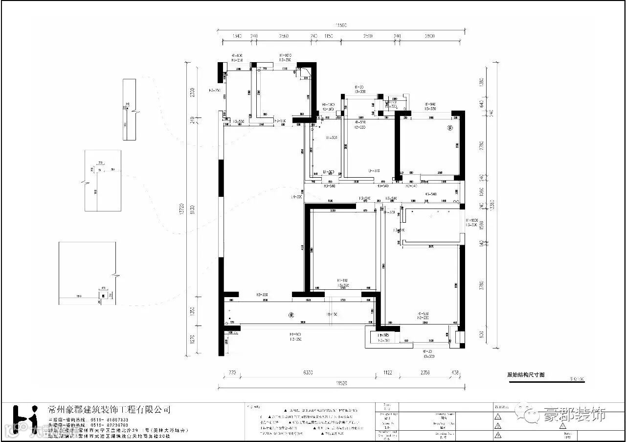
【原始框架图】
▼

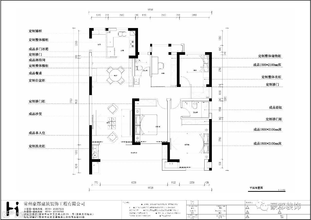
【平面布置图】
▼

下面隆重介绍:
本案设计师
▼
吴浩深总监

本案项目经理
▼
高启荣经理

周末的天气有点热,第一批业主们满怀着热情来到豪郡华润国际的样板间~

签到中~

签到完毕,小编也随着香油们的步伐,到达位于8楼的样板间
到达样板间我们首先看到了


现场设计师们已经开始讲解业主们所提出的问题,气氛十分热烈。


送走了第一批香油,我们稍作调整,等待第二批业主的到来。
先看一波现场图:











下午四点三十分,第二批业主们也抵达了现场。

签到是少不了的啦~

业主们到达样板间后,设计师们开始工作啦!凡是业主们提出的问题,设计师们都是知无不言言无不尽。


鲁总作为解说员,全程在为业主们讲解现场工艺的特色,业主们围在鲁总身边听讲解工艺。

这一次的看房团活动完美收官,期待下一次与你们相遇在豪郡装饰的工艺样板间!

长
按
关
注
关注豪郡,有惊喜!
联系我们
兰陵店:常州市天宁区兰陵北路337-1号(美林大浴场旁)
分 店:正在筹备中,敬请期待~
TEL :0519-81887333
创意美图|设计案例|装修知识|找设计师
阅读原文,了解更多

