点击上方"豪郡装饰"↑免费订阅本刊~

案例
九洲花园缇香郡
简美风
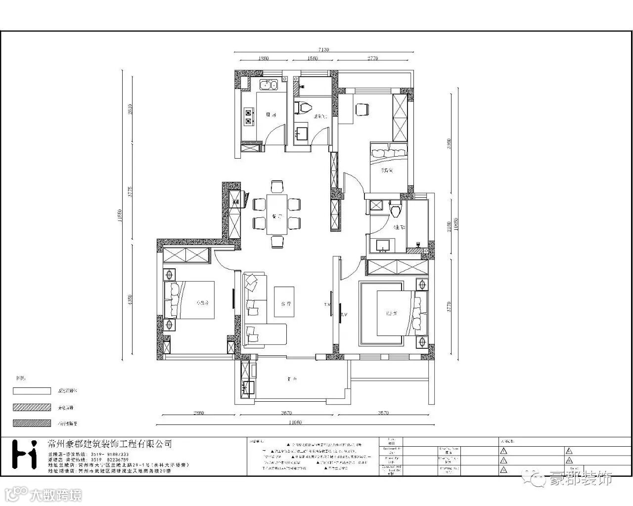
平面布置图▼



家,让人放松;家让人卸掉压力,谁都想拥有一个属于自己的家。它包含了你对美好生活的向往。主人追求一种进门后可卸下工作,卸下压力,卸下所有烦恼,完全放松的投入家庭生活中。一起来看看这个温馨舒适的家。
客厅▼






餐厅▼





主卧▼



次卧▼


儿童房▼




卫生间▼




厨房▼



做装饰,我们是认真的。
常州豪郡建筑装饰工程有限公司
一家专业从事家居装饰、写字楼、公寓、挑高空间、商业空间、别墅设计与施工的
专业性工程公司。
长
按
关
注
关注豪郡,有惊喜!
联系我们
兰陵店:常州市天宁区兰陵北路337-1号(美林大浴场旁)
分 店:正在筹备中,敬请期待~
TEL :0519-81887333
创意美图|设计案例|装修知识|找设计师
阅读原文,了解更多

