
案例
深业华府
新中式
古有“斯是陋室,惟吾德馨”,今有斯是中式, 惟吾韵新。让我们一睹实景的风采吧!
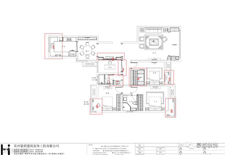
平面布置图▼

“含蓄之美”是中国人的一种独具特色的审美文化,带有浓郁的东方色彩。“犹抱琵琶半遮面”、“欲语还休”、“欲露还藏”......自古以来,我们在言及东方文化的时候,处处都能见到含蓄的痕迹。
而当这种中国人都崇尚的朦胧美感具体体现在建筑装饰上,它所塑造出来的意境更是妙不可言,充分展现着一种低调的魅力。
门厅▼


客厅▼




餐厅▼




主卧▼


女儿房▼


儿子房▼


厨房▼



卫生间▼


阳台▼


做装饰,我们是认真的。
常州豪郡建筑装饰工程有限公司
一家专业从事家居装饰、写字楼、公寓、挑高空间、商业空间、别墅设计与施工的
专业性工程公司。
长
按
关
注
关注豪郡,有惊喜!
联系我们
兰陵店:常州市天宁区兰陵北路337-1号(美林大浴场旁)
分 店:正在筹备中,敬请期待~
TEL :0519-81887333
创意美图|设计案例|装修知识|找设计师
阅读原文,了解更多

