拿房啦~拿房啦~~
但是。。。怎么装修?怎样才能显示我的独特?
我们都一样
一样刚刚才拿到房
最快的也就是楼下的那户刚开始砸墙
我怎么才能先他人一步知道我家应该怎么装?

来了来了~
PINGO整装·豪郡装饰先他人一步告诉你
你想要的想看的这里都有
快来看看有没有你家吧~~
星河国际85㎡
原始结构图

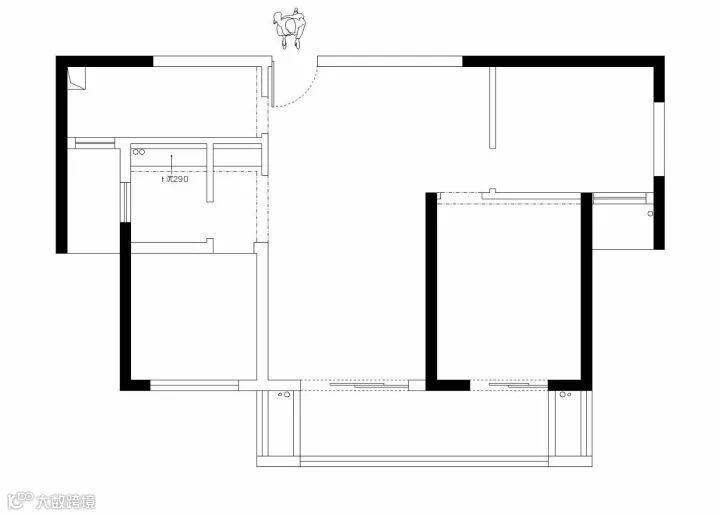
平面布置图

户型解析
通过改造,将共用空间变更为洗衣房;
将过道与次卧敲通,一来次卧空间够大,二来储物空间也有了。
星河国际103㎡
原始结构图

平面布置图

户型解析
将餐厅隔一块区域做衣帽间,即解决了浪费问题,又多了储藏空间
星河国际117㎡
原始结构图

平面布置图

户型解析
厨房巧借干区面积,将冰箱放入厨房空间;
进门区域借次卧及过道面积,多了鞋柜以及衣帽间的存储空间。
星河国际135㎡
原始结构图

平面布置图

户型解析
将餐厅区域向北阳台拓展,使餐厅面积变大,厨房也更加宽敞,还多了吧台的区域。
将过道缩短,使主卧与小房间多了储物空间,也使得空间利用率更高。
星河国际144㎡


户型解析
利用北阳台空间使餐厅变大;将南阳台部分空间借入次卧室,
使次卧变大;将过道尽头空间调整,使客卧、次卧都有了单独的储物空间;
也使得主卧有了衣帽间兼书房的空间。
你以为这些就是我的全部了?
No No No
还有更多劲爆方案赶紧来PINGO国际·豪郡装饰吧
直接给予你家的生活方式

1、拿房不验房,装修算白忙,PINGO国际•豪郡装饰专业来帮忙
2、VR+AR向您提供一站式产品、设计、体验、服务,所见即所得
PINGO国际·豪郡装饰全新推出
零利润首批天使用户
全屋整装,拎包入住


有没有包含软装的全包?
这个真的YOU

PINGO国际·豪郡整装一站式解决方案震撼来袭










PINGO国际·豪郡装饰打造您的生活方式》》》



国内楼盘住宅已从简单粗糙的“毛坯房”1.0时代,到无特殊审美追求的“毛坯+硬装房”2.0时代,北亚再提升到拎包入住、一步到位的“毛坯+标准精装+个性软装+其他服务”的3.0时代。
PINGO国际整装 拎包入住
一体化设计 一站式采集
让家更美好

PINGO国际·豪郡整装
一家专业从事家居装饰、写字楼、公寓、挑高空间
商业空间、别墅设计与施工的
专业化工程公司

免费验房 免费量房 免费平面设计
免费预算报价 免费接送 免费参观工地

长
按
关
注
关注PINGO国际•豪郡整装,有惊喜!
联系我们
PINGO国际•豪郡整装兰陵店:常州市天宁区兰陵北路337-1号(美林大浴场旁)
PINGO国际•豪郡整装勤业体验店:飘香路(平岗星苑)
TEL :0519-81887333 0519-89581518
48小时咨询热线:17761995555
创意美图|设计案例|装修知识|找设计师

