反支撑和转换层,有什么区别?

二者的作用都是对吊顶加固,避免吊顶内外气压不均,引起“风吹吊顶动”的现象。
风吹吊顶动
只不过转换层通常是大面积使用,反支撑是在局部使用。
转换层相比反支撑而言,安全性更好,成本也会更高。

01-1 反支撑
01-2 转换层
02-1 主龙骨拉结法
02-2 吊杆通长拉结法
02-3 倒三角法
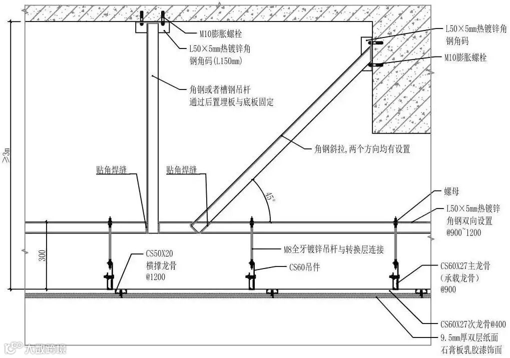
03-1 钢架转换层
03-2 吊杆+钢架转换层

聿國設計研究院反支撑和转换层,有什么区别?

二者的作用都是对吊顶加固,避免吊顶内外气压不均,引起“风吹吊顶动”的现象。
风吹吊顶动
只不过转换层通常是大面积使用,反支撑是在局部使用。
转换层相比反支撑而言,安全性更好,成本也会更高。

01-1 反支撑
01-2 转换层
02-1 主龙骨拉结法
02-2 吊杆通长拉结法
02-3 倒三角法
03-1 钢架转换层
03-2 吊杆+钢架转换层
