偏锋画廊于2009年入驻北京798艺术区,是中国最早推动抽象艺术研究与发展的重要艺术机构之一。在长足发展的十余年之后,画廊主理人决定邀请建筑营对其空间进行重新改造设计,以进一步完善使用功能,应对未来的发展需求。

798艺术区是由上个世纪50年代建成的电子工厂转变而来的当代艺术空间聚集区,该区域中标志性的混凝土拱窗结构是代表性的建筑元素之一。而偏锋画廊的原始建筑并不属于这类特色结构,是一座极为普通的工业建筑——封闭规矩、高挑空、无自然采光的砖混结构方盒子厂房。如何在满足画廊空间使用需求的基础上,塑造其独特的空间感染力与识别性,以此实现画廊品牌加成,是本次改造考虑的首要问题。



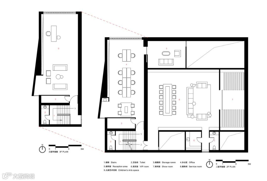
设计在既有建筑形式与结构的基础之上,以“光的漏斗”为概念意向,打开原本封闭的盒子,引入多层次的光,并重新梳理功能流线与结构材料关系,营造自然、开放、高效的艺术展览、会客和办公空间。

在临街的建筑立面上植入了两个梯形体量,成为方盒子向外翻开的窗口。一个作为入口门厅链接了建筑和园区街道,另一个梯形体量则作为飘窗为办公区带来自然光和街景。




门厅采用清水混凝土浇筑而成,半透明的U型玻璃作为立面,由其朦胧、柔和的光感营造出进入画廊的第一印象。新的加建部分外侧包裹了与旧建筑相似的红砖作为面层材料,与798工业街区景观保持和谐。



展厅空间则利用多个梯形的光筒向天空“借光”。根据旧建筑屋顶为预制混凝土板这一特征,设计对局部预制板进行拆除,增设了线型天窗。


天窗向下延伸至倾斜的墙面,形成三个大小不一的梯形光井,为其下部的展厅和会客厅带来柔和的自然采光。首层是三个彼此分离而又相互连续的展厅,设计采用密肋砼结构尽量提高室内的高度,密肋梁的截面为倒梯形,在梁之间嵌入了发光灯膜,为展厅带来柔和均质的人工光源。






前台、会客区、办公区的固定家具均采用混凝土浇筑而成,以岩板作为台面材料,家具与空间发生明确的对应关系。







