正立面
侧立面
新的建筑体是一座连续起伏的木屋,它覆盖了场地中间的旧屋,并向南北两侧延伸出生活使用空间,构成新的庭院建筑格局。木屋形式随着旧屋坡顶起伏,形成两个连续的屋脊,分别对应着下方的客厅和餐厅、厨房这一家居生活的主要公共空间。木屋的屋檐之下延伸出两块平顶房屋,补充了两间卧室、库房、卫生间等附属功能。北侧的旧屋选择暴露其屋顶结构并在室内划分出两个卧室和起居空间。木屋的介入加强了屋顶起伏的层次变化,并形成了建筑体量层面上的新旧混合关系。
空间分析
主入口
后院
庭院与室内——行为活动的混合
庭院景观图解
细节
门厅
门厅
入口庭院
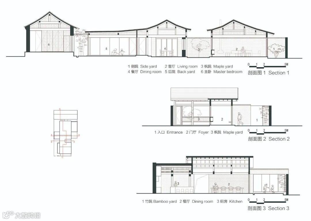
客厅与南侧院墙留出侧院,院中植树置石,天气晴好时,客厅折叠门可以完全展开,含院入室内。
客厅
客厅
客厅
客厅
向北进入旧屋,餐厅、厨房一字排开,旧木屋顶与新木构屋顶相互对照。餐厅向外与邻居家院墙形成一处竹林庭院,就餐活动可延伸到庭院中,置身于竹林中饮食品茶。通过餐厅即进入后院,此院为主要室外活动院落,通过半室外走廊过渡到庭院当中,院中植有大树。可在外廊中小憩,也可在大树下聊天。
餐厅
餐厅
厨房
厨房
继续向后进入卧室区,北房与木屋之间通过玻璃廊相连,自然区隔出一个窄院。三个卧室均可直接面向室外景观,满足采光通风需求,同时视线避免干扰。不同庭院的设置,让室内各个角落都焕发着自然的生机。
茶室
餐厅
前院
结构与材料——新与旧的混合
传统抬梁结构与新抬梁结构
主卧
主卧
次卧
门窗采用固定中空玻璃与竹钢板材可开启扇结合。实体开启扇可以满足通风需求,而固定玻璃窗保持取景的完整性。室内固定家具也全部由竹钢板材定制而成。胶合木、竹钢和旧的木梁形成了木料间的新旧混合关系。
走廊
后院
新建围护墙体全部采用当地回收的旧红砖和青砖砌筑而成,也实现了废旧材料的循环再利用。旧房修缮的环节中,保留下来的北房外墙为白色瓷砖,现场决定剔除打磨,露出原来基层的红砖墙面。南屋局部屋顶在拆除过程中发现原有结构破损严重,墙体也有倒塌的风险,因此落架重修,替换部分木构件,墙体用旧青砖按原建筑形式重新砌筑。
后院
后院
后院
地面铺装则采用购置的新的红砖铺就,具有更好的防水防尘的效果。屋面采用金属蛭石瓦,取其荷载轻、寿命长、造价低。金属瓦的红色表面与村庄内常见的红色板瓦相互混合。
后院
后院
院落的营造、结构的更新、材料的再利用,设计试图创造一种新旧迭代演进的可持续设计策略,在个性特征、风貌协调、造价控制之间建立平衡,为乡村建筑更新提供新的可能性。

项目图纸
总平面图
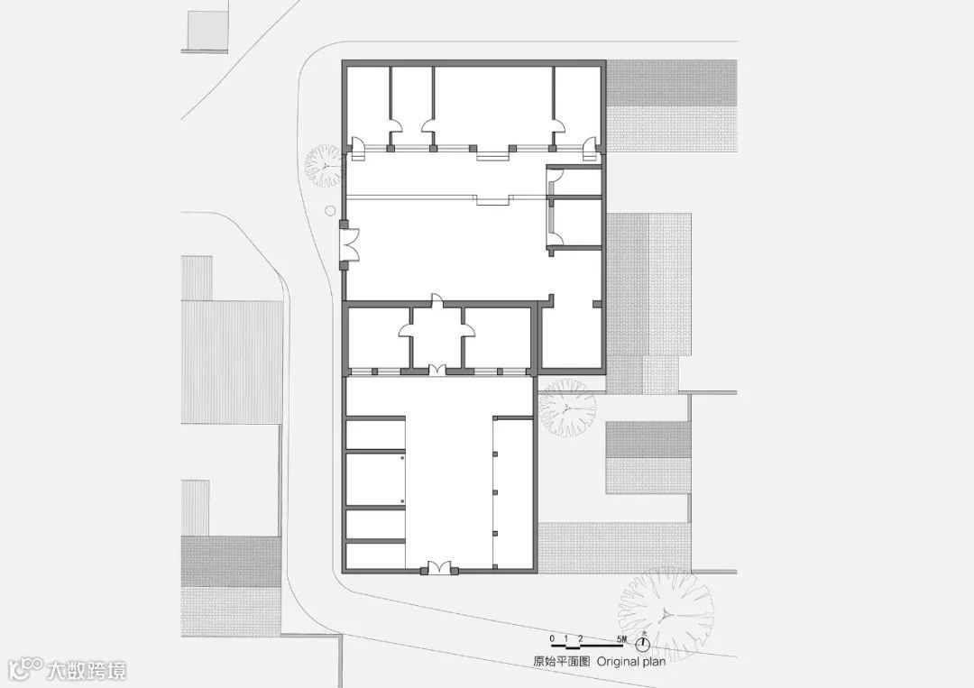
原始平面图
屋顶平面图
立面图
剖面图
平面图
侧院节点详图
竹院节点详图


