
地面篇
篮球专用运动地板

篮球专用运动地板安装三维示意图△
设计时应考虑地板下通风,并在施工图中绘出地板通风箅子和龙骨骨通风阵位置及大样;
粘结用胶需选用运动用木地板专用胶粘剂。

篮球专用运动地板安装节点图△
网络地板安装

静电地板安装三维示意图△
1:3水泥砂浆抹面压实赶光,干后卧铜条分格(铜条打眼穿22号镀锌低碳钢丝卧牢,每米4眼);
可调节支架系统。

静电地板安装节点图△
自流平做法

自流平做法三维示意图△

自流平做法节点图△
地沟做法

地沟做法三维示意图△
最低处增加暗藏地漏且有暗沟防止第二层防水渗满;
地砖(8~12厚,干水泥擦缝)(找坡)。

地沟做法节点图△
铝型材轨道门槛制作

铝型材轨道门槛制作三维示意图△

铝型材轨道门槛制作节点图△
吊顶
风口与金属板相接


风口与金属板相接三维图示意图△
根据图纸确认风口的大小和位置;
根据开好的风口与吊顶的高度确认大小长短;
安装空调系统风管;
龙骨的安装;
风口的安装。

风口与金属板相接做法节点图△
玻璃隔断与铝板相接


玻璃隔断与铝板相接三维图示意图△
在顶棚和地面弹出玻璃隔断的位置线;
安装固定下部的锚固件;
再完成隔断上部的安装;
中间填满橡皮垫或填充剂;
最后用密封胶密封。

玻璃隔断与铝板相接节点图△
窗帘盒与玻璃幕墙相接


窗帘盒与玻璃幕墙收口节点三维示意图△
龙骨吊件与钢架转换层焊接固定,连接处满焊,刷防锈漆三遍;
50主龙间距900mm,50副龙间距300mm,副龙横称间距600mm;
18mm细木工板刷防火涂料三度,与吸顶吊件采用35mm自攻螺丝固定;
9.5mm厚纸面石膏板用自攻螺丝与龙骨固定;
满批耐水腻子三度;
乳胶漆涂料饰面。

窗帘盒与玻璃幕墙收口节点图△
暗藏灯带窗帘盒


暗藏灯带窗帘盒安装三维示意图△
龙骨吊件与钢架转换层焊接固定,连接处满焊,刷防锈漆三遍;
50主龙间距900mm,50副龙间距300mm,副龙横称间距600mm;
18mm细木工板刷防火涂料三度,与吸顶吊件采用35mm自攻螺丝固定;
9.5mm厚纸面石膏板用自攻螺丝与龙骨固定;
满批耐水腻子三度;
乳胶漆涂料饰面。

暗藏灯带窗帘盒安装节点图△
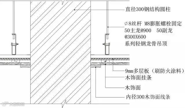
木饰面与钢结构圆柱相接

木饰面与钢结构圆柱相接三维示意图△
龙骨吸顶吊件用膨胀螺栓与钢筋混凝土板固定;
50主龙间距900mm,50副龙间距300mm,副龙横称间距600mm;
9mm厚多层板刷防火涂料三度,用自攻螺丝与龙骨固定;
木饰面采用挂条固定;
加工定制内径300mm,外径350mm成品木饰面线条,与木饰面固定。

木饰面与钢结构圆柱相接节点图△
纸面石膏板与钢结构圆柱相接

纸面石膏板与钢结构圆柱相接三维示意图△
龙骨吸顶吊件用膨胀螺栓与钢筋混凝土板固定;
50主龙间距900mm,50副龙间距300mm,副龙横称间距600mm;
加工定制成品石膏线条,内径300mm,外径450mm,预留20*10的凹槽;
9.5mm厚纸面石膏板与成品石膏线条用自攻螺丝与龙骨固定;
满批耐水腻子三度;
乳胶漆涂料饰面。
注意:留20*10的凹槽!

纸面石膏板与钢结构圆柱相接节点图△
墙面
石材与混凝土墙相接


石材与混凝土墙相接三维示意图△
墙面做JS防水层;
选用石材18mm,均经过六面防护、晶面处理;
塑造石材造型,上下口做3mm倒角;
石材安装前进行打眼,方便铜丝固定(上下共4个眼);
钢筋与石材固定;
土建墙体固定膨胀螺栓;
钢筋用螺栓固定,钢筋成网状;
铜丝栓绑于钢筋网;
石材与墙体之间填充水泥砂浆,即灌浆。

石材与混凝土墙相接节点图△
陶瓷马赛克隔墙工艺做法


陶瓷马赛克隔墙工艺做法三维示意图△
选用马赛克,表面平整、尺寸正确、边棱整齐;
上下固定75天地龙骨,上38穿心龙骨完成基层施工;
固定水泥板,上双层钢丝网;
水泥砂浆抹灰找平处理,一定保证平整度;
刮毛处理,保证粘结层的附着力;
铺贴马赛克,完成施工;
揭纸、调缝、擦缝。

陶瓷马赛克隔墙工艺做法节点图△
玻璃窗户与墙面相接


玻璃窗户与墙面相接三维示意图△
玻璃物料选样,无划痕,无损伤;
钢架基层预埋;
U型槽的焊接安装;
弹性胶垫填充;
安装玻璃,透明胶条填充;
收口处3mm打胶处理;
清理,保护。
加气块墙石材干挂


加气块墙石材干挂三维示意图△
选用石材18mm,均经过六面防护、晶面处理;
塑造石材造型,上下口做3mm倒角;
加气块墙体固定镀锌钢板,一般用8#穿墙螺栓固定;
在干挂件无法满足造型的需求下,采用满焊5#角钢转接件,以调整完成面与墙体的间距;
满焊8#镀锌槽钢竖向龙骨;
满焊5#镀锌角钢横向龙骨;
固定不锈钢干挂件;
固定不锈钢干挂件,AB胶固定石材,完成安装。

加气块墙石材干挂节点图△
艺术玻璃与墙面相接做法


艺术玻璃与墙面相接做法三维示意图△
玻璃物料选样,无划痕,无损伤;
钢架基层预埋;
钢架基层焊接;
使用结构胶安装艺术玻璃;
安装完成,清理,保护。

艺术玻璃与墙面相接做法节点图△
木龙骨干挂木饰面墙面做法


木龙骨干挂木饰面墙面做法三维示意图△
30*40mm木龙骨中距300mm,刷防火涂料三度,用钢钉与木桢固定,木桢固定在混凝土墙体内;
12mm厚多层板基层找平处理,用钢钉与木龙骨固定,刷防火涂料三度;
木挂条中距300mm,用枪钉与多层板固定,木挂条背面刷胶,且刷防火涂料三度;
木挂条背面刷胶与木饰面用枪钉固定;
木饰面卡件安装,木饰面平整度调整。

混凝土隔墙乳胶漆类做法


混凝土隔墙乳胶漆类做法三维示意图△
混凝土隔墙表面清除干净,墙面滚涂界面剂一遍,素水泥浆一道内掺水重3%~5%的108胶;
10厚1:0.3:3水泥石灰膏砂浆打底扫毛;
6厚1:0.3:2.5水泥石灰膏砂浆找平层;
满刮三遍腻子(内掺水重3%~5%的108胶);
封闭底涂料一道,待干燥后找平、修补、打磨;
第三遍涂料滚刷要均匀,滚涂要循序渐进,最好采用喷涂。

混凝土隔墙乳胶漆类做法三维示意图△


