搜索
首页
大数快讯
大数活动
服务超市
文章专题
出海平台
流量密码
出海蓝图
产业赛道
物流仓储
跨境支付
选品策略
实操手册
报告
跨企查
百科
导航
知识体系
工具箱
更多
找货源
跨境招聘
DeepSeek
首页
>
自然科学博物馆
>
自然科学博物馆
聿國設計研究院
2023-02-16
2
科学,被视为人类智慧的结晶,隐于学术界与高等教育中心。科学博物馆,则串联起大众与科学,传播追求发展与创新的科学精神。远离中国东部的密集人口,西藏代表着美丽却神秘的自然神话。地理限制了西藏本土科学知识的传播。西藏自然博物馆的建立则起到纪念本地智慧和知识的作用。
至今,西藏纯粹的区域文化不曾受外部社会影响。从布达拉宫到大昭寺,西藏知名建筑皆沿其传统历史建筑语言而建造。将此传统美学转换为了博物馆的立面设计。从曼荼罗和吉祥结中提取几何纹案,将二者结合在一起覆盖于建筑表面。当阳光射进博物馆大厅,观者还能观察到此图案投影在建筑的内部结构。曼荼罗代表着宇宙中心,吉祥结则代表了民间和平。
不满足于简单的几何设计,还借助了建筑形体的象征意义。鸟瞰图上看,博物馆的洁白形体像一条哈达一样几次翻折。哈达所代表的西藏人民的热情和礼节被运用到设计理念中,邀请人们去了解藏域文化。
▲总图
考虑到西藏的自然生态,将可持续发展理念应用到了建筑的工程和结构中。建筑的能源使用上,利用了西藏高原的地热和太阳能资源。计算建筑内的阳光照射量,控制理想的室内
温度
,减少能源使用。在结构方面,进行了超高难度的弹塑性研究,实现了钢结构混凝土混合结构体系。
博物馆设计尤其能够体现建筑中的艺术之美。在设计西藏自然科学博物馆中,
运用的现代建筑哲思是对其前瞻科学追求的宣言。同时,其对于西藏传统美学的追求也在表皮设计细节中体现。
设计改造、工程挑战与本土适应中,建筑的抽象和革新思想得以体现。
项目图纸
▲场地平面图
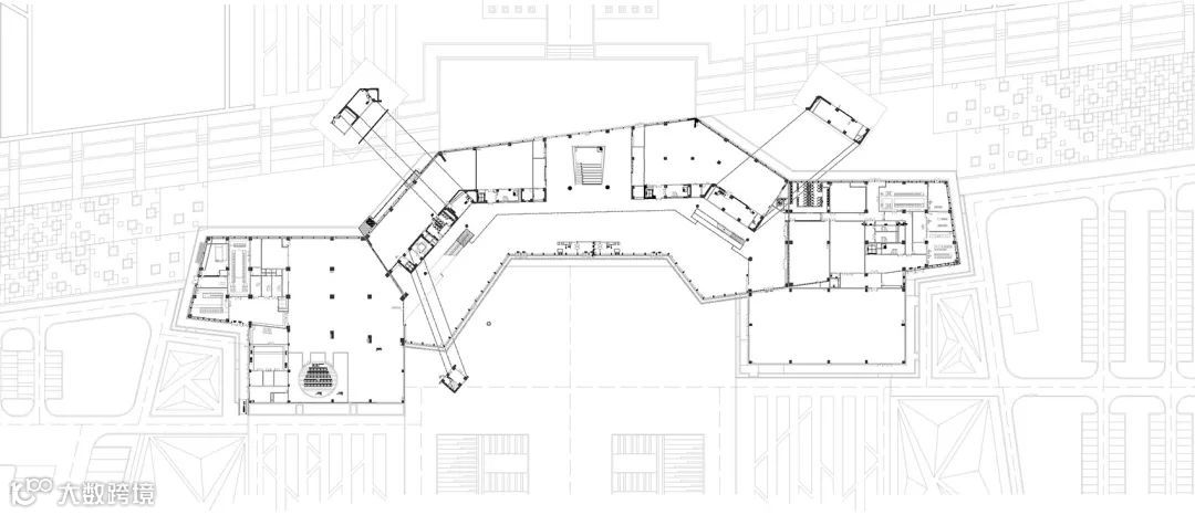
▲平面图
▲立面图
▲剖面图 1
▲剖面图 2
【声明】内容源于网络
0
0
聿國設計研究院
公司以环境艺术、规划设计为引领,以建筑装饰、展览展陈、项目管理、双碳新能源、城市更新、美丽乡村建设、智能建造、新型建筑工业化等板块为支撑,打造全国一流的全过程咨询设计研究院。
内容
0
粉丝
0
关注
在线咨询
聿國設計研究院
公司以环境艺术、规划设计为引领,以建筑装饰、展览展陈、项目管理、双碳新能源、城市更新、美丽乡村建设、智能建造、新型建筑工业化等板块为支撑,打造全国一流的全过程咨询设计研究院。
总阅读
0
粉丝
0
内容
0