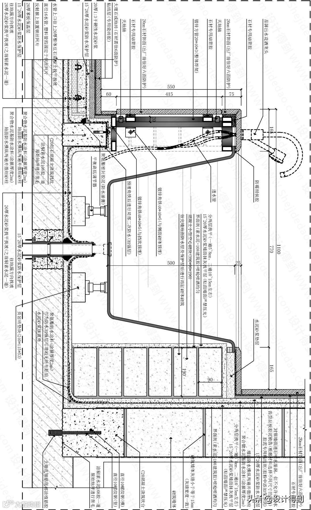
一、室内浴缸标准节点

由图纸引发的设计思考

二、沐浴间隔墙标准横剖节点

由节点图引发的设计思考

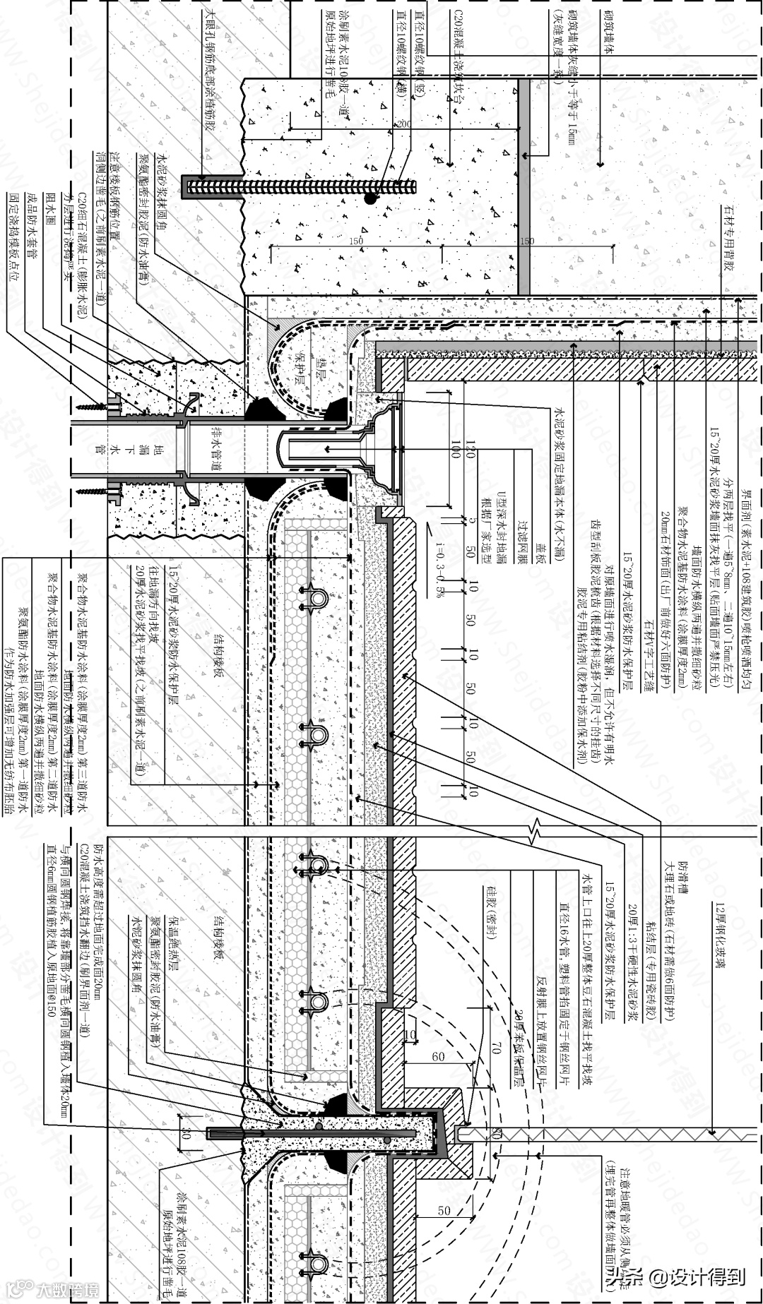
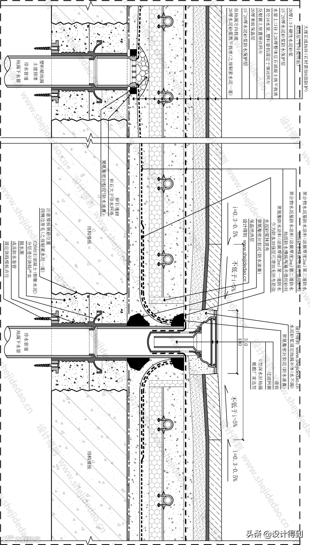
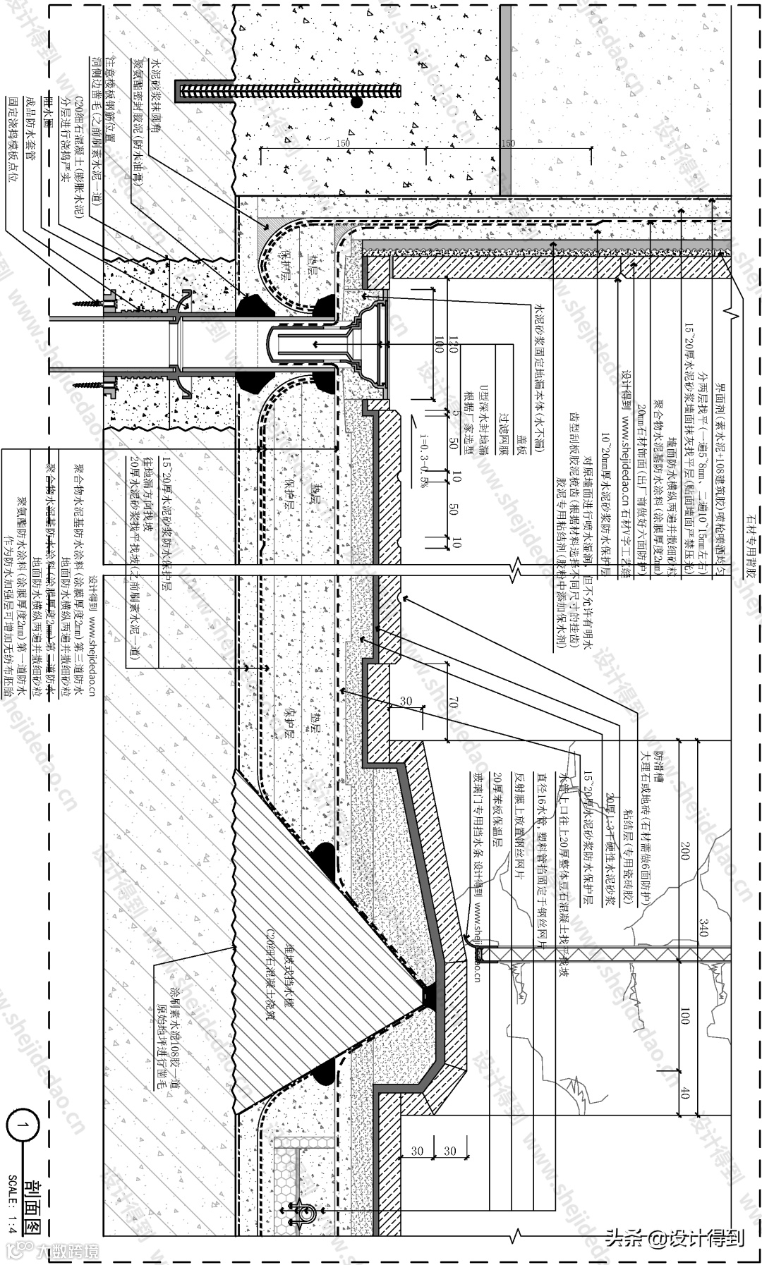
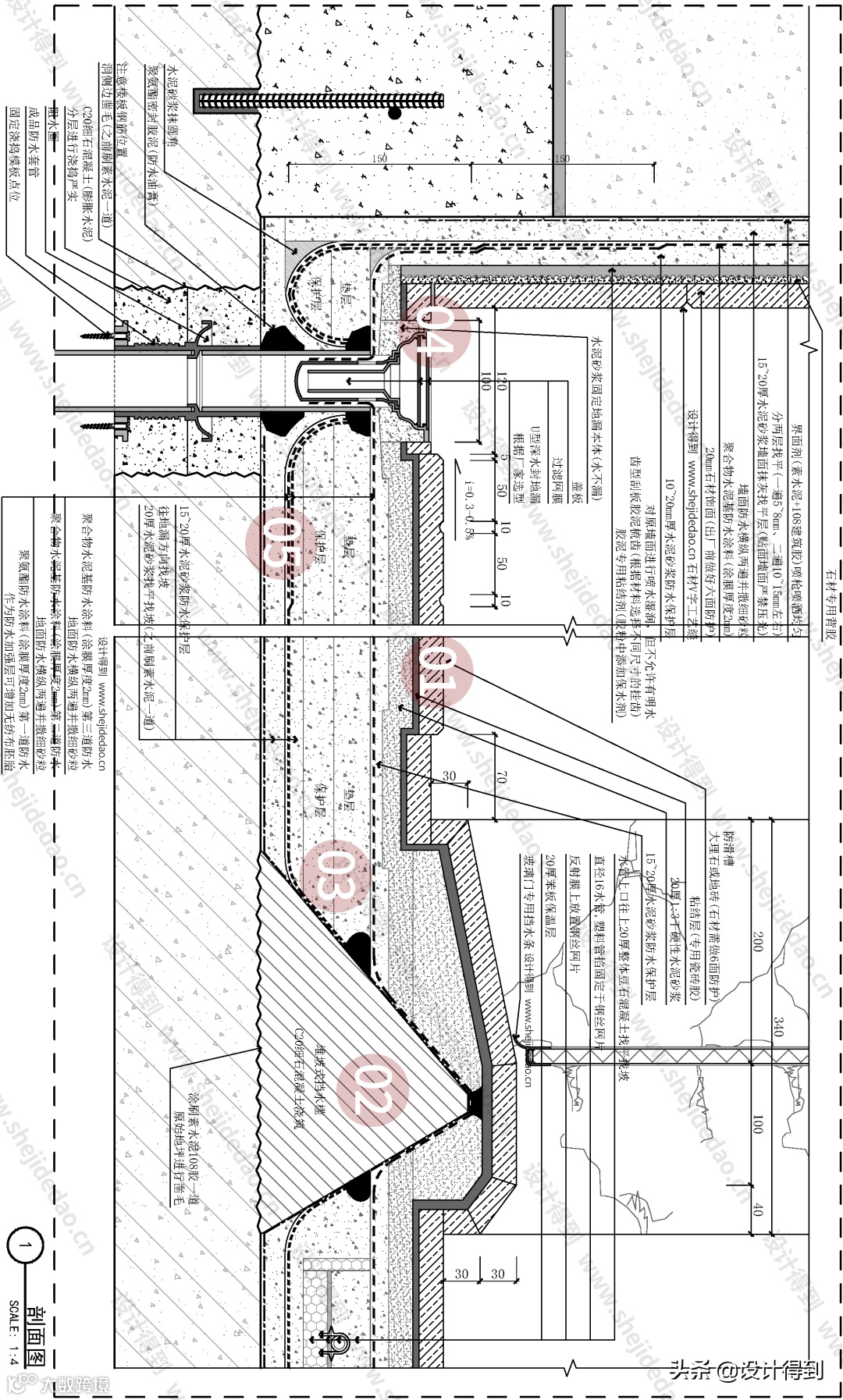
三、卫生间地漏标准节点

由节点图引发的设计思考

四、地暖与隔墙收口标准节点

由节点图引发的设计思考

五、玻化砖钢架墙标准节点

由节点图引发的设计思考

六、沐浴间地暖标准节点

由节点图引发的设计思考

七、石材墙面绑扎加固标准节点

由节点图引发的设计思考

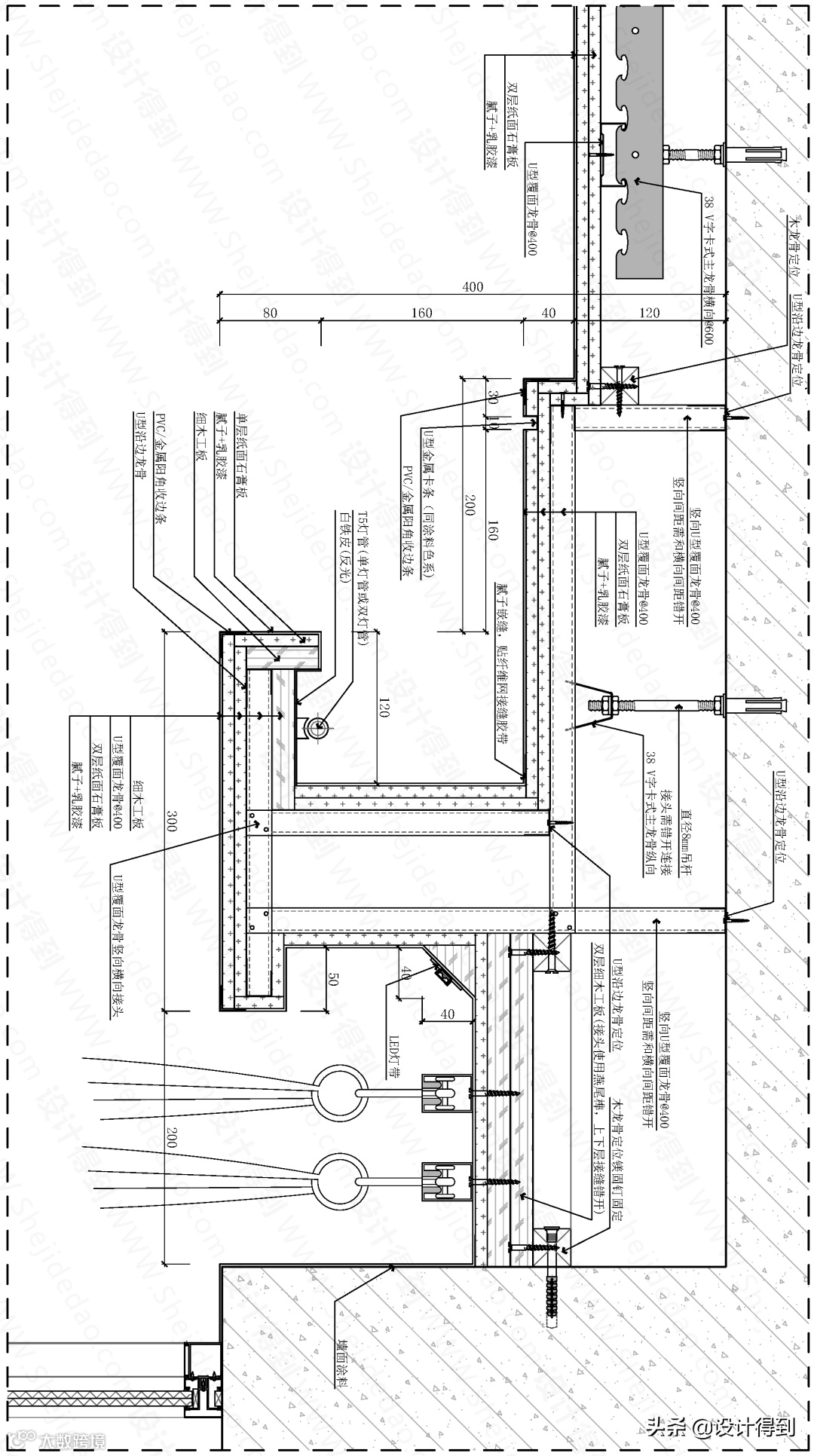
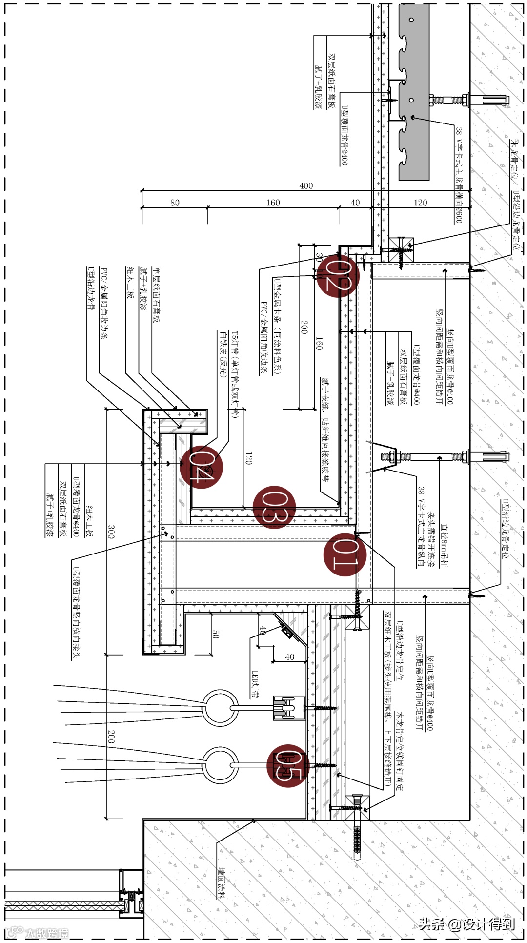
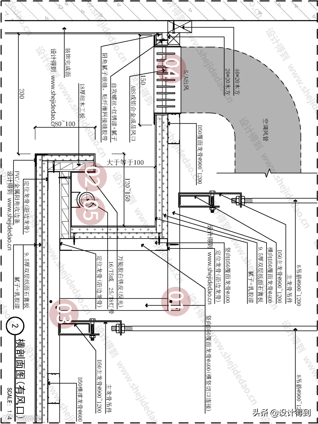
八、全轻钢龙骨吊顶标准节点

由节点图引发的设计思考

九、石材吊顶标准节点

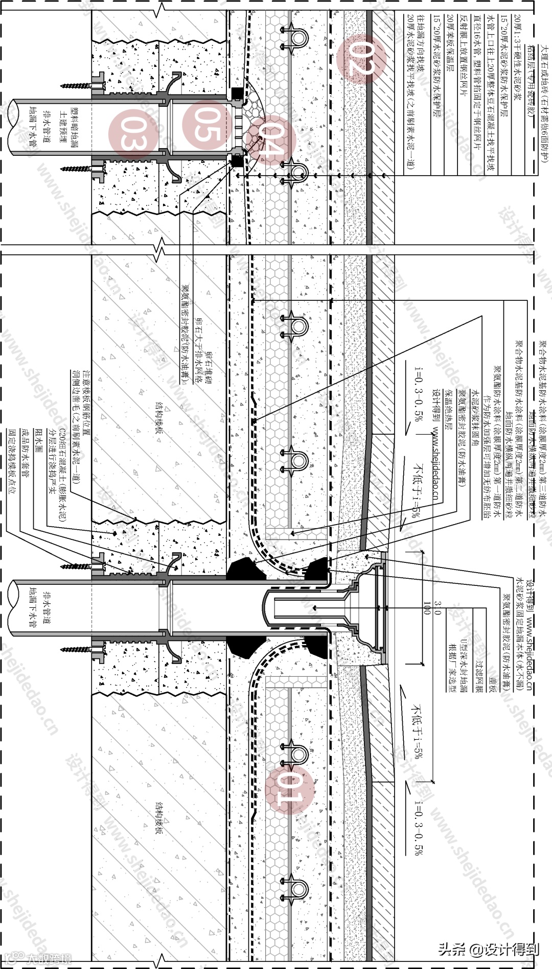
十、二次地漏标准节点

由节点图引发的设计思考

十一、马赛克标准节点

由节点图引发的设计思考

十二、地暖侧翻标准节点

由节点图引发的设计思考

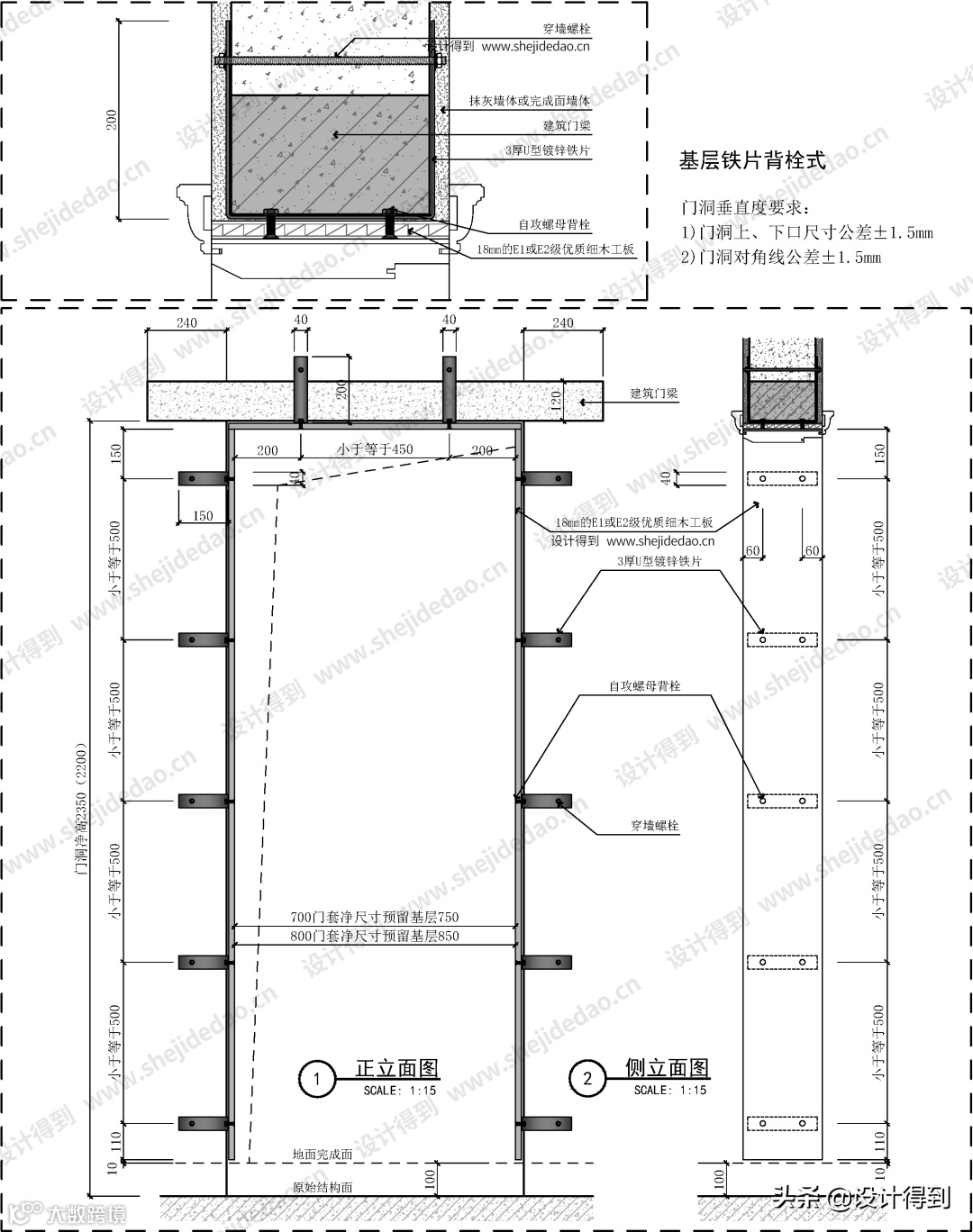
十三、门套标准节点

由节点图引发的设计思考

十四、石材湿挂标准节点

由节点图引发的设计思考

十五、卫生间门槛标准节点

由节点图引发的设计思考

十六、全龙骨吊顶标准节点

由节点图引发的设计思考



