李 桦
因缘际会的“必然”趋势
现任教于北京工业大学艺术设计学院工业设计系的李桦老师,在业内有着多重专家身份:北京市住房保障专家委员会技术专家、北京市老城保护房屋修建专家委员会专家、建筑学会建筑工业化发展委员会理事、中国建筑装饰协会住宅部品产业化分会专家、北京市建筑装饰协会住宅装饰装配委员会专家、宜居中国装配式建筑和绿色发展分会首席专家等,他近40年的研究和实践经历也难以复制。
图1—3.设计案例1:玉树灾后重建新寨村
2011年,北京对口支援玉树灾后重建,李桦团队参与了三个项目,其中,新寨村由于地处玉树玛尼石经城,文化保护尤为重要,团队采用模块化的设计方法,实现在改造的同时,保护原村落形态,延续文化肌理,这些做法对今天北京老城区改造依然有延续性

图1.玉树民宅装饰构件的符号化、模块化与村落风貌

图2.玉树民宅房屋布局和样式类型的模块化、组合应用和村落风貌

图3.按原村落肌理的民宅院落组合(一个小组团)
2012年初,北京市保障性住房立项研究公租房标准化设计课题,课题包括两部分,李桦负责室内部分,清华建筑系的老师负责建筑部分。当时,国家推动住宅建筑产业化,到了4月份,北京市明确要求公租房建设率先实施,以此,原本标准化的课题,加入了产业化的内容,后来又提出住宅工业化的概念。对于建筑行业而言,结构专业的工业化人才比较多,而内装这个板块的研究很少。李桦有工业设计学科的基本知识,在产业化、工业化方面又有认识和方法层面的基础,就开始了内装工业化领域的研究。




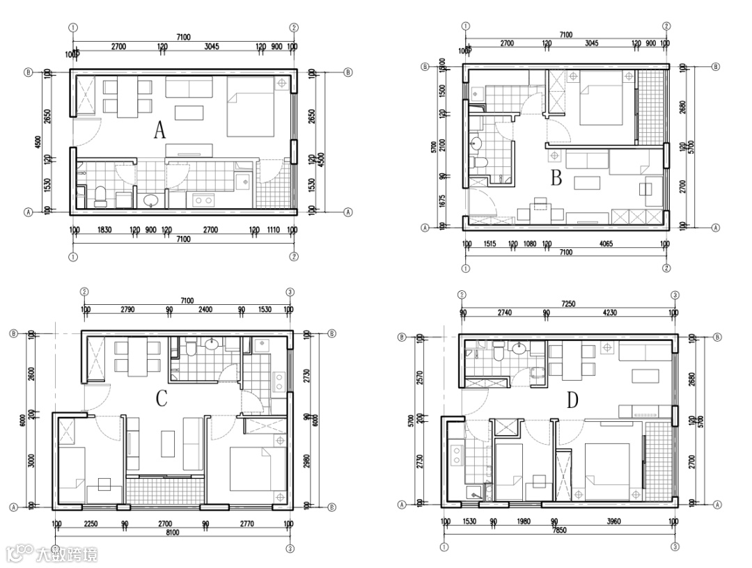
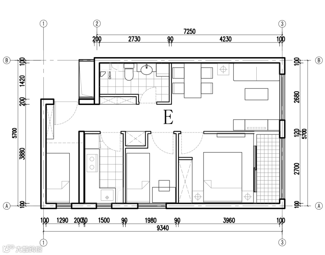
图4—5.设计案例2:北京公租房设计标准化——标准户型和体验馆设计
工业设计与建筑工业的结合
2016年,国家又进一步提出大力发展装配式建筑,将原来所提的建筑工业化内装落脚到“装配式”这种更为具体的技术方式上,市场也把内装工业化改称为“装配式内装”。对这个叫法李桦持保留意见,“装配式是一种技术手段,工业化才是目的,所以我认为还是内装工业化更贴切,目的是促进技术的现代化,但一下变成‘装配’,就把技术局限了”。
建筑内装产业,虽然是全产业链大系统的部分,但在解决问题层面,内装与建筑面对的具体问题还是有差异的。李桦觉得整个建筑行业对这方面的认识还不够,“其实内装工业化的必要性更大,因为一个建筑建成后可能使用上百年,但装修可能10年就会调整一次,它的更替更频繁,管理也相对分散,所以技术道路的选择应该考虑到这种不同。”李桦的想法也源自他工业设计专业的背景,他认为,工业设计的理念和方法相比传统建筑装饰行业的技术逻辑更具现代性。工业设计最早是从建筑领域分离出来的,二战之后,工业设计成为一个独立学科,并在设计理念、方法和技术运用上都得到迅速的发展。李桦认为,后来建筑的一些设计理念和技术,是受到工业设计的反哺的。
模块化、装配技术与产业生态
“模块化是一种标准化形式,也是基于标准化的一种设计方法,李春田先生在他主编的《标准化概论》中,把简化、统一化、通用化、系列化、组合化和模块化列为标准的六个基本内容和形式,从标准化自身发展来看,模块化是最先进的标准化形式。”[1]模块化设计原理是应对复杂问题时一种有效的方法,包括了分解和集合两个过程。居室空间可以分解为不同的功能区域,每个区域视为相对独立的功能模块,将这些功能模块按某种意图进行组合,就可以产生不同样式的空间组合模型。



图6—7.设计案例3:北京温泉C03公租房建设项目
2013年,也是首个标准化课题成果落地的应用,设计将建筑单体、套型和内装各层级模块组合运用,实现各单元标准化程度最高、构件种类最少、建设速度最快,同时,项目还实践了管线分离、集成装配等新技术
由于生产方式的改变带来了产业结构的变化,影响着产业生态。部品化集成模式提出设计标准化的要求,工厂化生产促进内装部品制造业的发展,现场组装的安装模式催生出掌握标准化流程的产业工人。总之,基于新技术条件,从设计、制造、安装到后期的维护服务,整个产业链都会随之发生结构性改变。部品化的过程是围绕着居住类产品开发、创新和迭代升级的过程,集成技术对墙、地、顶、家居产品、日用品、家用设备等一系列内装部品在产品规格、接口条件的通用性方面提出新的要求。所以,标准化的现代化是发展内装工业化技术的前提条件。
建筑空间与内装部品尺寸是嵌套的关系,一是涉及尺寸的分解和叠加;二是尺寸参数的系列化,这个参数数列既要符合建筑模数的逻辑又要适用于分散化生产的部品制造业,解决这个问题比较难。目前,我国部品规格主要是通用性差、互换性差的问题,李桦参与了13.5课题,主要负责内装部品尺寸的研究,导出了一套内装部品的优选尺寸参数,也写进了行业标准。[2]李桦形象地形容建立尺寸协调规则的目标“就像乐高玩具,从形态上,它通过接口的通用化和模块的尺寸规则,释放出多样化的结果,小孩愿意拿它插个车也行,或者是拿它做一个大公园也行,所以标准化和多样化并不矛盾,相反,好的标准化形式是促进多样化呈现的必要条件,模块化的先进性正是体现在这个方面。
保障房、旧城更新与柔性变化
“其实我特别感谢保障房建设,它给了我进入这个领域的机会,而我也在标准化方面为保障房建设做了一些工作。就技术而言,我在技术发展方向上,是主张积极推动内装工业化的,但就具体项目应用层面是比较保守的。所以,在我设计的保障房项目中,大部分不完全符合装配式内装原则,对于条件成熟的项目会采用可靠的集成技术。”李桦所做的研究源起于保障房,从关注具体项目设计,到整个理论框架的梳理,从标准化设计研究,到工业化内装技术,涉及不同维度和层面的工作。
图8—13.设计案例4:北京老城区改造更新及保护——雨儿胡同6号院
2018年,南锣鼓巷雨儿胡同的老城改造中,探讨旧城改造的室内功能提升,内装标准化和工业化建造方法在城市更新项目中的运用,以及原住民、新生活方式与传统居住形态、产品化方式解决室内功能提升等相关课题


图8—9.院落现状、问题与改造目标

图10.餐厨一体化产品

图11.模块组织与室内布局

图12.极小化整体卫生间产品设计图

图13.改造后实景图片
图14—22.设计案例5:北京老城区改造及更新保护——蒲州巷15、12号院2020年,白塔寺片区蒲州巷15、12号院改造,项目特点是原住民迁出后,由开发企业收购出租,是个典型的保租房项目,项目在新市民生活
方式与传统居住形态的关系、旧有住房改造的产品和技术开发、集成装配技术应用等方面做了进一步的尝试,积累了在项目实施过程中,提高工效、节能环保和选择性配置等方法上的经验

图14.蒲州巷15号院


图15—16.建筑要素的模块化集成


图17.厨房、卫浴和夹层的产品组合

图18.改造设计图纸及实景

图19.整体卫浴产品设计

图20.蒲州巷15号院外立面实景图


图21—22.蒲州巷15号院室内实景图
模块化、多样性与选择权
所谓模块也是一个大系统的单元,这些单元虽然结构上相互独立,但是共同发挥作用,因此,系统作为一个整体,必须提供一个架构,从而既保证结构的独立性,又保证功能的一体化。[3]其基本特征包括:
1.模块:是组成系统的相对独立的部分;
2.独立性:模块应独立于系统,独立于其他模块,可独立运行、可独立演变;
3.架构:自上而下的组织系统和通用规则,具有明确的边界和接口条件;
4.一体化:系统通过规则保证模块与系统的关系;
5.分解和组合:模块是系统分解的结果,组合是模块集成形成新系统的过程;
6.层级:系统可以分级,建立多层级的模块、子模块、子子模块等;
7.隐性信息:是模块内在的技术原理、逻辑等无需开放的信息;
8.显性信息:是指与产品功能、形状、规格和接口等必须开放的信息;
9.互换性:各独立模块是可替代、可互换的;
10.产品簇群:同类型的产品模块,可呈现出簇群形态;
11.分散化技术演进:模块的独立性,使各个模块具有了分散化技术演进的条件;
12.选择权:模块的可互换性,使系统获得了选择权,系统通过选择权推动了产品和技术的创新和发展,实现了系统的迭代,也可以根据用户意图,选择不同功能或性能的产品,集成出不同的系统,呈现出多样化的输出结果。
李桦认为其中最重要的是选择权,选择权也是模块化系统的目的,通过选择适用的模块,实现系统的迭代升级。模块的可互换性是获得选择权的前提,模块的相对系统独立是互换的条件,系统规则是模块与系统一体化工作的保证。
李桦谈到,他在一段时间上“形态课”时,“浅显地”关注了分形观念,觉得“自相似性层级结构”的现象和规律很有意思,后来,在研究模块化时,对模块化原理和方法在结构和形态的理解上有所启发:模数是个数列,做设计时,需要将数字转换为几何形态——模数化网格。在结构相似的情况下,通过网格的密度确定尺寸层级,解决不同层级的形态尺度和整体形态的关系,网格密度决定了所处理形态的尺度层级。比如,用特定密度的方格坐标定位建筑位置和形状、提高一个层级的密度定位套型位置和形状、增加密度确定产品设计的尺度、解决各层级尺寸的嵌套结构和形态关系等。层级系统,对于设计时建立不同层级之间结构、形态和尺度关系有帮助,越往下,信息越密集,颗粒度越细,越具体。比如从城市到住区、单体、套型、卫生间、马桶,甚至冲水按钮,这样细分下去。那么规划、建筑、产品等不同维度的设计师和工程师在一个层级系统中相对独立的工作,李桦认为这有点像“分形几何”的概念,结构的自相似性。
图23—30.设计案例6:清华旭辉CSC一号实验宅
2016年,清华CSC一号实验宅-旭辉LOFT产品研究,实践运用工业设计的手法进行住宅内装设计和建造,对空间效能的集约化,内装部品的模块化、通用化、系列化,建筑空间与内装部品的模数协调方法,以及管线集中、管线分离、集成装配等住宅设计方法与新技术的运用做了系统化的项目实践

图23.功能模块的选择性互换:收纳、厨房、起居



图24—26.室内实景图

图27.卫生间实景图


图28.收纳系统:物品分类、收纳需求、选择性配置


图29.橱柜功能设计:操作、收纳


图30.设计延展:厨房家电再设计
正如李桦所言,今天的建筑内装行业是受到工业设计专业的反哺,但其工业化水平依然有待提高。李桦期待更多的同行者一起探索,将这种持续的反哺形成新的建筑组织方式。“建筑有它的特点,承载着城市形象,承载着一种公共的对环境、城市、区域等很多共性的东西,建筑文化属性的延续性也很重要。相对来说,内装更像衣服,个人的东西比较多,它的丰富性包括可自由的选择。”
结语
李桦认为目前装配式技术依然存在一些问题,定义上比较局限,也存在技术单一化、适用性差、体验感不好、可靠性不够、缺少必要的实验和检测、盲目应用、把技术发展的目标变成了技术门槛等问题。“不过从去年开始,主管部门和行业已经开始认识到这些问题,正在调整,也立项了针对性课题,产品和技术研发也在推进。”内装工业化的发展应该关注于应用技术的可靠性和多样化,产品和技术研发也应考虑设计对应用场景的要求,李桦团队目前正在补充开发一些新产品和新技术,他的工作室也有很多对应性的产品和技术研发及优化。他希望模块化建筑内装真正回到工业化的板块里,在行业中他也不断在呼吁:不能抛弃传统技术中好的方面,一概都变成装配式,而应该提升其工业化水平,把好的技术沉淀下来。当然,旧有装修工程的管理组织模式和水平也要做现代化、工业化的提升,新技术的不断开发与传统技术的迭代齐头并进。同时,细分适用场景和技术应用条件,通过市场的选择,让一个行业技术有多方向的发展。


