
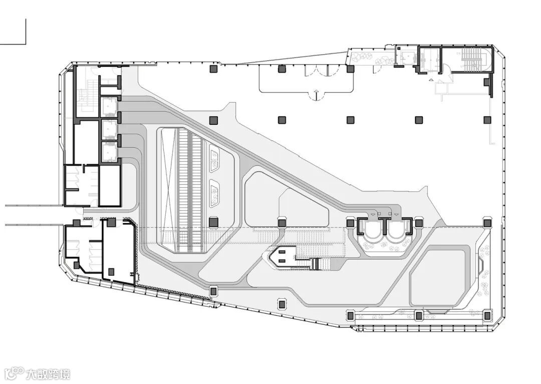
总部位于阿姆斯特丹的UNStudio使用清晰的几何线条和金属表面全新的大楼 —— 一座充满未来感的办公建筑。新大楼从2017年开始直到2021年在韩国首尔建成,建筑面积共为18801平方米 。


这座新总部大楼的设计灵感,取自YG娱乐的业务和整个音乐产业,该大楼设有办公空间、会议室和录音室。这些空间经过战略性组织,充分利用了地理位置,为员工提供了最令人振奋和鼓舞人心的工作环境。













聿國設計研究院
总部位于阿姆斯特丹的UNStudio使用清晰的几何线条和金属表面全新的大楼 —— 一座充满未来感的办公建筑。新大楼从2017年开始直到2021年在韩国首尔建成,建筑面积共为18801平方米 。


这座新总部大楼的设计灵感,取自YG娱乐的业务和整个音乐产业,该大楼设有办公空间、会议室和录音室。这些空间经过战略性组织,充分利用了地理位置,为员工提供了最令人振奋和鼓舞人心的工作环境。












