
义乌壹号院延续TOP级产品在交通、商圈、教育与景观的“稀缺性”,择址义乌城市有机更新的主力场,义乌商贸之源红楼宾馆原址之上,具备城市能量崛起的历史独特性。项目总建筑面积约11.9万㎡,由12栋高层住宅与商业街区组成。
△ 区位图


#01
形象能级:商贸冲力
如何形象化?
——划过天际的,银色鸥翼
设计以义商图腾“羽毛”为源,联动顶级超跑的经典形象,定义“银色鸥翼”的立面语言。一体化的立面圆角折板和顶部飘板,流线边缘精致雕刻,呈现力与美的结合,以修长挺拔的建筑形态落成“划过天际的银色鸥翼”。
#02
价值能级:底商价值
如何最大化?
——炙手可热的,主题商业街区
设计对底商裙房进行功能分析和拆解。首先,将地块沿街铺面充分用足。其次,细分商铺价值,并构建价值层级:西、北侧支路因毗邻住宅社区与教育院校,人群流量与可达性强,商业价值优于公共绿化隔离带与主干道一侧,因此,沿工人北路和工人西路的底层商业做到二层。
△ 商铺生成过程
整体商铺类型多样,双层商铺设计有单层铺与一拖二的组合,小拖大的设计提升整体商业价值。单层铺和一拖二通过不同的立面手法组合形成丰富的沿街立面形象。

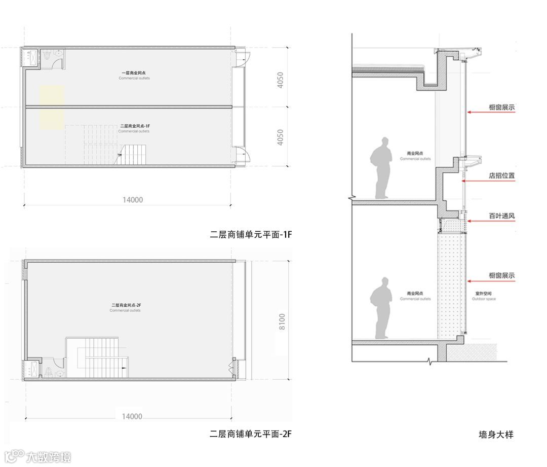
单层商铺采用4050mm面宽模数,开间进深比控制在1:2.7左右,既保证了合理的商铺开间进深比,同时和地下停车较为经济的8100mm的模数契合。

△ 单层商铺平面及墙身大样
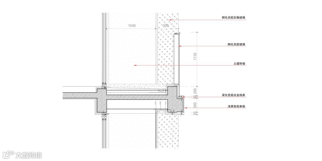
△ 二层商铺平面及墙身大样
#03
社区能级:生活本源,如何回归?
——立体营建的,归心社区
归心,是融创独有的高端生活价值体系。人们期待的归心社区,不仅提供高品质的住宅及配套,更将通过构建可持续的社区生态,营造“有家、有生活、有知己”的美好生活。

△ 首层平面
当人们穿过商业街,步入酒店式大堂,以度假的心情经过室外泳池,归家后换上套装走进归心空间“足迹SPACE”,周末来临时,与家人在“书享ZONE”阅读,line+期待以空间的营建与美好生活方式交手的“归心社区”。
#04
构造能级:轻盈灵动,如何实现?
——公建品质的,现代型材构造


而在阳台节点构造上,阳台外墙柱内凸以优化结构截面,结合室内窗帘盒的设置,保证阳台的连续性。增设门套,避免阳台涂料面的阳角转角。对阳台挑梁高度进行控制,保证阳台吊顶完成面和阳台门框等高。
#05
为未来潜力,不止于
物理空间
“银色鸥翼”将义乌城市变革和发展冲力形象化;底商面积的最大化挖掘与价值层级的细化梳理,实现优质社区底商向炙手可热的主题商业街区的转化;以立体营建的归心社区承载高端生活价值体系,实现对生活本源的回归;以公建品质的现代型材构造把控立面细节,落成轻盈灵动的形态意象。


