
第一位荣获普利兹克奖(The Pritzker Architecture Prize)的中国建筑师王澍曾说过“如果我们失落了真实的历史,就不会有真正的未来”。
在旧改这一城市发展课题中,历史与未来是不可割离的。
过去“大拆大改”的野蛮改造方式已经不合时宜,“城市更新”应运而生。
在“城市更新”的推动下,一座座被闲置的老旧厂房得到改造,以不同的业态功能重新投入使用,实现「重塑·新生」。
重塑是对历史的尊重
新生是对时代的演绎

「江1984」由下渡冷库改造而成
保留了原有的工业厂房建筑结构及特色
结合珠江一带自然生态特征,融入新的外立面设计元素
以新的功能定位重新登上时代舞台
加速了城市更新的步伐

作为工业遗产,下渡冷库的工业建筑特征,包括统一的剖面层高与平面空间、柱网尺寸、高大的内部空间、高承重力的骨架等等,极具保留价值,是不可复刻的。

旧改并不是“穿衣戴帽”的表面工作,特别是工业厂房,结构十分复杂,每一个设计都经过多番研究讨论、每一个操作都是一个复杂、专业的。墙柱加固、肌理焕新、增加安全设备……逐步走向理想化。


每一个旧改项目都不仅是样本,而是城市更新的推动者。持续为城市发散无限生命力。

专属江1984的日与夜,源于城市更新的强烈魅力。
「请回答,江一九八四」
改造回顾展
你是谁?
你从哪来?
该往哪去?
120天「重塑」,你究竟经历了什么?
被赋能新生,存在的意义是?
江1984,请你来回答。

本次以城市更新项目“江1984”为对象,以文字、照片做载体,采用“问答”方式呈现项目改造的过程。接下来,我们以观展建议路线“穿梭时光”:

黑白照是它的过去,或许你能带走一张,把它的记忆也带走。

跟随时间轴的延伸,了解改造项目在各个阶段遇到的困难,主创团队又如何解决以一步步实现项目最终成果。

这一刻,它以“江1984”之名,出现眼前。

图纸从手绘到电子化,与历史一同演进。

你带走的不仅是一张明信片,而是下渡冷库被尘封的历史,属于江1984的独家记忆。

坐下来,享受岁月温柔的抚摸。

锈迹是「等待」的见证。
这个展览
为观众展现的不仅是120天改造推进,
更重要的是,
诠释了「重塑·新生」的意义。
「请回答,江一九八四」改造回顾展
开幕时间
2019年12月18日
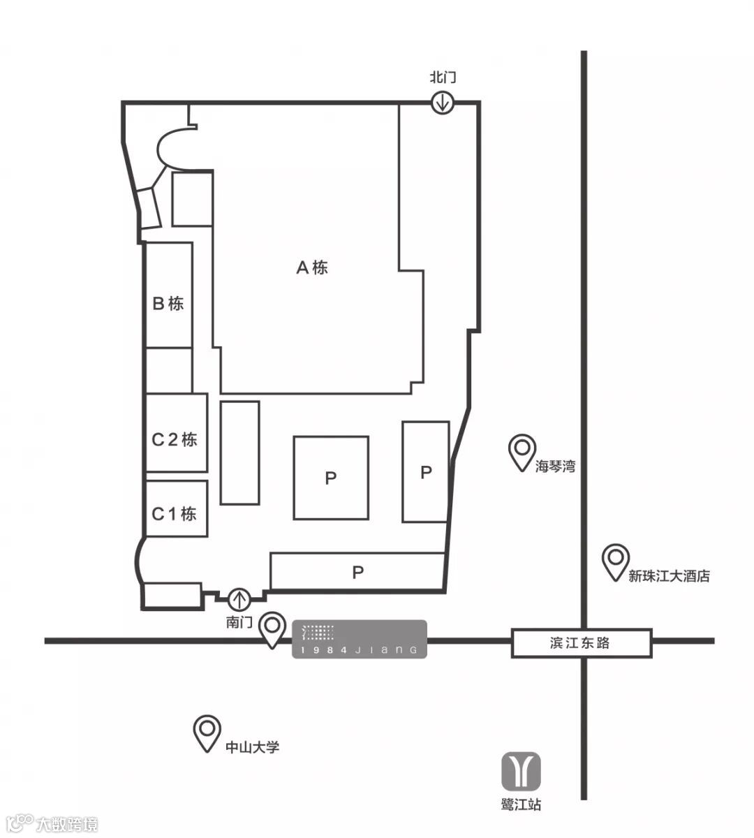
地点
广州市海珠区滨江东下渡路57号
江1984

☎️
招商热线
陈小姐 132-6590-8338


