
楼盘:白金海岸
面积:135方
设计师:季子
半包:10.5万
风格:美式风格
题记:无论是谁,总要走上一条回家的路,不管是洋房别墅,还是低矮草房,那总是自己最美的风景。奔波了一天走在喧嚣的人群中,家是我们疲倦时的栖息地,是心灵的伊甸园。每当我们伤心的时候,最先想到的便是家,那是我们心灵得到抚慰的地方,在我们最幸福的时候,依然会想到家,那是我们承载欢乐的天空。
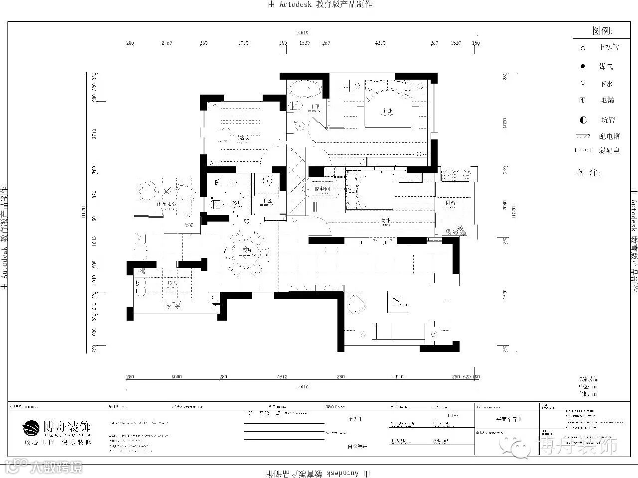
平面图

客厅



餐厅




厨房一角

生活阳台

过道


卧室





小孩房



卫生间





博舟官方微信传送门:
搜索公众账号: 博舟装饰
放心工程,快乐装修
集团热线:0571-56261255
官方网站:www.hzbzzs.com
公司总部:武林门北密渡桥路15号新世纪大厦22楼
城北分公司:通益路861号绿景国际1-601
33000方展厅:好运路2号本舟家居建材生活广场
衢州分公司: 新桥街115号方圆诚信商务大厦2楼
●点击右上角→查看官方账号,选择『查看历史消息』即可查看往期精彩内容。



