

项目地址:南都德迦
项目面积:220㎡跃层
预算:半包21万
项目风格:古典美式
项目户型:五室两厅 跃层
设计团队:博舟国际设计院
设计师:葛俏婷
施工单位:杭州博舟装饰工程有限公司
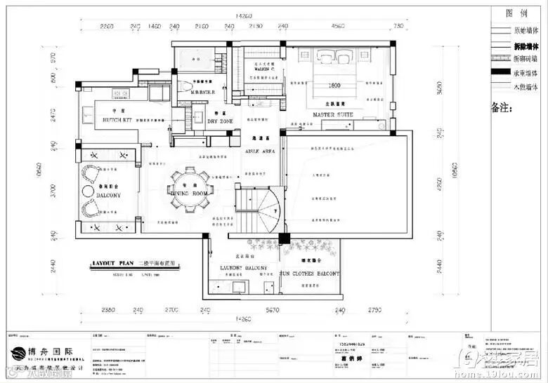
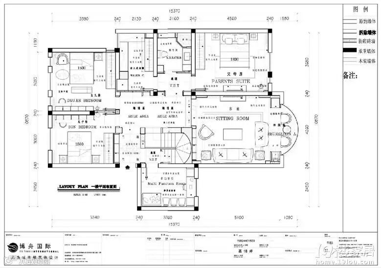
户型改造:



美式古典风格是众多家居装修装饰风格中的一种。美式古典风格的家具和家居用品在材质及色调上都表现出粗犷、未经加工、或二次做旧的质感和年代感。用具多以舒适实用和多功能为主,不过分强调繁复的雕刻和细节,营造返璞归真的境界。
玄关
玄关以简洁示人,近乎纯色的世界,加入简练直挺的线条
各有千秋的精致小件,使空间大气,悦动生活
客厅
客厅庞大的气场营造出了浑厚的古典空间
地砖、墙纸等精心选择的材料为实木家具的进一步造型确立了良好的基础
家具表面精心涂饰和雕刻,表现出独特的美式风格家居特色

厨房
1字形厨房使用更加方便
左边墙面安装创意的挂钩,让整个厨房显得更加生动、有趣味
让做饭显得更加有意思
主卧
主卧,吊顶采用跌级的形式,让整个空间更有层次
墙面采用纯白,凸显简单、大方,同样选得是古典的床、床头柜
一切营造出来的是那么的成熟、有味道
儿童房
因客户有两个孩子,一个男孩一个女孩,两间儿童房采用了不用的主色调
墙面大面积的印花壁纸铺贴,床品、窗帘、个性的玩具等
呈现出独特的美式情怀,同时也让整体显得更加温馨
楼梯
楼梯采用的是实木材质,脚杆舒适细腻
防护栏上精致的造型和线条把美式风格的高贵气质表现的淋漓尽致
一楼的绿色植物和照片墙点缀了整个空间
书房
书房加休闲区域
地面以深色为主
更突显了男主人的成熟稳重

葛俏婷
首席设计师
从业年限:八年
设计理念:结构的美来自视觉的张力和比例,呈现不加装饰的本质。
设计案例:江南豪园、竹海水
韵荷塘轩、白鹭郡南、白鹭郡北
、江南豪园、大华西溪、翡翠城、万家花城。
咨询热线:0571-56261255
官方网站:www.hzbzzs.com
公司总部:武林门北密渡桥路15号新世纪大厦22楼
博舟国际设计院:武林门北密渡桥路15号新世纪大厦22楼
博舟装饰好运分公司:杭州市好运路2号本舟家居建材生活广场1楼
家居装饰体验馆:好运路2号本舟家居建材生活广场(33000方展厅)

