
今天推荐给大家的是常州豪郡@万博装饰的设计师吴浩深的作品--星河国际
设计师:吴浩深
职位:高级设计师
部门:常州豪郡装饰工程有限公司-设计部
设计理念:绿色设计 自然设计
擅长风格:欧式 简美 现代 地中海 田园
主要作品:《星河国际》《华润国际》《上书房》《玉兰广场》《国宾一号》《香溢紫郡》《九龙仓繁华里》《绿地世纪城》《平岗星苑》《外滩一号》《龙湖花千树》 《香溢澜桥》 《白金汉宫》 《新城域》《金美林》《天逸城》《和平国际》 《阳光龙庭》 《绿都万和城》 《国泰名都》 《泰盈八千里》《香缇半岛》等等


案例详情:
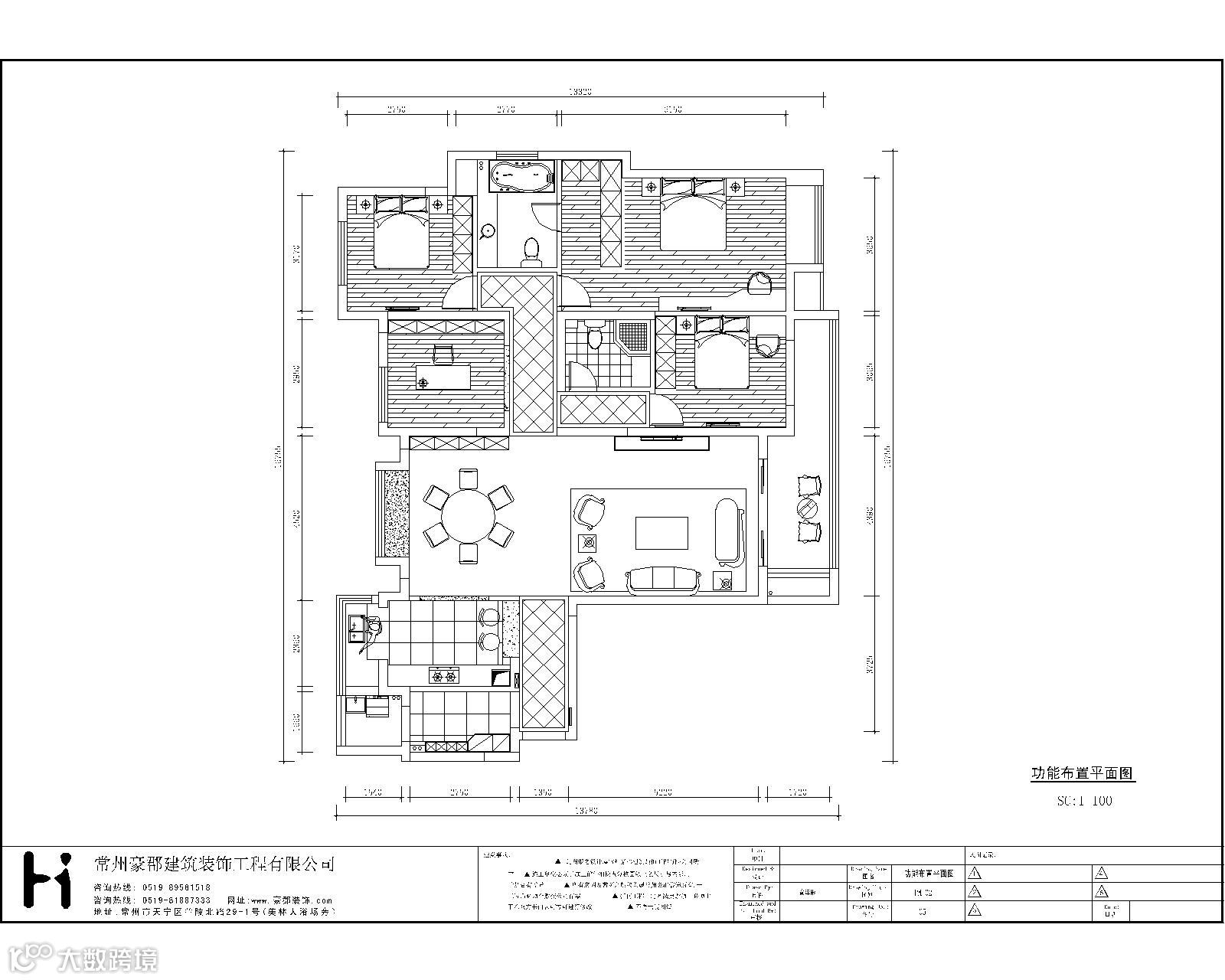
小区:星河国际
面积:172
风格:简欧
执笔设计师:吴浩深
施工单位:豪郡老鲁施工团队
平面图

效果图




其实,人生的道路从来都不平坦,谁都会遭遇各种各样的坎。要像刘翔那样勇往直前,你就能飞跃一道又一道坎,你的人生就充满灿烂和喜悦。

