大数跨境

今日【特别推荐】95平米美式风格小家,设计师的经典案例

今日【特别推荐】95平米美式风格小家,设计师的经典案例 豪郡装饰
2014-05-29
1
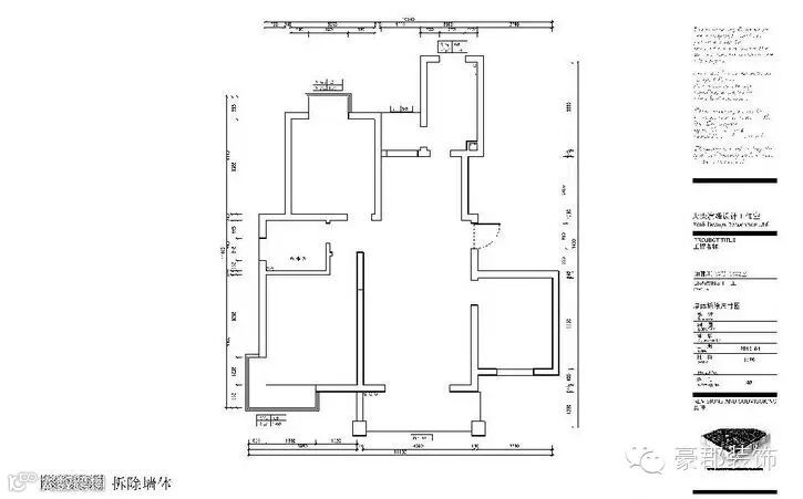
导读:1,餐厅面积大2,卫生间门不会对着入户门3,阳台结构是防腐木架,封窗4,书房内划分两个办公区域5,南北两个卧

1,餐厅面积大

2,卫生间门不会对着入户门

3,阳台结构是防腐木架,封窗
4,书房内划分两个办公区域
5,南北两个卧室书房和儿童房
6,开放式厨房


如果你喜欢或对你的朋友有用

请点击右上角按钮→,分享、收藏、备用。



本文由豪郡装饰 为您推送


【声明】内容源于网络
0
0
豪郡装饰
常州豪郡建筑装饰工程有限公司是一家专业从事家居装饰、写字楼、公寓、挑高空间、商业空间、别墅设计与施工的专业性工程公司。
内容 0
粉丝 0
豪郡装饰 常州豪郡建筑装饰工程有限公司是一家专业从事家居装饰、写字楼、公寓、挑高空间、商业空间、别墅设计与施工的专业性工程公司。
总阅读0
粉丝0
内容0