
项目地址 |大茂伟瑞柯车灯有限公司
风格定位 | 现代
项目面积 | 1000㎡
设计主创 | 吴浩深
施工单位 | 豪郡装饰
设计说明 | 此次改造属于工装,打破以往的空间布局,设计师通过合理的地空间规划,给员工们打造一款全新的舒适办公环境,改善公司文化面貌。



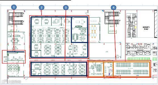
▼平面结构图

常州大茂伟瑞柯车灯有限公司前身是大茂伟世通车灯有限公司。大茂伟世通车灯有限公司是由美国伟世通公司与台湾堤维西交通工业股份有限公司合资企业,成立于2005年6月。伟世通公司--美国第三大汽车零部件公司。伟世通总部位于中国上海,世界500强企业中排名109位,年销售额177亿美元,是一家业界领先、提供全方位服务的汽车零部件供应商,为全球汽车生产厂商提供以消费者为本的技术解决方案,并通过多层次的渠道来满足汽车售后市场的需求。
合作愉快

一大早,顶着毛毛细雨,豪郡装饰的总经理、设计师和项目经理以及工人师傅们就来到了大茂伟瑞柯车灯有限公司。勘察公司环境,和公司负责人商讨室内改造解决方案。


本次室内改造主要是从茶水间、办公区、机房及档案室这三大区域进行全面改造。


在现场,我们的设计师吴浩深、项目经理周跃辉和大茂伟瑞柯车灯有限公司负责人进行深入地交流,对如何进行拆改进行深入的研究。




大家各抒己见,最终得到了很好的解决方案。下午,等待一切工作准备就绪,豪郡装饰的项目经理就带领着工人师傅们入场,进行第一步的敲墙工作,改造计划正式开始啦!小编在这里和工人师傅们说一声“辛苦啦”,希望一切顺利!我们期待改造后的效果哦~


我们很高兴能与 常州大茂伟瑞柯车灯有限公司合作!很感谢他们对豪郡装饰的支持与信任。我们也衷心祝愿他们的企业会发展的越来越好!做设计我们是认真的!豪郡装饰,您值得拥有!

选装修就要选择合适的平台
豪郡装饰
最具性价比的优质装修服务
汇集优秀设计师团队
全程监理监管 新家入住安然无忧
甄选国内一线大牌主辅材
人性化设计
智能家居引领家居时代
打造一款独具风格的家
让生活回归本质,让家居更添色彩。

关于我们
常州豪郡装饰设计工程有限公司是一家专业从事家居装饰、写字楼、公寓、挑高空间、商业空间别墅设计与施工 的专业性工程公司,借助先进的施工技术,将人力资源有机的结合在一起,真正实现了资源合理调度,确保服务质量、时效性和低成本。
豪郡装饰
给业主细致的服务,
一流的工艺,专业的品质。
一心一意为业主打造高质量高性价比的个性化新房,
让每一栋房子都有独特的设计,
豪郡装饰您值得拥有!
我们的目标是
做家装界最好的设计师,
设计界最好的施工队,
建筑界最好的微信小编!
豪郡装饰,您值得拥有!
你的加入我们更精彩!


要求:
1、与客户沟通,了解客户需求,根据客户要求出室内设计方案。
2、提交方案设计、初步设计、施工图设计审核。
3、负责客户装修所需方案图、效果图、施工图、预算的完成工作。
工作经验:
1、具有装饰设计、室内设计等相关专业。
2、有较强的视觉搭配能力,能熟练操作AutoCAD、3DMax、Photoshop等应用软件。
3、学习能力强、热爱设计工作、有创新精神。
4、善于沟通,表达能力强,具有一定的团队精神。
5、两年以上相关工作经验,有大中型项目设计经验者优先考虑。

要求:
1、组建市场销售团队;
2、带领市场部销售团队开拓销售渠道;
3、渠道的日常维护和跟踪;
4、销售团队的考评和管理;
5、及时依据市场情况调整销售策略和销售渠道,
完成年度销售计划;
6、策划和包装品牌,推广公司品牌和理念;
7、带领销售团队开展地面推广活动;

要求:
1、熟知家装施工流程的施工现场管理;
2、熟悉与相关部门及各施工方的协调处理及进度、质量、安全、及时处理解决施工中 出现的问题,并承担工程项目管理责任;
3、对工程管理、质量、施工工艺、进度、安全等有较强的掌控经验;
4、具有较强的沟通协调及管理能力,本装饰项目对时效性强求极强。
任职资格:
1、沟通能力强,有高度责任感,能够吃苦耐劳;
2、态度品质:品行端正,施工规范,保证质量,信誉良好,工作认真 踏实,协调能力 强,有强烈团队意识;
3、工作经验:5年以上家装装饰公司合作和承揽装修工程管理工作经验;
4、综合能力:综合素质高,具备较强组织协调能力

要求:
1.热爱设计行业,具有一定的美学概念和色彩搭配能力。
2.熟悉操作CAD、Photoshop、3Dmax、草图大师等相关应用软件。
3.学习能力强,有团队精神和创新意识,肯吃苦,表达能力强。
4.有工作经验者优先。

要求:
1、负责网站编辑;
2、客户联系跟踪和开发客户来源,配合设计师签单等;
3、通过网络渠道开发和业务拓展。
工作经验:
1、专科及以上学历,市场营销等相关专业;
2、两年以上网络销售等相关专业,具有网络销售渠道者优先。
3、精通各种网络销售技巧,熟悉各大门户网站;
4、熟练使用网络交流工具和各种办公软件;有较强的团队精神和沟通能力。

要求:
1、负责前台服务热线的接听和电话转接,做好来电咨询工作,重要事项认真记录并传达给相关人员,不遗漏、延误; 2、负责来访客户的接待、基本咨询和引见,严格执行公司的接待服务规范,保持良好的礼节礼貌;
3.负责前台或咨询接待室的卫生及桌椅摆放,并保持整洁干净。


当今社会竞争激烈,能加入一个好的平台,展示自己的理想是所有求职者期待的,我们的目标就是给您提供一个让您发挥自我的平台,豪郡装饰全体工作人员期待您的加入!如果您是人才,豪郡装饰给您舞台!
如我们达成合作,豪郡装饰将为您提供
1、以人为本的企业文化氛围,形式多样,内容丰富的各项培训及团队活动
2、公平合理的工作发展平台,较完善的职业晋升体系;
3、丰富多样的挑战性高薪,具体面议;
公司面试地址:江苏省常州市天宁区兰陵北路337-1号(美林大浴场旁)
咨询热线:15261172653
QQ: 2963744869

豪郡装饰欢迎您的加入!
【豪郡装饰】丰富的活动、专业的行家、经验独到的装修人,豪郡装饰助您2016装修无烦恼,更多活动详情,请来两大门店(兰陵店/湖塘店)咨询,或关注【豪郡装饰】官方微信!【豪郡装饰】会为您持续推送活动相关详情!
小伙伴们赶紧约起来!
拨打热线:
TEL:0519-83605988
Q Q: 2923507895
活动最终解释权归豪郡装饰所有。
豪郡装饰

创意美图|设计案例|装修知识|找设计师

赠人玫瑰,手有余香;
欢迎分享,你的小伙伴也可能会需要哦!





