
/现代简约/
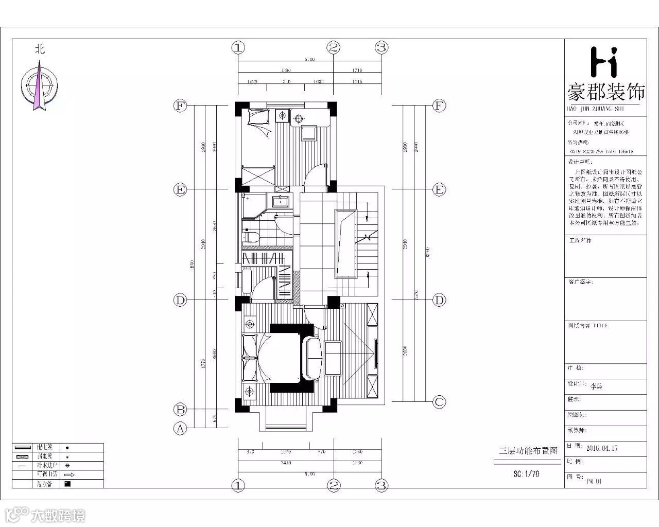
户型解析
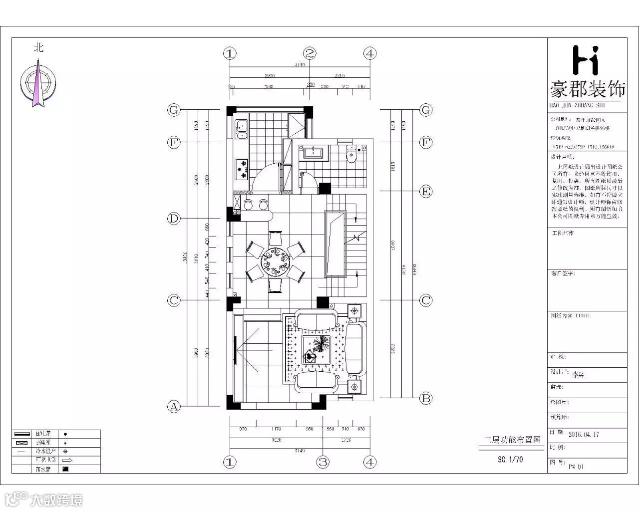
1.厨房外墙内移,墙体和卫生间拉齐,增加一个独立休闲兼吧台的位置,外墙延展出去,利用平台增加厨房的整体空间,解决了冰箱及储藏功能的问题


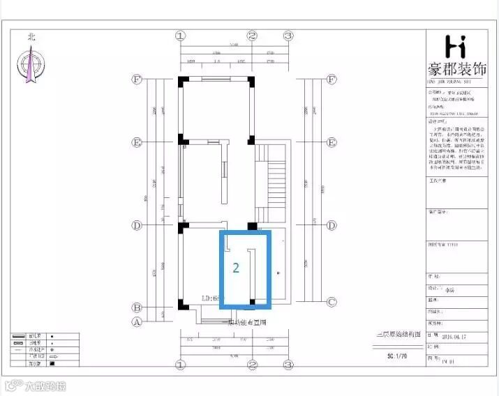
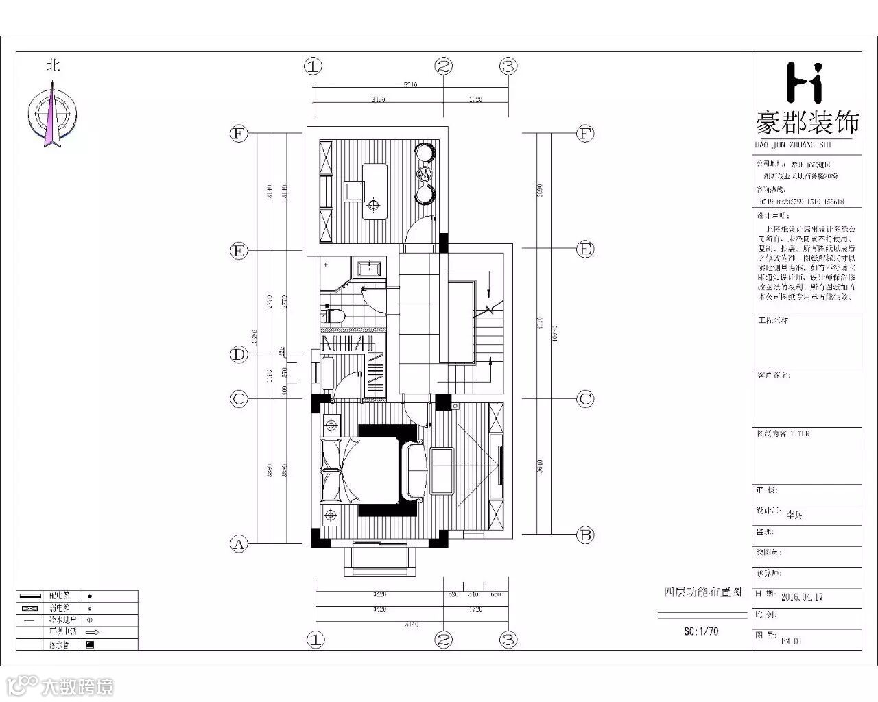
2.主卧的墙体敲掉,增大主卧的视觉空间,内部设计独立的衣帽间


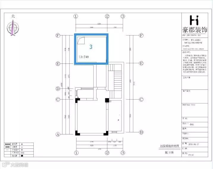
3.三楼次卧榻榻米,兼具书房和卧室的功能


效果图
客厅:整体风格是现代简约风,用以简单的家具线条,自然洒脱的原木色墙面和灰色地砖相得益彰的搭配,营造出简洁时尚、温馨实用的生活空间

餐厅:餐厅两侧延续电视背景墙浅木色板材,丰富了空间层次感,增大的储物空间

主卧:主卧延续原木色,灰色为大面积色调,家具采用完全不雕花、纹饰的原木色家具,亲切,自然,搭配别致的灯具,整个空间温暖而不失个性与心意

书房:书柜门板采用玻璃的,增大房间的通透性和采光。


联系我们
兰陵店
▼
常州市天宁区兰陵北路337-1号(美林大浴场旁)
Tel:0519-81887333
湖塘店
▼
常州市湖塘广电路花园街茂业天地商务楼20层
Tel:0519-83605988
豪郡装饰

创意美图|设计案例|装修知识|找设计师


