
关于我们
豪郡建筑装饰设计工程有限公司是一家专业从事家居装饰、写字楼、公寓、挑高空间、商业空间别墅设计与施工 的专业性工程公司,借助先进的施工技术,将人力资源有机的结合在一起,真正实现了资源合理调度,确保服务质量、时效性和低成本。

9月的第二周
在阵阵鞭炮声中,豪郡装饰4家齐开工。
4个家庭的新征程即将开启,祝业主生活幸福!
豪郡装饰恭祝4户新家开工大吉
山水花园
御龙山
怡盛花园(7-x04)
怡盛花园(5-乙-x702)

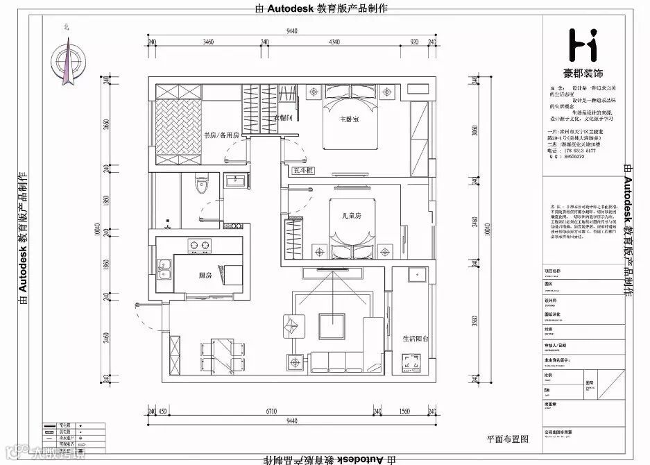
怡盛花园7-x04(现代简约 120㎡)
BOUTBEAUTY
/刘小丽
设计理念:人可以改变环境,环境可以影响人,而设计可以改变人和环境。
工作经验:10年以上
擅长风格:现代简约风格、欧式新古典风格、美式乡村风格、 地中海风格、新中式风格
小区案例:公园一号、香溢澜桥别墅、华润国际、雅居乐、龙德花园、凯尔锋度等、保利公园九 里、领绣汇怡盛花园、御城、大名城顺御和苑、御城、新城南都、路劲城、中央花园
▼开工照

▼平面布置图

▼效果图


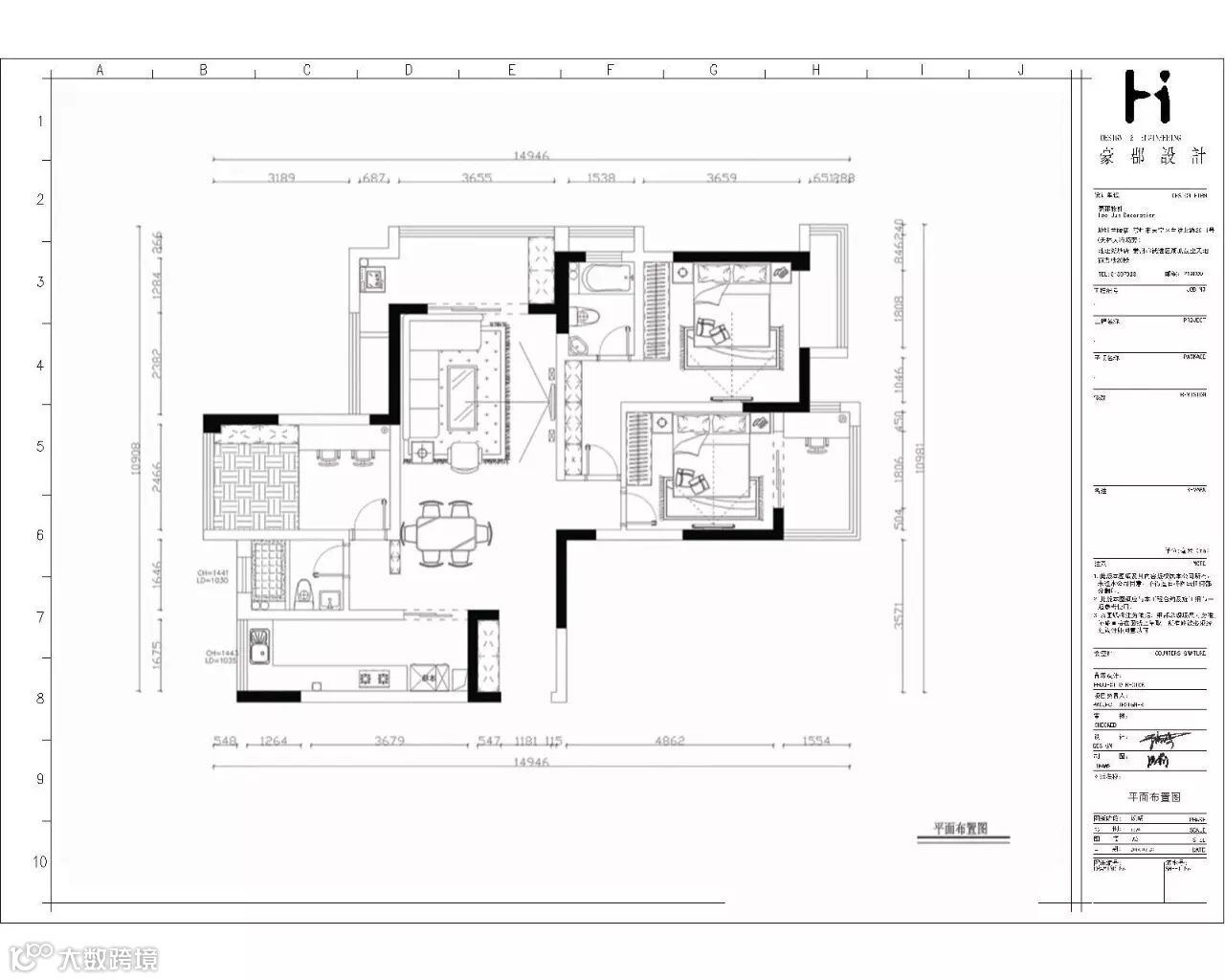
怡盛花园5-乙-x702(日式风格 90㎡)
BOUTBEAUTY
/徐坚钧
设计理念:追求艺术与技艺的完美结合
工作经验:10年以上
擅长风格:现代简约风格、欧式新古典风格、美式乡村风格、 地中海风格、新中式风格
▼开工照

▼平面布置图

▼效果图


山水花园(现代风格 120㎡)
BOUTBEAUTY
/钱舒云
设计理念:设计是一种追求品味的生活概念。
工作经验:5年以上
擅长风格:现代简约风格、欧式新古典风格、美式乡村风格、 地中海风格、新中式风格
小区案例:大名城顺御和苑、御城、路劲城、中央花园、保利公园九里、龙湖原山、蔚蓝天地、玉兰广场、莱蒙城、中澳珑郡......
▼开工照

▼平面布置图

▼效果图



御龙山
BOUTBEAUTY
/王建
设计理念:勤于沟通、重于大局、微于细节、桂于专业
工作经验:13年以上
擅长风格:美式、欧式、后现代、现代简约
▼开工照

▼原始框架图

▼平面布置图

▼效果图




豪郡装饰
给业主细致的服务,
一流的工艺,专业的品质。
一心一意为业主打造高质量高性价比的个性化新房,
让每一栋房子都有独特的设计,
豪郡装饰您值得拥有!
我们的目标是
做家装界最好的设计师,
设计界最好的施工队,
装修界最好的微信小编!
豪郡装饰,您值得拥有!
联系我们
兰陵店
▼
常州市天宁区兰陵北路337-1号(美林大浴场旁)
Tel:0519-81887333
湖塘店
▼
常州市湖塘广电路花园街茂业天地商务楼20层
Tel:0519-83605988
豪郡装饰

创意美图|设计案例|装修知识|找设计师


