关于我们
豪郡建筑装饰设计工程有限公司是一家专业从事家居装饰、写字楼、公寓、挑高空间、商业空间别墅设计与施工 的专业性工程公司,借助先进的施工技术,将人力资源有机的结合在一起,真正实现了资源合理调度,确保服务质量、时效性和低成本。

豪郡装饰
精英设计师领衔
多年设计工作经验积淀
设计方案全方位剖析
专业服务龙城千家业主
面对面解析户型设计要点
百分百全案设计效果
找最专业的设计师
就来豪郡装饰
现代风格

简约不等于简单,它是经过深思熟虑后经过创新得出的设计和思路的延展,不是简单的“堆砌”和平淡的“摆放”,不像有些设计师粗浅的理解的“直白”,比如床头背景设计有些简约到只有一个十字挂件,但是它凝结着设计师的独具匠心,既美观又实用。
首席设计师
BOUTBEAUTY
钟磊

设计理念:让灵感自由释放,创造一个心灵渴望的空间
工作经验:5年以上
擅长风格:简欧风格、东南亚风格、美式风格、现代风格、田园风格、新中式风格、简约混搭、地中海风格
小区案例:《金坛美丽华大厦》、《青建鼎都》、《上书房》、《高成天鹅湖》、《孟河东庭院》。
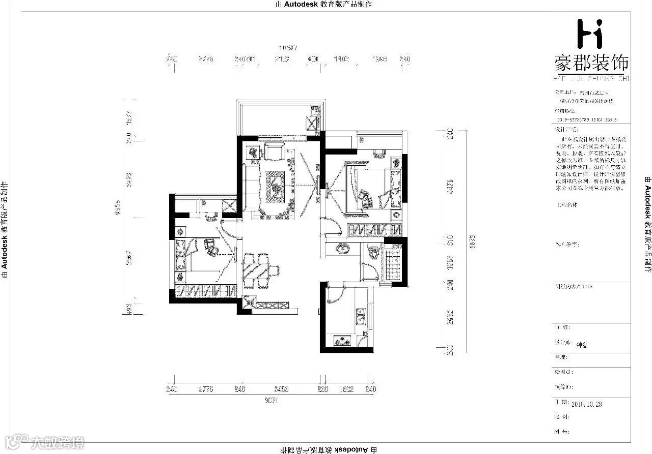
▼原始框架图

▼平面布置图

方案解析
1、内卫改成外卫做干湿分离
墙敲一半做玄关
2、次卧室借空调外机位改了个书桌
3、冰箱放客厅,扩大厨房



豪郡装饰——给业主细致的服务,一流的工艺,专业的品质。
一心一意为业主打造高质量高性价比的个性化新房,
让每一栋房子都有独特的设计,豪郡装饰您值得拥有!
我们的目标是——做家装界最好的设计师,设计界最好的施工队,装修界最好的微信小编!豪郡装饰,您值得拥有!

双11,我们豪郡装饰双11优惠活动任在继续中!

基础装修9.5折仅限60名
前11名交9000抵10000
来店送现金
单笔订单满
35000元送1000元主材现金支票
50000元送3000元主材现金支票
65000元送5000元主材现金支票

加11元,即可获得幸运大抽奖一次
100%中奖哟~




活动时间
2016年10月9日~2016年11月11日

联系我们
兰陵店
▼
常州市天宁区兰陵北路337-1号(美林大浴场旁)
Tel:0519-81887333
湖塘店
▼
常州市湖塘广电路花园街茂业天地商务楼20层
Tel:0519-83605988
24小时服务电话
▼
Tel:181 5128 9188
豪郡装饰

创意美图|设计案例|装修知识|找设计师
豪郡装饰官方网站:www.cnhaojun.com



