
关于我们
豪郡建筑装饰设计工程有限公司是一家专业从事家居装饰、写字楼、公寓、挑高空间、商业空间别墅设计与施工 的专业性工程公司,借助先进的施工技术,将人力资源有机的结合在一起,真正实现了资源合理调度,确保服务质量、时效性和低成本。

豪郡装饰
精英设计师领衔
多年设计工作经验积淀
设计方案全方位剖析
专业服务龙城千家业主
面对面解析户型设计要点
百分百全案设计效果
找最专业的设计师
就来豪郡装饰

现代北欧
自在、随意不羁的生活方式,
没有太多造作的修饰与约束,
不经意中也能成就一种休闲式的浪漫。

BOUTBEAUTY
/刘小丽

设计理念:人可以改变环境,环境可以影响人,而设计可以改变人和环境。
工作经验:10年以上
擅长风格:现代简约风格、欧式新古典风格、美式乡村风格、 地中海风格、新中式风格
小区案例:公园一号、香溢澜桥别墅、华润国际、雅居乐、龙德花园、凯尔锋度等、保利公园九里、领绣汇怡盛花园、御城、大名城顺御和苑、御城、新城南都、路劲城、中央花园
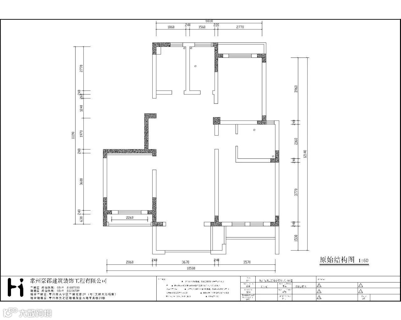
▼原始框架图

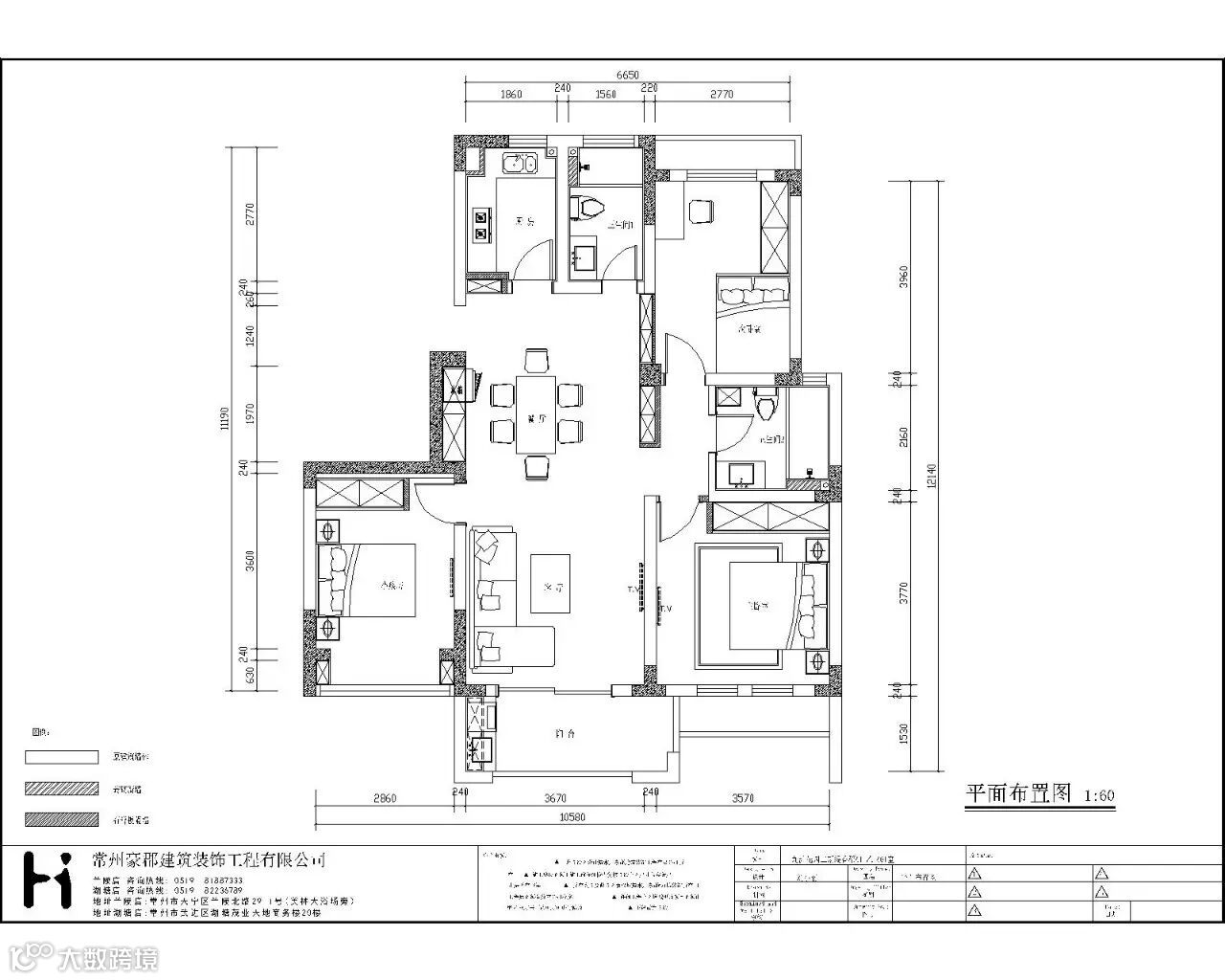
▼平面布置图

户型解析:
1、次卧空调外机敲掉,扩大空间利用率。
2、走廊墙体敲除,改成柜子,增加存储空间。
3、阳台墙体敲除,增加阳台空间。



HAOJUN·DESIGN·案例欣赏【怡盛花园】117㎡简美风格

HAOJUN·DESIGN·案例欣赏【弘建壹品】136㎡小美风格

HAOJUN·DESIGN·案例欣赏【玉兰广场】88㎡现代美式

豪郡装饰——给业主细致的服务,一流的工艺,专业的品质。
一心一意为业主打造高质量高性价比的个性化新房,
让每一栋房子都有独特的设计,豪郡装饰您值得拥有!
我们的目标是——做家装界最好的设计师,设计界最好的施工队,装修界最好的微信小编!豪郡装饰,您值得拥有!

双11,我们豪郡装饰又有新一轮的优惠活动了!

基础装修9.5折仅限60名
前11名交9000抵10000
来店送现金
单笔订单满
35000元送1000元主材现金支票
50000元送3000元主材现金支票
65000元送5000元主材现金支票

加11元,即可获得幸运大抽奖一次
100%中奖哟~




活动时间
2016年10月9日~2016年11月11日

联系我们
兰陵店
▼
常州市天宁区兰陵北路337-1号(美林大浴场旁)
Tel:0519-81887333
湖塘店
▼
常州市湖塘广电路花园街茂业天地商务楼20层
Tel:0519-83605988
24小时服务电话
▼
Tel:181 5128 9188
豪郡装饰

创意美图|设计案例|装修知识|找设计师


