
关于我们
常州豪郡装饰工程有限公司是一家专业从事家居装饰、写字楼、公寓、挑高空间、商业空间别墅设计与施工 的专业性工程公司,借助先进的施工技术,将人力资源有机的结合在一起,真正实现了资源合理调度,确保服务质量、时效性和低成本。

豪郡装饰
精英设计师领衔
多年设计工作经验积淀
设计方案全方位剖析
专业服务龙城千家业主
面对面解析户型设计要点
百分百全案设计效果
找最专业的设计师
就来豪郡装饰
现代风格

简约不等于简单,它是经过深思熟虑后经过创新得出的设计和思路的延展,不是简单的“堆砌”和平淡的“摆放”,不像有些设计师粗浅的理解的“直白”,比如床头背景设计有些简约到只有一个十字挂件,但是它凝结着设计师的独具匠心,既美观又实用。
设计总监
BOUTBEAUTY
钟磊

设计理念:让灵感自由释放,创造一个心灵渴望的空间
工作经验:5年以上
擅长风格:简欧风格、东南亚风格、美式风格、现代风格、田园风格、新中式风格、简约混搭、地中海风格
小区案例:《金坛美丽华大厦》、《青建鼎都》、《上书房》、《高成天鹅湖》、《孟河东庭院》。
原始框架图
▼

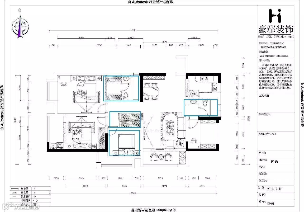
平面布置图
▼

户型解析
▼
①、原墙体敲除做背靠背橱柜,节省空间
②、内卫原墙体敲除,做衣帽间
③、注重床的朝向问题
④、外卫干湿分离



豪郡装饰——给业主细致的服务,一流的工艺,专业的品质。
一心一意为业主打造高质量高性价比的个性化新房,
让每一栋房子都有独特的设计,豪郡装饰您值得拥有!
我们的目标是——做家装界最好的设计师,设计界最好的施工队,装修界最好的微信小编!豪郡装饰,您值得拥有!

联系我们
兰陵店
▼
常州市天宁区兰陵北路337-1号(美林大浴场旁)
Tel:0519-81887333
新北店
▼
正在筹备中,敬请期待~

创意美图|设计案例|装修知识|找设计师
豪郡装饰官方网站:www.cnhaojun.com


