
姓名:张长江
职务:高级设计师
部门:常州豪郡装饰工程有限公司--设计部
设计理念:设计源于生活,高于生活,一切站在业主的角度出发,展现出最完美的作品。
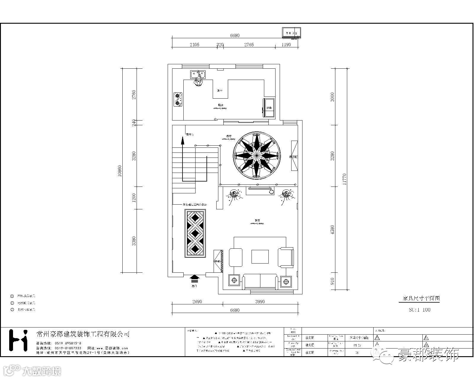
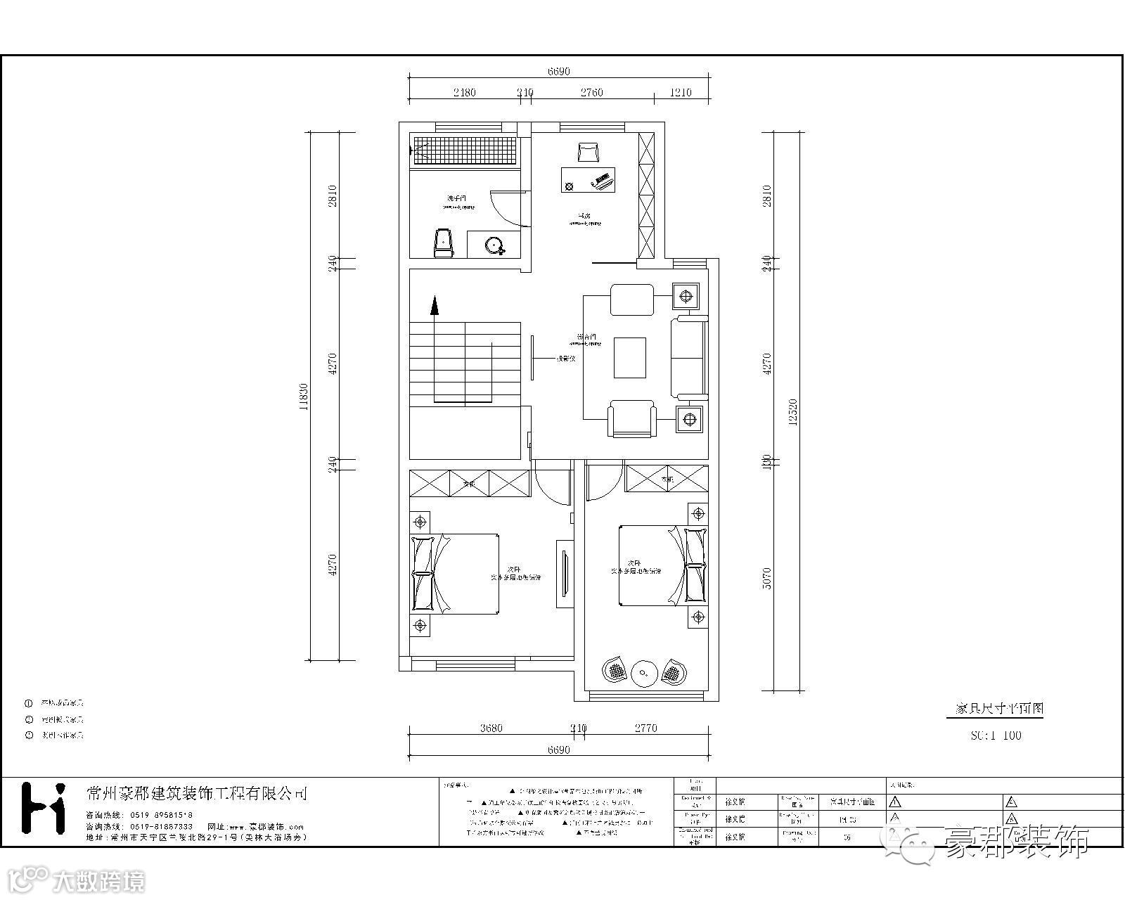
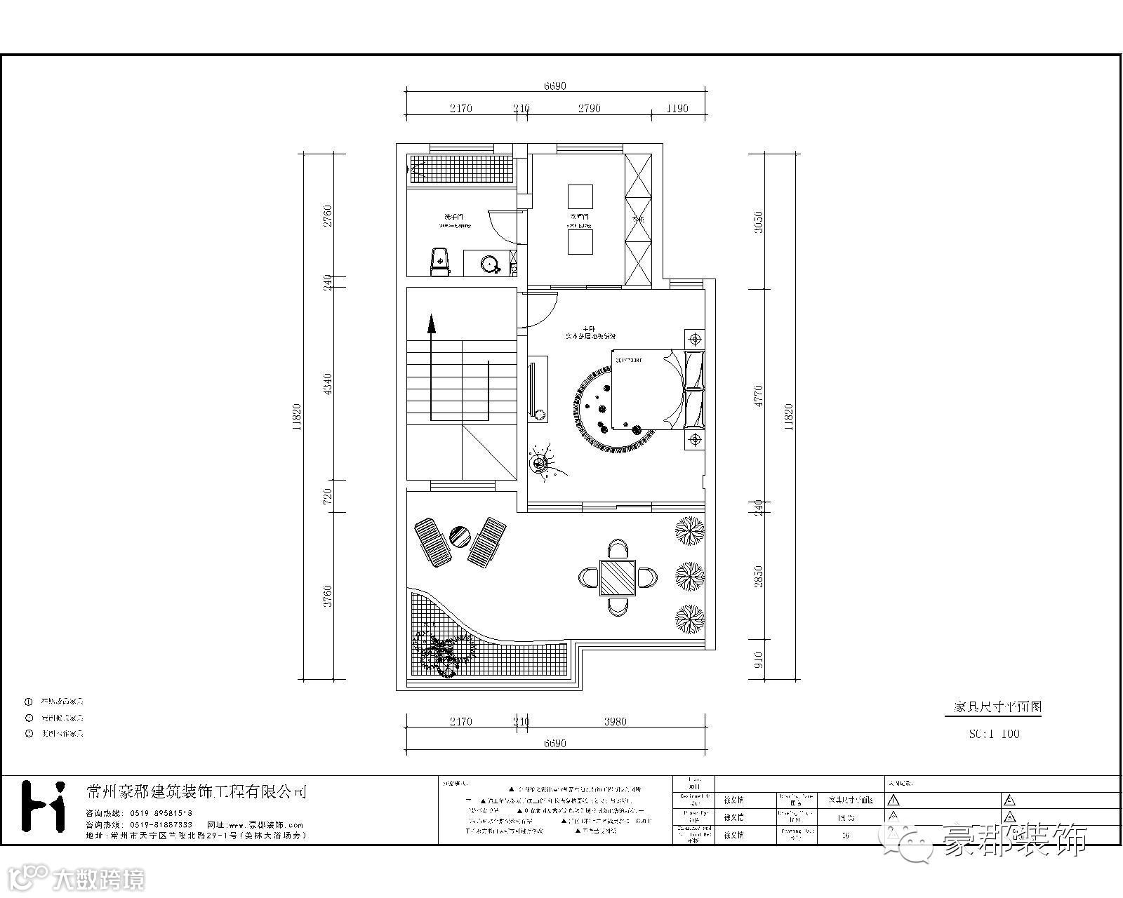
《横林复式住宅》



《康桥水郡》
《莱茵花苑》


《泰盈八千里》


人生,无非只有三天,昨天,今天,明天。昨天很长,说不清有多少天,但不管有多少天,不管是受到挫折,还是取得辉煌,都只能代表过去,昨天你失败了,将来可能会成功,昨天你辉煌了,将来你可能会萎靡不振,只有把过去的挫折和辉煌都变成今天的基石,才能登上美好的明天。
豪郡装饰
姓名:张长江
职务:高级设计师
部门:常州豪郡装饰工程有限公司--设计部
设计理念:设计源于生活,高于生活,一切站在业主的角度出发,展现出最完美的作品。
《横林复式住宅》



《康桥水郡》
《莱茵花苑》


《泰盈八千里》


人生,无非只有三天,昨天,今天,明天。昨天很长,说不清有多少天,但不管有多少天,不管是受到挫折,还是取得辉煌,都只能代表过去,昨天你失败了,将来可能会成功,昨天你辉煌了,将来你可能会萎靡不振,只有把过去的挫折和辉煌都变成今天的基石,才能登上美好的明天。