寒冬降临,距离过年还剩24天,对于业主来说,越接近年底,当然也要抓紧时间找到心仪的装修公司,那么怎么找到自己心仪的装修公司呢?

为了业主提供更便利的服务,我们提供了专场服务,有专业设计师团队为您服务,充分满足您的要求,我们先从湖塘路劲城拉开序幕!
本周专场小区-----路劲城
精准户型剖析
路劲城
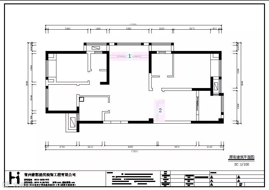
106平方户型分析
1、厨房门的改动,增加了厨房的采光,让厨房与餐厅的距离变短
2、卧室门的改动,解决了过道正对卧室门
3、敞开式书房,增加了空间
4、根据客户的需求,把原来的卫生间改成了独立的衣帽间
原始平面图

方案解析

126平方户型分析
1、把原本的生活阳台敲掉,增加餐厅空间;把过道原本的空间增加了一个储藏间。
2、把所有的飘窗都敲掉,增加卧室的空间,使使用空间变得更大
原始平面图
方案解析
126平方户型分析
1、把移门位置敲掉,增大客厅空间
2、把原来的墙敲掉,衣帽间的位置变大,和客厅的餐边柜背靠背
原始平面图

方案解析

127平方户型分析
1、把原来的设备平台敲掉,扩大餐厅位置
2、原本过道的墙敲掉,做成衣帽间的位置
原始平面图

方案解析

每一户业主都有自己的生活需求,
豪郡装饰小区专场期间,
凡带户型图前来咨询,免费出方案,还可获得精美礼品一份哟!
TEL:0519-81887333
ADD:
天宁区兰陵北路337-1号 助有汽车三楼(美林大浴场旁)


