
关于我们
豪郡建筑装饰设计工程有限公司是一家专业从事家居装饰、写字楼、公寓、挑高空间、商业空间别墅设计与施工 的专业性工程公司,借助先进的施工技术,将人力资源有机的结合在一起,真正实现了资源合理调度,确保服务质量、时效性和低成本。

8月的第二周
在阵阵鞭炮声中,豪郡装饰4家齐开工。
4个家庭的新征程即将开启,祝业主生活幸福!
豪郡装饰恭祝4户新家开工大吉
天安数码城
青建鼎都
九州新世界
优活城

▼天安数码城
BOUTBEAUTY
/陈可
设计理念:在确保使用功能的充分利用的前提下达到审美功能的最大化
工作经验:10年以上
擅长风格:现代简约风格、欧式新古典风格、美式乡村风格、 地中海风格
小区案例:御城、路劲城、中央花园、保利公园九里、龙湖誉城、蔚蓝天地、星鑫家园、玉兰广场、宏图上水、兰陵尚品、外滩一号......
▼开工照

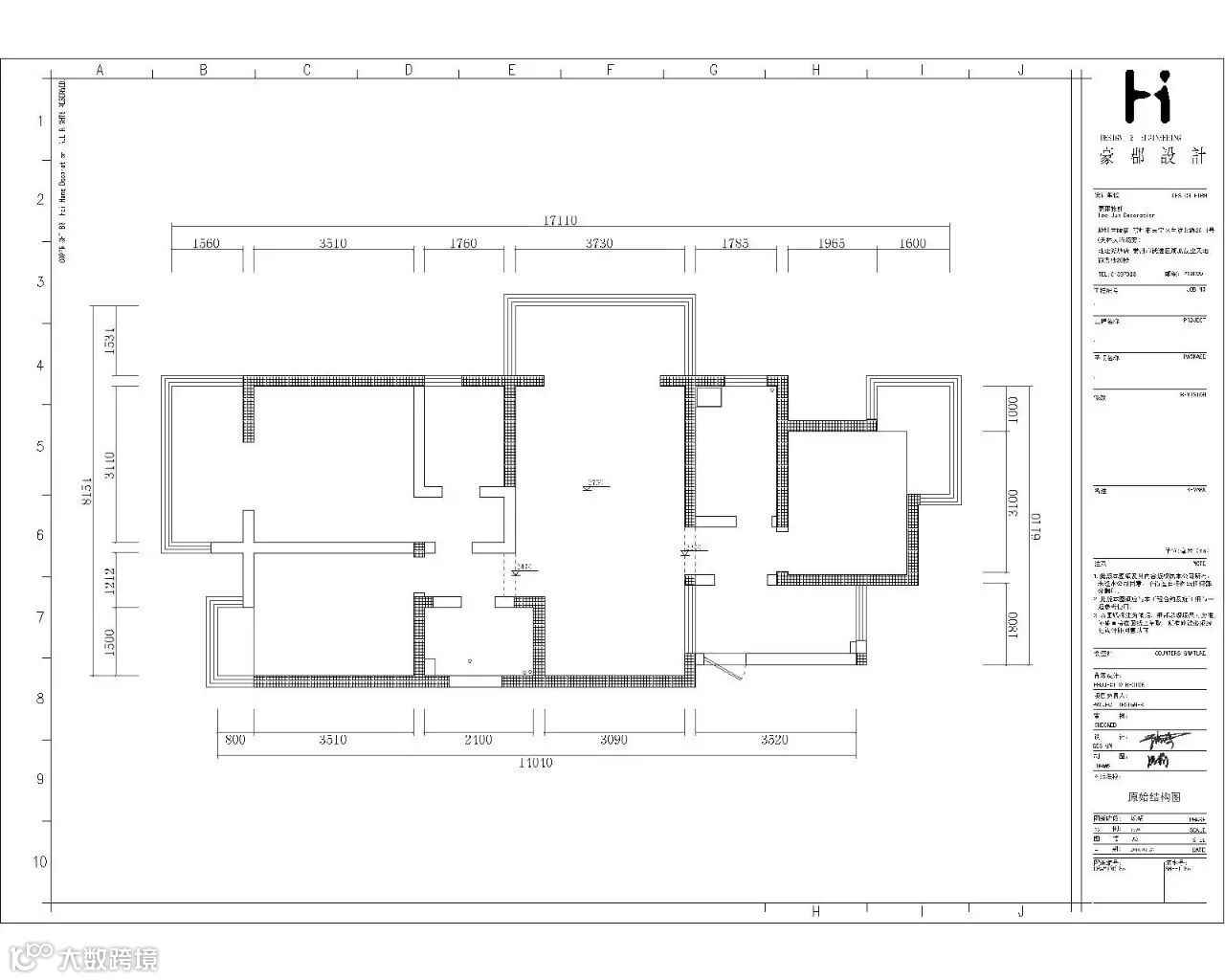
▼原始框架图

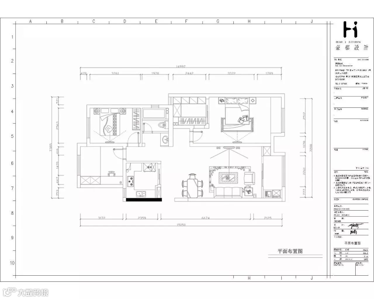
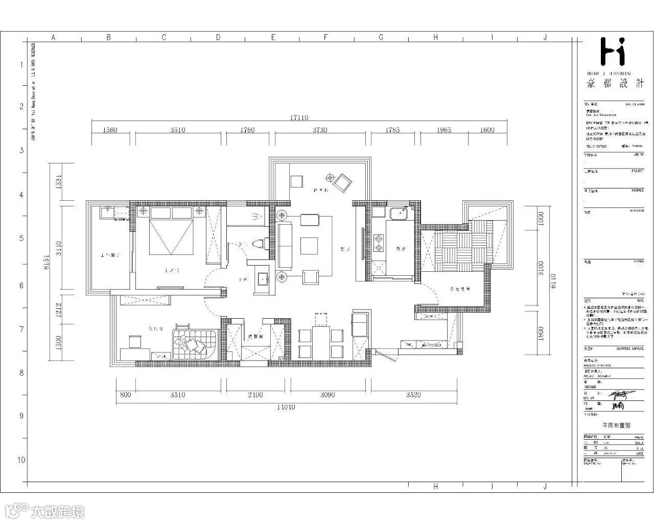
▼平面布置图

▼青建鼎都
BOUTBEAUTY
/钱舒云
设计理念:设计是一种追求品味的生活概念
工作经验:10年以上
擅长风格:现代简约风格、欧式新古典风格、美式乡村风格、 地中海风格、新中式
小区案例:御城、路劲城、中央花园、保利公园九里、龙湖原山、蔚蓝天地、玉兰广场......
▼开工照

▼平面布置图
▼效果图

▼九州新世界
BOUTBEAUTY
/于海奇
设计理念:根据不同的需要,设计适合的居室,让他们得到一定的满足感。
工作经验:10年以上
擅长风格:简欧,新古典,新中式,美式,后现代
小区案例:御城、路劲城、中央花园、保利公园九里、龙湖原山、蔚蓝天地、星鑫家园、玉兰广场、宏图上水、兰陵尚品、昆山别墅、和平美景......
▼开工照

▼原始框架图

▼平面布置图

▼效果图

▼优活城
BOUTBEAUTY
/刘文祥
设计理念:因地制宜,因人而异,设计是为每一个人创造一个属于自己的空间。
工作经验:3年以上
擅长风格:现代简约风格、欧式新古典风格、美式乡村风格、 地中海风格
小区案例:《香溢紫郡》、《御城》、《保利公园》、《阳光金域》、《星河国际》、《年华里》、《路径城》、《德禾豪景》、《海空苑》、《金星鼎邦》、《九州花园》
▼开工照

▼平面布置图

▼效果图
豪郡装饰
给业主细致的服务,
一流的工艺,专业的品质。
一心一意为业主打造高质量高性价比的个性化新房,
让每一栋房子都有独特的设计,
豪郡装饰您值得拥有!
我们的目标是
做家装界最好的设计师,
设计界最好的施工队,
建筑界最好的微信小编!
豪郡装饰,您值得拥有!

【豪郡装饰】丰富的活动、专业的行家、经验独到的装修人,豪郡装饰助您2016装修无
烦恼,更多活动详情,请来两大门店(兰陵店/湖塘店)咨询,或关注【豪郡装饰】官方微信!【豪郡装饰】会为您持续推送活动相关详情!
小伙伴们赶紧约起来!
兰陵店:天宁区兰陵北路337-1号(美林大浴场旁)
湖塘店:湖塘广电路花园街茂业天地商务楼20层
拨打热线:
TEL:13806127830
Q Q: 2923507895
活动最终解释权归豪郡装饰所有。
豪郡装饰

创意美图|设计案例|装修知识|找设计师


