关于我们
豪郡建筑装饰设计工程有限公司是一家专业从事家居装饰、写字楼、公寓、挑高空间、商业空间别墅设计与施工 的专业性工程公司,借助先进的施工技术,将人力资源有机的结合在一起,真正实现了资源合理调度,确保服务质量、时效性和低成本。

豪郡装饰
精英设计师领衔
多年设计工作经验积淀
设计方案全方位剖析
专业服务龙城千家业主
面对面解析户型设计要点
百分百全案设计效果
找最专业的设计师
就来豪郡装饰
小美风格
自在、随意不羁的生活方式,
没有太多造作的修饰与约束,
不经意中也能成就一种休闲式的浪漫。

BOUTBEAUTY
/刘文祥

设计理念:因地制宜,因人而异,设计是为每一个人创造一个属于自己的空间。
工作经验:4年以上
擅长风格:简美、现代简约
小区案例:《百馨西苑》《悠活城》《世茂香槟湖》《青建鼎都》《德禾豪景》。
▼原始框架图

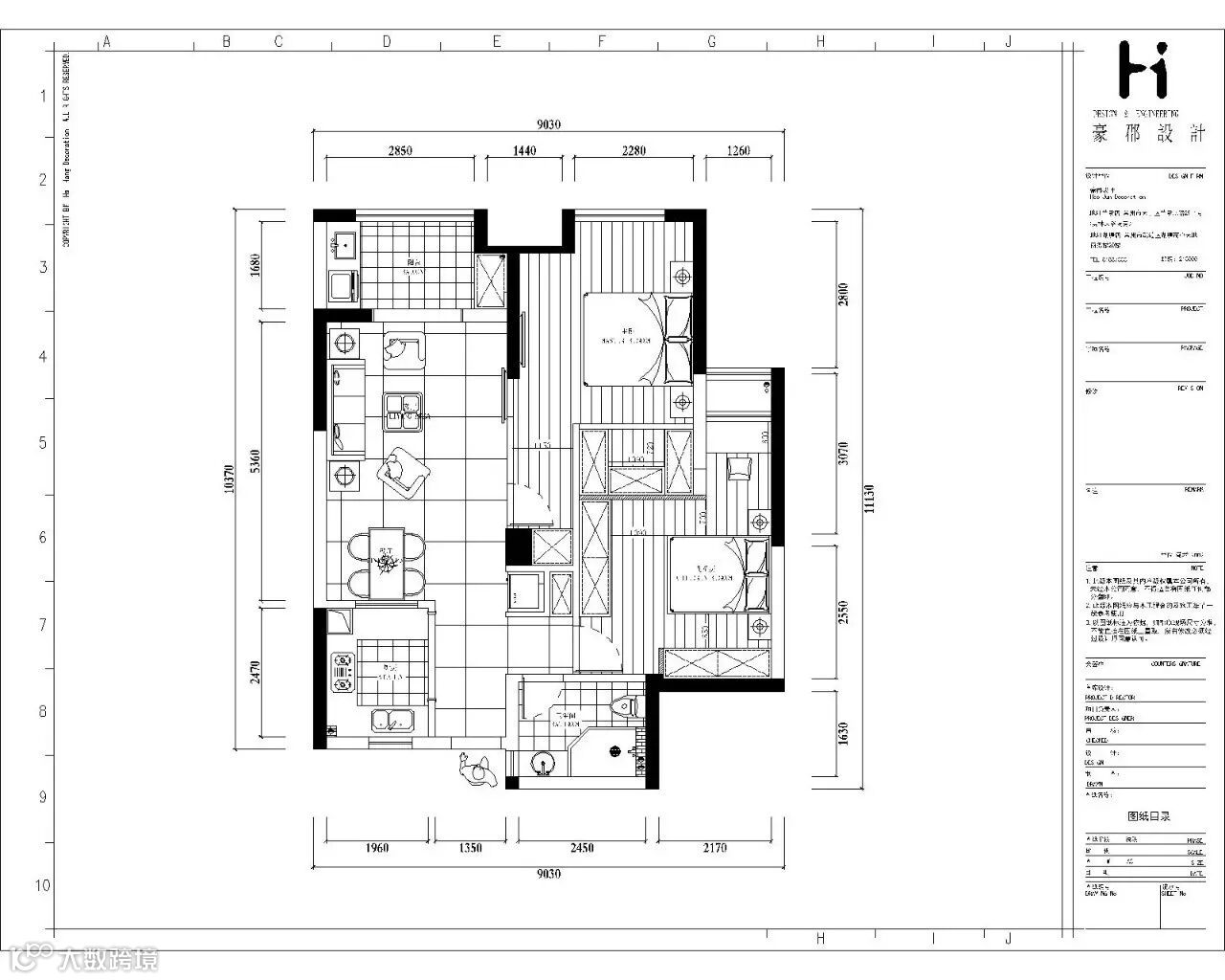
▼平面布置图

方案解析:
1、厨房开门墙体敲除改做移门
2、将主卧与阳台墙体敲除,增大主卧空间
3、把原墙体敲除,把冰箱嵌入其中
4、将儿童房原墙体敲除从新砌墙,增加儿童房空间

小美风格永远是综合了其他风格的优点,吸收了简约风格的简练,欧式风格的精致,法式风格的优雅,地中海风格的随意。因为客户对美的追求,因为设计师对美的执着,小美风格凝聚了客户和设计师共同的心血,因此,每一个小美风格,都是独特的,都是独一无二的,都是凝结了客户的智慧,人生历练和岁月沉淀的。有多少个设计师,就有多少个小美风格。千变万化,绝无成法,才是小美风格最为吸引人的地方。
豪郡装饰——给业主细致的服务,一流的工艺,专业的品质。
一心一意为业主打造高质量高性价比的个性化新房,
让每一栋房子都有独特的设计,豪郡装饰您值得拥有!
我们的目标是——做家装界最好的设计师,设计界最好的施工队,装修界最好的微信小编!豪郡装饰,您值得拥有!

双11,我们豪郡装饰又有新一轮的优惠活动了!

基础装修9.5折仅限60名
前11名交9000抵10000
来店送现金
单笔订单满
35000元送1000元主材现金支票
50000元送3000元主材现金支票
65000元送5000元主材现金支票

加11元,即可获得幸运大抽奖一次
100%中奖哟~




活动时间
2016年10月9日~2016年11月11日

联系我们
兰陵店
▼
常州市天宁区兰陵北路337-1号(美林大浴场旁)
Tel:0519-81887333
湖塘店
▼
常州市湖塘广电路花园街茂业天地商务楼20层
Tel:0519-83605988
24小时服务电话
▼
Tel:181 5128 9188
豪郡装饰

创意美图|设计案例|装修知识|找设计师
豪郡装饰官方网站:www.cnhaojun.com


