关于我们
豪郡建筑装饰设计工程有限公司是一家专业从事家居装饰、写字楼、公寓、挑高空间、商业空间别墅设计与施工 的专业性工程公司,借助先进的施工技术,将人力资源有机的结合在一起,真正实现了资源合理调度,确保服务质量、时效性和低成本。

豪郡装饰
精英设计师领衔
多年设计工作经验积淀
设计方案全方位剖析
专业服务龙城千家业主
面对面解析户型设计要点
百分百全案设计效果
找最专业的设计师
就来豪郡装饰
现 代 美 式

首席设计师
BOUTBEAUTY
王丹丹

设计理念:设计是一种感受,一种心态,一种舒适,开放的生活方式
工作经验:5年以上
擅长风格:美式、日式、现代
小区案例:莱蒙城、御城、嘉禾尚郡、万达广场、兰陵锦轩、弘阳广场、华润国际、锦绣天地、青建鼎都.......
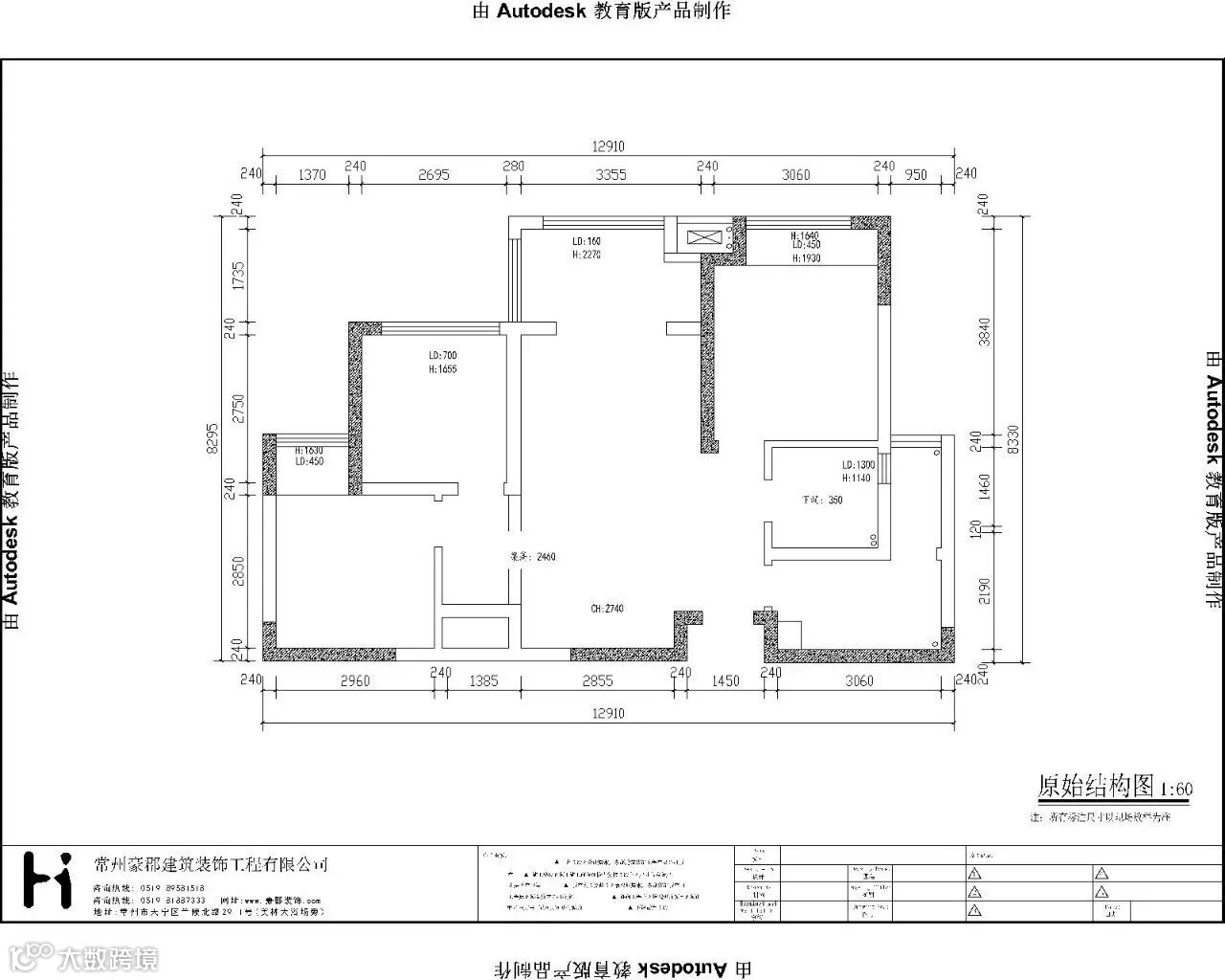
▼原始框架图

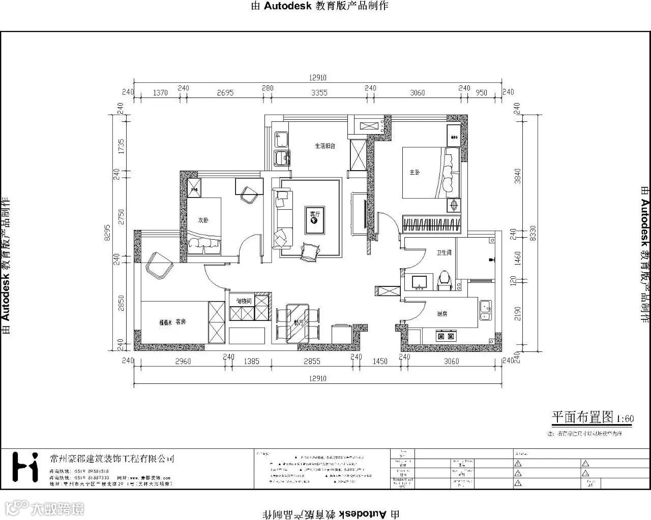
▼平面布置图

现代美式装修风格大多采用实木家具,崇尚古典韵味,怀旧之情溢于言表。美式风格造型较为随意,线条流畅,主要考虑实用性和舒适性。总而言之,现代美式风格给人的感受是豪华大气,却又拥有着古典气质和浪漫气息。
美国家居的另一特点是近乎崇拜的仿古。美式家具的表面涂抹的油漆也多为暗淡的哑光色,排斥亮面同样源于希望家具显得越旧越好。美国人认为镶金镀银的人生浮华浅薄,推崇设计的毫无炫耀,但自有一种骨子里的尊贵。现代美式家具的油漆以单一色为主,而欧式家具大多会加上金色或其他色彩的装饰条。
豪郡装饰——给业主细致的服务,一流的工艺,专业的品质。
一心一意为业主打造高质量高性价比的个性化新房,
让每一栋房子都有独特的设计,豪郡装饰您值得拥有!
我们的目标是——做家装界最好的设计师,设计界最好的施工队,装修界最好的微信小编!豪郡装饰,您值得拥有!

双11,我们豪郡装饰双11优惠活动任在继续中!

基础装修9.5折仅限60名
前11名交9000抵10000
来店送现金
单笔订单满
35000元送1000元主材现金支票
50000元送3000元主材现金支票
65000元送5000元主材现金支票

加11元,即可获得幸运大抽奖一次
100%中奖哟~




活动时间
2016年10月9日~2016年11月11日

联系我们
兰陵店
▼
常州市天宁区兰陵北路337-1号(美林大浴场旁)
Tel:0519-81887333
湖塘店
▼
常州市湖塘广电路花园街茂业天地商务楼20层
Tel:0519-83605988
24小时服务电话
▼
Tel:181 5128 9188
豪郡装饰

创意美图|设计案例|装修知识|找设计师
豪郡装饰官方网站:www.cnhaojun.com


