

关于我们
常州豪郡装饰设计工程有限公司是一家专业从事家居装饰、写字楼、公寓、挑高空间、商业空间别墅设计与施工 的专业性工程公司,借助先进的施工技术,将人力资源有机的结合在一起,真正实现了资源合理调度,确保服务质量、时效性和低成本。
豪郡装饰
精英设计师领衔
多年设计工作经验积淀
设计方案全方位剖析
专业服务龙城千家业主
面对面解析户型设计要点
百分百全案设计效果
找最专业的设计师
就来豪郡装饰
设计师简介:


BOUTBEAUTY
/刘小丽
设计理念:人可以改变环境,环境可以影响人,而设计可以改变人和环境。
工作经验:10年以上
擅长风格:现代简约风格、欧式新古典风格、美式乡村风格、 地中海风格、新中式风格
小区案例:公园一号、香溢澜桥别墅、华润国际、雅居乐、龙德花园、凯尔锋度等、保利公园九里、领绣汇怡盛花园、御城、大名城顺御和苑、御城、新城南都、路劲城、中央花园

装修小区:怡盛花园
装修面积:117平
装修风格:美式风格



怡盛花园小区地处新北龙城大道与通江路交界处,北靠三井河,沿河步道绿化种植,层次丰富;建筑采用ART-DECO经典建筑风格,整体立面典雅,挺拔中显高贵。双学区房。
▼原始框架图

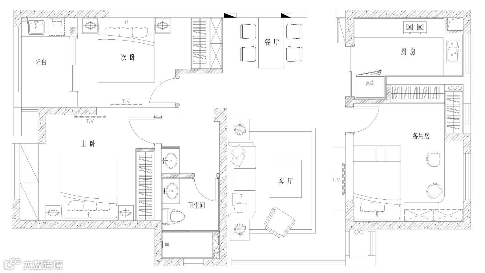
▼平面布置图

户型解析:
1、扩大厨房间的门洞,做移门,
2、主卧的飘窗敲掉,做飘窗柜,增大储物空间
3、内卫改成外卫,做双台盆
4、改变主卧门洞的方向
5、敲掉儿童房的飘窗,做书桌
6、外卫改成衣帽间,增大房屋的储物空间
7、次卧靠门处的墙敲掉,砌单墙,做双面柜,增大储物空间
▼效果图


现场施工:

8.8吉时吉日恭喜业主开工大吉

铲墙结束,墙体改造
水电施工中,材料上架,标示到位

电线排布横平竖直

冷热水管保管
现场施工中,欢迎业主过来参观哦!

豪郡装饰
给业主细致的服务,
一流的工艺,专业的品质。
一心一意为业主打造高质量高性价比的个性化新房,
让每一栋房子都有独特的设计,
豪郡装饰您值得拥有!
我们的目标是
做家装界最好的设计师,
设计界最好的施工队,
装修界最好的微信小编!
豪郡装饰,您值得拥有!
联系我们
兰陵店
▼
常州市天宁区兰陵北路337-1号(美林大浴场旁)
Tel:0519-81887333
湖塘店
▼
常州市湖塘广电路花园街茂业天地商务楼20层
Tel:0519-83605988
豪郡装饰

创意美图|设计案例|装修知识|找设计师



