
每个人的心中都有一座“岛屿”
看不到、摸不到但能呼吸到
我们把这“岛屿”称之为「自由」
都市生活的压力和钢筋水泥丛林的压抑
都渴望拥有避世绝尘的慢生活
一个休憩的世外桃源 一个温馨舒适的家
恭喜锦绣天地开工大吉




项目简介
楼盘:锦绣天地
面积:100m²
风格:地中海
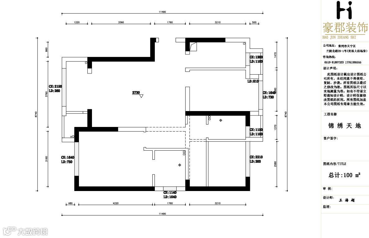
原始平面图

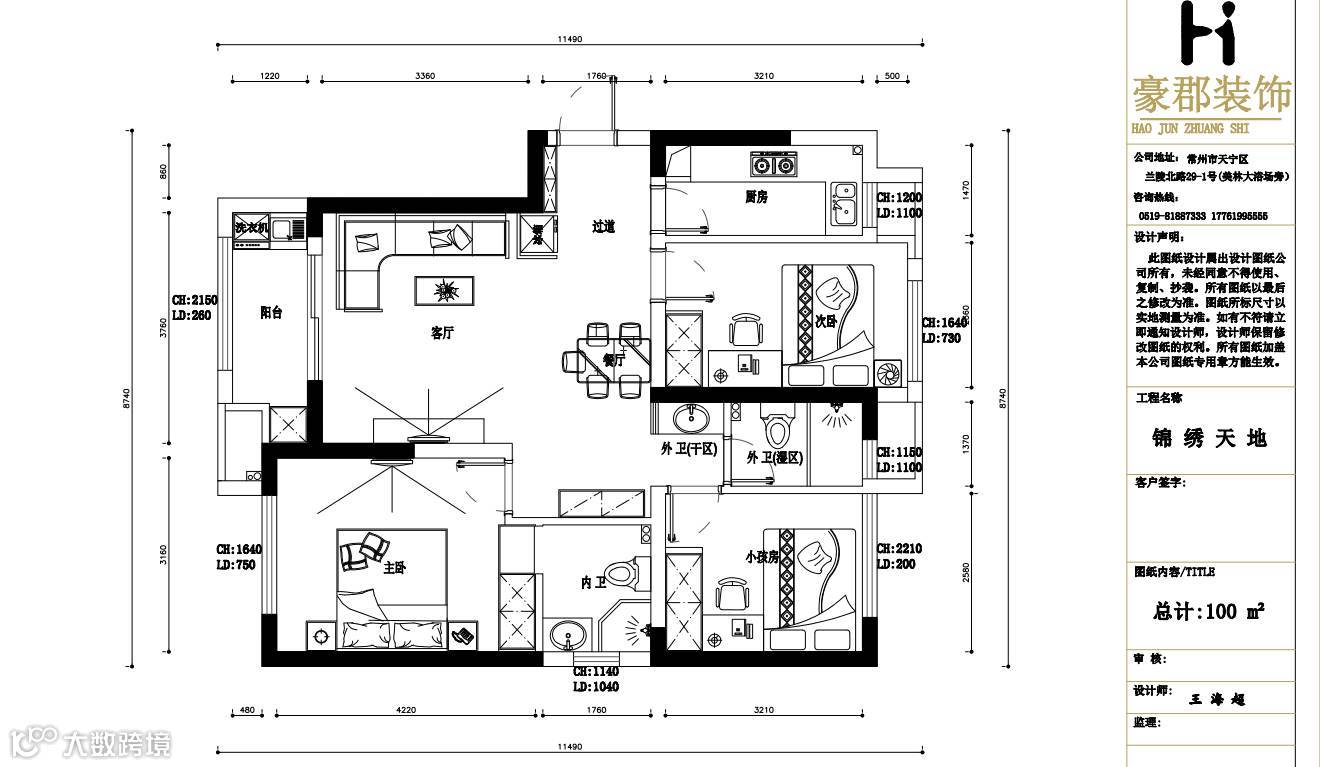
方案设计图




费拉小镇套餐安装实景图





PINGO国际·豪郡整装
一家专业从事家居装饰、写字楼、公寓、挑高空间
商业空间、别墅设计与施工的
专业化工程公司
免费验房 免费量房 免费平面设计
免费预算报价 免费接送 免费参观工地
长
按
关
注
关注PINGO国际•豪郡整装,有惊喜!
联系我们
PINGO国际•豪郡整装兰陵店:常州市天宁区兰陵北路337-1号(美林大浴场旁)
PINGO国际•豪郡整装勤业体验店:飘香路(平岗星苑)
TEL :0519-81887333 0519-89581518
48小时咨询热线:17761995555
创意美图|设计案例|装修知识|找设计师

